Продажа квартир и комнат

Комнаты
Например: Массальского, 4
Ванные
Студия

Кудрово г., Венская ул. м.Улица Дыбенко


23.4 м2
Общая
15 м2
Жилая
 —
Кухня
Ленинградская область г. Кудрово ул. Венская д. 5 Ваша мечта о комфорте и уюте начинает с этой просторной студии в современном районе Кудрово! Полная готовность к жизни! Эта квартира не просто предлагает вам пространство, а готова стать вашим домом! Теплый, уютный дом! Студия с продуманной планировкой подарит вам атмосферу домашнего уюта. Просторный балкон с новым ремонтом и заменой окон создает идеальное место для отдыха на свежем воздухе. Современные удобства! В квартире – совмещенный санузел с полноценной ванной и встроенной полкой, что добавляет комфорта в повседневную жизнь. Окна выходят во двор, что гарантирует тишину и спокойствие, а свежий ремонт уже радует глаз. Безопасность и комфорт: Современный дом 2014 года постройки обладает качественной шумоизоляцией и свежим ремонтом в парадной (2024 год). ТСЖ обеспечивает надежное управление и заботится о вашем спокойствии. Камеры видеонаблюдения по периметру дома позволяют вам быть уверенными в своей безопасности. Демократичные коммунальные услуги! Легкие для бюджета расходы — даже зимой не более 4,5 тыс. рублей за коммунальные услуги! Зелёный двор и развитая инфраструктура! На территории дома всегда чисто, а детская площадка радует детей и взрослых. В шаговой доступности магазины, ТЦ Мега-Дыбенко и прекрасный парк всего в 7 минутах ходьбы. Удобное транспортное сообщение! До метро пешком всего 15-20 минут, а остановка общественного транспорта через дорогу обеспечит вас регулярными перевозками каждые 10 минут! Рядом все для активной жизни: фитнес-залы, пекарни и другие удобства создают идеальные условия для комфортного и активного проживания. Не упустите уникальную возможность стать обладателем этой замечательной студии в Кудрово! Записывайтесь на просмотр уже сегодня!
Цена
5 300 000 ₽

1-х комнатная квартира

Полтавский пр-зд м.Площадь Восстания


44.1 м2
Общая
18.2 м2
Жилая
9 м2
Кухня
В прямой продаже уютная однокомнатная квартира, словно холст, ждущий вашего прикосновения! Общая площадь 44,1 квадратных метра, где 18 метров отдано просторной комнате, залитой светом. В квартире выполнен свежий ремонт, дарящий ощущение новизны и чистоты.. квартира в прямой продаже, никто не живет.
Цена
17 999 000 ₽

1-х комнатная квартира

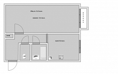
Семиозерье пос., Парковый пер. м.Беговая


31.3 м2
Общая
17.5 м2
Жилая
5.6 м2
Кухня
192  Предлагается к продаже 1 к кв в посёлке Семиозерье, ЛО, Выборгского р-н.  Квартира расположена на 4 этаже пятиэтажного кирпичного дома 1968 г.п.Общ.пл.31,3 кв.м комната 17,5 есть балкон. Квартира без ремонта но чистая. Окна-стеклопакеты. В посёлке есть вся инфраструктура: дет.садик, школа, медпункт, магазины, почта, Сбербанк, дом культуры, церковь и т.д. Хорошая транспортная доступность. Автобус ходит регулярно до ж/д станции Каннельярви, а там ходят Ласточки до СПб и Выборга. Посёлок находится в окружении соснового леса, а в лесу ягоды и грибы, свежий воздух. Отличное вложение денег под сдачу в аренду, очень пользуется спросом или для себя как загородная дача. По документам : один взрослый собственник, форма 9 чистая, документ основания дкп от 2007г. Прямая продажа. Просмотры по предварительной договоренности.
Цена
2 650 000 ₽

Затрудняетесь с выбором?

Не тратьте время на поиск и анализ множества предложений недвижимости
Мы сделаем это за вас профессионально, быстро, предложив оптимальные варианты по выгодной цене!

Студия

Кудрово г., Строителей просп. м.Улица Дыбенко


28.2 м2
Общая
19.4 м2
Жилая
 —
Кухня
№338952 Ленинградская область, Всеволожский р-н, м. Дыбенко, Кудрово г., Строителей просп., д. 18 Продается уникальная видовая студия в Кудрово с потрясающим видом на лес! Представляем вашему вниманию просторную студию общей площадью 32,7 = 28,2 м² площадь квартиры + лоджия 4,5 м² в одном из самых перспективных районов Ленинградской области. Главные преимущества: Квартира находится на оптимальном 4-м этаже 11-этажного дома 2018 года постройки. Панорамный вид на лес — один из немногих вариантов в Кудрово с таким расположением окон Просторная лоджия во всю ширину квартиры с великолепным видом Качественная отделка — заезжайте и живите без дополнительных вложений Удобная планировка с комнатой квадратной формы и просторной прихожей Высота потолков 2,73 м 2 пассажирских лифта, индивидуальный тепловой пункт, мусоропровод Клубный дом с 2 подъездами Безопасность и комфорт: Шлагбаум на въезде, много парковочных мест, детские учреждения на 1-м этаже Расположение и инфраструктура: школа прямо напротив дома, детский сад в 3 минутах ходьбы, детская площадка во дворе, ТЦ “Мега” и множество магазинов рядом, 2 парка в пешей доступности В 2027 году открытие станции метро в пешей доступности, рядом с ТЦ `МЕГА` Транспортная доступность: 15 минут до метро на транспорте (автобусы каждые 5 минут), 10 минут до метро на машине, 30 минут пешком до метро Более 5 лет в собственности Прямая продажа Не упустите возможность приобрести квартиру мечты в одном из лучших районов Кудрово! Звоните прямо сейчас для просмотра! P.S. При просмотре вы сможете лично оценить все преимущества этой уникальной квартиры.
Цена
5 190 000 ₽

1-х комнатная квартира

Песочный пос., Военный городок м.Озерки


29.8 м2
Общая
12.3 м2
Жилая
6.9 м2
Кухня
Продаётся просторная светлая уютная однокомнатная квартира общей площадью 29,8 кв.м. (комната 12,3 кв.м., кухня 7 кв.м., совмещенный санузел, имеется вместительная гардеробная). В квартире осуществлен качественный ремонт в привлекательной тональности. Тёплые полы в ванной комнаты и в коридоре. Окна - стеклопакеты  Вся необходимая инфраструктура для комфортного проживания в шаговой доступности: школы, детские сады, поликлиника, аптеки. Уникальное месторасположение -дом утопает в зелени, что позволяет наслаждаться прогулками на свежем воздухе и занятиями спортом. Рядом с домом прекрасная детская площадка, ухоженная придомовая территория. Всегда имеется место для парковки. Всего в 20-25-ти минутах - Финский залив. Прекрасная транспортная доступность - рядом выезд на ЗСД, общественный транспорт, ж/д станция Песочная. Прописка - Санкт-Петербург. Один взрослый собственник. Подходит под любые формы оплаты.
Цена
4 990 000 ₽

1-х комнатная квартира

Бугры пос., Тихая ул. м.Девяткино


33.1 м2
Общая
9.95 м2
Жилая
12.66 м2
Кухня
ЛО, Всеволожский р-н, Бугры пос., Тихая ул., д.5 к.3 Продам просторную 1- комнатную квартиру  с балконом в ЖК Новые Горизонты. Кухня- 12,66 м2. Комната- 9,95 м2. Санузел- 4,03 м2. Коридор- 3,78 м2. ЖК включает в себя 3 детских сада и школу на 1375 мест и коммерческие помещения на первых этажах. Придомовая территория благоустроена пешеходными тротуарами, зелеными зонами и местами для отдыха. Расположение корпусов образует закрытые дворы, где установлены детские и спортивные площадки и уличные тренажеры. На территории ЖК работает служба консьержей и охраны. ЖК расположен во Всеволожском районе. В пешей доступности работают продуктовые магазины, отделения почты и банков. В пяти минутах транспортом находится «МЕГА Парнас», а также «OBI»,«IKEA» и «Ашан», в 15 минутах – курорт «Охта-парк». В радиусе пяти километров расположены метро «Парнас», «Проспект Просвещения», «Гражданский проспект» и «Девяткино». Выезд на КАД – в пяти минутах транспортом. Ждем Вас на просмотр!
Цена
5 400 000 ₽

1-х комнатная квартира

Бугры пос., Тихая ул. м.Девяткино


33.15 м2
Общая
10.65 м2
Жилая
13.17 м2
Кухня
Ленинградская область, Всеволожский р-н, метро Девяткино, Бугры пос., Тихая ул., 5 к.3 Продам просторную 1- комнатную квартиру  с балконом в ЖК Новые Горизонты. Кухня- 13,17 м2. Комната- 10,65 м2. Санузел- 4,03 м2. Коридор- 3,92м2. ЖК включает в себя 3 детских сада и школу на 1375 мест и коммерческие помещения на первых этажах. Придомовая территория благоустроена пешеходными тротуарами, зелеными зонами и местами для отдыха. Расположение корпусов образует закрытые дворы, где установлены детские и спортивные площадки и уличные тренажеры. На территории ЖК работает служба консьержей и охраны. ЖК расположен во Всеволожском районе. В пешей доступности работают продуктовые магазины, отделения почты и банков. В пяти минутах транспортом находится «МЕГА Парнас», а также «OBI»,«IKEA» и «Ашан», в 15 минутах – курорт «Охта-парк». В радиусе пяти километров расположены метро «Парнас», «Проспект Просвещения», «Гражданский проспект» и «Девяткино». Выезд на КАД – в пяти минутах транспортом. Ждем Вас на просмотр!
Цена
5 400 000 ₽

1-х комнатная квартира

Первомайское 1-е (Тайвань) м.Беговая


25.5 м2
Общая
15.8 м2
Жилая
4.1 м2
Кухня
(168) Продается 1 комнатная квартира в п. Первомайское-1 Выборгского района Ленинградской области(поселок располагается в 13 км от п. Первомайское). Общая площадь 25,5 кв. м, жилая 15,8 кв. м, кухня 4,1 кв. м., с/у совмещенный. Квартира расположена на 1 этаже 3 этажного теплого кирпичного дома. Требуется косметический ремонт. Горячая вода - электрический бойлер, отопление - своя котельная в поселке, плита электрическая. Один собственник. Ф 9 чистая. Прямая продажа. Больше 5 лет в собственности. От ж/д ст. Рощино ходит регулярно автобус (через п. Первомайское). От СПб 70 км. Поселок расположен в окружении хвойного леса, ягоды и грибы. В поселке есть магазин, фельдшер, детская площадка. Отличное предложение как для дачи, так и для постоянного места проживания. Расписание автобуса №124 от Рощино 6-00,08-25,13-30,16-55,19-05; от Первомайское-1( бывший военный городок).
Цена
1 300 000 ₽

1-х комнатная квартира

Кузьмоловский пос., Школьная ул. м.Девяткино


30.5 м2
Общая
16.2 м2
Жилая
5.3 м2
Кухня
Вашему вниманию предлагается квартира в центре поселка,, в уютном зеленом дворе. Квартира чистая ,удобная. В шаговой доступности школа,детский сад.магазины ,удобное сообщение с СПб . Поселок городского типа с развитой инфраструктурой. В 10 минутах езды  прекрасное место для отдыха  и занятий спортом-Охта парк!,Кавголовское озеро.  Есть Дом Культуры,музыуальная школа. Один взрослый собственник. В собственности более 20 лет. Прямая продажа.
Цена
3 650 000 ₽

1-х комнатная квартира

Энергетиков просп. м.Ладожская


34 м2
Общая
16 м2
Жилая
 —
Кухня
Продается 1 комнатная квартира в теплом кирпичном доме ,уникальной архитектурой , в Санкт Петербурге всего 8 таких  зданий  построенные по специальному проекту. В квартире сделан качественный ремонт ,проведена замена водопроводных труб , и электрики,  заменены стояки, установлена новая сантехника, в доме 2 лифта дом очень теплый , хорошая звукоизоляция, соседей не слышно, квартира светлая и очень уютная . Рядом с домом магазины ,почта, аптеки, поликлиника, автобусная и трамвайная остановки,  до метро Ладожская 2 остановки транспортом или 20 минут пешком ,во дворе школы и детские сады ,
Цена
8 000 000 ₽

1-х комнатная квартира

Сестрорецк г., Гагаринская ул. м.Беговая


35.1 м2
Общая
16.7 м2
Жилая
9.8 м2
Кухня
(110) Сестрорецк, ул. Гагаринская д. 77 В продаже светлая 1 ком.квартира (евродвушка - кухня гостиная 16,7 к.м, спальня 9,8 кв.м). Застекленная лоджия с теплым полом, можно использовать как кабинет. Новый, современный ремонт, квартира продается укомплектованная мебелью и бытовой техникой. Окна выходят во двор. Во дворе всегда есть место для парковки, также у дома 2-этажный паркинг. Новый, современный дом 2017 года постройки. Спокойные, семейные соседи. Чистая парадная, имеющая 2 входа, комфортный просторный лифт. В 5 минутах пешком от дома живописная набережная озера Разлив, пляж `Белая горка`. Рядом парк с прогулочными зонами и соснами. В шаговой доступности ж.д. станция Разлив, все магазины, пункт Озон, остановка общ. транспорта. Квартира в собственности более 5 лт, один собственник, без обременений. Пряма продажа.
Цена
9 900 000 ₽

1-х комнатная квартира

Ломоносов г., 1 Нижняя ул. м.Автово


28.2 м2
Общая
17.2 м2
Жилая
6 м2
Кухня
СПб, Ломоносов, 1-Нижняя ул.1А. Отличная 1 к.кв. в одном из лучших пригородов СПб. Квартира с бабушкиным ремонтом, но чистая и уютная. Редкий 3 этаж! Просторная светлая комната 17,9 кв.м. Застекленный балкон 2.6 кв.м. Великолепная инфраструктура! Рядом ж.д.вокзал, остановки транспорта, разнообразные магазины, банк и т.д. Дворцово-парковый ансамбль Ораниенбаум - прекрасное место для прогулок, в пешей доступности. 45 минут до города. 5 минут до КАД. Недалеко песчаный пляж Финского залива. Детский сад во дворе, школа - 10 минут пешком. Электричек не слышно вообще! Один взрослый собственник. Легкая встречная покупка.
Цена
3 990 000 ₽

Закажите консультацию специалиста

Оставьте заявку
Нажимая на кнопку «Отправить заявку», Вы даете согласие на обработку своих персональных данных.
×
продажа
Что вы хотите продать?
Сколько комнат?
Тип объекта?
В каком регионе?
В каком районе Санкт-Петербурга
В каком районе Ленинградской области?

Оставьте Ваш контакт и наши специалисты свяжутся с Вами в самые кротчайшие сроки.

+7
×
новостройка
Какие районы Санкт-Петербурга Вас интересуют?
С какой целью Вы планируете приобрести квартиру?
Сколько комнат должно быть в Вашей будущей квартире?
Какой вариант отделки Вам необходим?
Когда Вы хотите заехать?
В какой бюджет хотите уложиться?

Оставьте Ваш контакт и получите подборку квартир без риска столкнуться с мошенничеством и недостроем.

+7
×
сдать
Что вы хотите сдать?
Скольки комнатная квартира?
Какой тип коммерческой недвижимости вы хотите сдать?
В каком регионе?
В каком районе Санкт-Петербурга
В каком районе Ленинградской области?

Оставьте Ваш контакт и наши специалисты свяжутся с Вами в самые кротчайшие сроки.

+7
Этот сайт использует файлы cookie для улучшения пользовательского опыта. Cookie - это небольшие текстовые файлы, которые сохраняются на вашем устройстве и помогают нам запоминать ваши предпочтения, анализировать посещаемость сайта и предоставлять более персонализированный контент. Использование файлов cookie позволяет нам сделать сайт удобнее для вас. Политика конфиденциальности
Принять Отказаться