Продажа квартир и комнат

Комнаты
Например: Массальского, 4
Ванные
2-х комнатная квартира

Кораблестроителей ул. м.Приморская


49.6 м2
Общая
28 м2
Жилая
7 м2
Кухня
Продаётся 2-ккв на Васильевском острове, по адресу: г.Санкт-Петербург, ул.Кораблестроителей, д. 39, лит. В Квартира, общей площадью 49,6 кв.м., расположена на 1-ом этаже 14-этажного панельного дома, 137-й серии. Высокую популярность данная серия приобрела благодаря удобным планировкам и достаточно высоким потолкам - 2,7 м. Дом расположен в комфортном Василеостровском районе, с хорошей инфраструктурой и транспортной доступностью. До станции метро Приморская 10 минут пешком. Рядом остановки общественного транспорта. Удобный выезд на ЗСД, на мост Бетанкура. Через дорогу в 5-ти минутах - Парк Декабристов, напротив дома спортивная школа. Внутри квартала: гимназия, детские сады, медицинские учреждения, магазины и многое другое. Зелёный двор. Перед домом большой зеленый сквер с зонами отдыха, спортивными и детскими площадками. Для прогулок - набережная реки Смоленки и набережная Финского залива. Квартира реализуется через электронную торговую площадку, ипотека и субсидии не подходят.
Цена
9 450 000 ₽

2-х комнатная квартира

Шушары пос., Чудовская ул. м.Звездная


56.5 м2
Общая
25.9 м2
Жилая
12.6 м2
Кухня
Продается уютная  2х комнатная квартира ( 3Е) , где 2 полноценные комнаты + кухня-гостинная,   в современном жилом комплексе ЖК Монография  . 56,5 м2 Дом комфорт-класса.         На этаже 5 квартир.         Закрытый двор. Парные выполнены в современном стиле. Квартира на 9 этаже , в доме 12 этажей.         В доме современным подземным паркинг, а это прежде всего, безопасность вашего автомобиля.         Также в доме есть предусмотрен пандус. Это дает возможность очень  легко перемещаться с коляской или велосипедом. Безбарьерная входная группа-  вход в парадную без порожка.         Развитая инфраструктура, школа, детский сад и поликлиника - рядом.         На данный момент до метро Купчино, м. Звездная и м. Шушары можно добраться за 10-12 минут на машине.         Выезд на КАД, рядом, а так же в ближайшее время , рядом  с домом будет остановка трамвая `Купчино - Шушары`, до ст. метро Купчино можно будет добраться за 10 минут на трамвае. Это трамвайная ветка  уже готова к сдаче. Квартира светлая , двухсторонняя, видовая. С лоджии открываются прекрасный вид на панораму города. Кухня-гостиная 12,6 м2. Прихожая 9,8м2. Санузел 2,2 м2. Ванная комната 4,4 м2. Комнаты 13,8м2+12,7 м2 Лоджия 3,6м2 Детские площадки прорезиненные. Инфраструктура развита. В шаговой доступности новая школа, магазины, пункты выдачи маркетплейсов, продуктовые магазины 24 часа. Квартира без отделки. Ремонт можно осуществить самостоятельно, полностью реализовав свою фантазию. В квартире раздельный санузел , окна квартиры выходят во двор и на улицу. Квартира готова к продаже, по договору купли- продажи. Возможна ипотека, в том числе и семейная. Возможна помощь в оформлении ипотеки. Возможна семейная ипотека. Звоните, записывайтесь на просмотр. Будем Вам очень рады!
Цена
11 293 000 ₽

2-х комнатная квартира

Медиков просп. м.Петроградская


65.5 м2
Общая
36.1 м2
Жилая
10.4 м2
Кухня
Продаётся 2-комнатная квартира в Петроградском районе, по адресу: г.Санкт-Петербург, пр. Медиков, д. 10 корп.8 Квартира, общей площадью 65,5 кв.м., расположена на 9-ом этаже 13-этажного точечного корпуса, в жилом комплексе бизнес-класса `Европа-Сити`, от бюро `Евгений Герасимов и Партнеры` Сборные железобетонные стены и перекрытия. Система навесных фасадов из керамических панелей, утепление - высококачественный теплоизоляционный материал. Технический этаж, включает кладовые помещения. Цоколь и входы облицованы камнем. Кровля - рулонная с подогреваемыми водостоками. На первых этажах комплекса расположены коммерческие помещения, аптеки, кафе, рестораны и т.д.. Облагороженный закрытый двор с авторским ландшафтным дизайном, густое озеленение прилегающей территории деревьями и кустарниками. Предусмотрены подземный паркинг и открытые автостоянки. Благоустроены детские, спортивные, баскетбольные и футбольные площадки. Места для отдыха оборудованы скамейками и пешеходными дорожками. Рядом с территорией комплекса  расположен детский сад, гимназия, поликлиники  и больничные корпуса 1-ого медицинского университета имени И.П. Павлова. Рядом Песочная, Аптекарская набережные и набережная реки Карповки. Для прогулок, в непосредственной близости - Лопухинский парк и Каменный остров. В 2 минутах пешком супермаркеты. Общественный транспорт ходит с интервалом в минуту. Станция метро Петроградская в 15-ти минутах ходьбы. Квартира реализуется через электронную торговую площадку, ипотека и субсидии не подходят.
Цена
21 100 000 ₽

Затрудняетесь с выбором?

Не тратьте время на поиск и анализ множества предложений недвижимости
Мы сделаем это за вас профессионально, быстро, предложив оптимальные варианты по выгодной цене!

2-х комнатная квартира

Ольги Форш ул. м.Гражданский проспект


45.2 м2
Общая
26.6 м2
Жилая
6.2 м2
Кухня
Продаётся двухкомнатная квартира  в хорошем состоянии.Квартира очень тёплая,светлая,уютная.Выход на лоджию из  большой комнаты.Вся инфраструктура в шаговой доступности(школа,детский сад,магазины,аптеки,сад Прометей для прогулок ).Прямая продажа.Один взрослый собственник.Звоните отвечу на все интересующие вопросы.
Цена
7 800 000 ₽

2-х комнатная квартира

Ударников просп. м.Проспект Большевиков


54 м2
Общая
29.4 м2
Жилая
8.7 м2
Кухня
ДВУХКОМНАТНАЯ КВАРТИРА ПО ХОРОШЕЙ ЦЕНЕ Многоквартирный дом находится в сложившейся части Красногвардейского района г. Санкт-Петербурга, ближайшая станция метро Проспект Большевиков. Социальная и транспортная инфраструктура соответствует высоким требованиям современного города. В непосредственной близости находятся школа и детский сад. До станции метро можно добраться транспортом минут за пятнадцать. Данная квартира, под ипотеку не подходит, продается способом проведения аукциона.
Цена
6 000 000 ₽

2-х комнатная квартира

Ириновский просп. м.Ладожская


51.8 м2
Общая
29.8 м2
Жилая
7.8 м2
Кухня
В Красногвардейском районе СПБ , продается 2 комнатная квартира на 9 этаже , 12этажного дома на Ириновском проспекте . Ремонт в квартире был сделан но давно . Квартира в чистом состоянии но без евроремонта. Продается частично с мебелью . В квартире ни кто не проживает . Окна выходят на улицу, но ни чего с улицы не слышно , так как огромная лоджия , застекленная . В подъезде  два лифта , грузовой и пассажирский . До метро Ладожской 15 минут на автобусе. Можно еще доехать до метро площадь Ленина. Рядом остановки трамвая и автобусов  общественного транспорта . Вся инфраструктура в шаговой доступности. Хорошая придомовая территория, с площадками .  Квартира без обременения и задолжности , без опеки.
Цена
8 500 000 ₽

2-х комнатная квартира

Ломоносов г., Владимирская ул. м.Беговая


37.2 м2
Общая
25.2 м2
Жилая
5.5 м2
Кухня
квартира площадью 37,2 кв.м., расположенная по адресу: г. Санкт-Петербург, г. Ломоносов, ул. Владимирская, д. 18а Данный объект реализуется через электронные торги. Это значит: - Конечная стоимость покупки объекта на торгах, как правило, ниже рыночной стоимости на 20-30%. - Процедура торгов регламентируется федеральным законом, что делает сделку безопасной. Мы всегда работаем только с одним клиентом по одному объекту, чтобы клиент получил возможность приобретения по самой выгодной цене. Наша компания сопровождает сделку до получения клиентом права собственности. Не упустите свою выгодную покупку! Позвоните и запишитесь к нам на консультацию для получения более подробной информации. Предложение ограничено по времени!
Цена
4 300 000 ₽

2-х комнатная квартира

Глобицы дер., Октябрьская ул. м.Проспект Ветеранов


44.2 м2
Общая
28 м2
Жилая
5 м2
Кухня
Ломоносовский р-он, д. Глобицы, ул. Октябрьская д.2 Квартира на втором этаже. Изолированная планировка, раздельный сан. узел. Хорошее, пригодное для проживания состояние, пол ламинат, установлены стеклопакеты. Все документы в наличии, прямая продажа. Готовы к рассмотрению материнского капитала. Просмотры по договорённости.
Цена
2 400 000 ₽

2-х комнатная квартира

Галерная ул. м.Адмиралтейская


65.3 м2
Общая
36 м2
Жилая
6 м2
Кухня
В продаже 2-комнатная квартира по адресу: г.Санкт-Петербург, ул. Галерная, д.46. Квартира, общей площадью 65,3 кв.м, расположена на 3-ем этаже купеческого дома Овандеров, в историческом центре города, в Адмиралтейском районе. Дом построен в конце 18 века для купца Еремея Бардевика. До 1868 года домом владели наследники Бардевика. После, его владельцем стал купец Яков Овандер. Вплоть до революции, до 1917 года, дом принадлежал семье Овандеров. До наших дней внешний вид дома не претерпел никаких изменений и сохранился в историческом виде. В соответствии с распоряжением председателя КГИОП С.В. Макарова от 22.03.2017 года «Дом Овандеров»  включен в единый государственный реестр в качестве объекта культурного наследия регионального значения. Тихая улица, вход со двора, окна так же выходят во двор, что даёт возможность прочувствовать петербургский дух и отдохнуть от суеты. В 2-х минутах ходьбы расположен остров Новая Голландия с ресторанчиками, катком и концертной площадкой. В пешей доступности Исаакиевской собор и Мариинский театр. Тихий, спокойный, закрытый двор. Во дворе организована автомобильная парковка. Хорошая транспортная доступность, развитая социальная и досуговая инфраструктура. Квартира реализуется через электронную торговую площадку, ипотека и субсидии не подходят.
Цена
10 920 000 ₽

2-х комнатная квартира

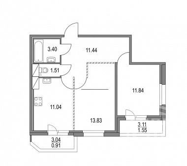
Коломяжский просп. м.Пионерская


53 м2
Общая
25.64 м2
Жилая
11 м2
Кухня
Санкт-Петербург, Коломяжский проспект 13 к.3 Метро Пионерская -10 мин.пешком Метро Удельная - 2,5 км. через Удельный парк Метро Комендантский проспект - 2,5 км. До центра города -30 минут на личном автомобиле или на общественном транспорте, расстояние от дома до ЗСД 4 км..  До аэропорта Пулково 40-60 мин. в зависимости от выбранного маршрута. Удельный парк в шаговой доступности, где можно гулять с любимым питомцем, или проводить время с семьей. Парк обустроен, есть детская площадка, площадка для танцев, дорожки. Богатая инфраструктура рядом с метро Пионерская. Торговый центр `Сити Молл` , Лемана Про , Перекресток, Спортмастер и т.д. На территории комплекса Приморский квартал  можно выпить любимый кофе или чай, есть выбор Пекарен и кофейни, есть точки доставки товаров, продуктовые магазины у дома, быстрое питание. Рядом с домом есть действующий детский садик, сейчас строится школа. Для детей есть закрытая  площадка для игры в футбол и разные тематические площадки в зависимости от возраста ребенка. Квартира без отделки. Кухня -11 м2, комнаты 13,8м2 и 11,84 м2. Санузел раздельный. Коммуникации заведены в квартиру. Звоните, отвечу на все интересующие вопросы и оперативно проведу показ. Подходит семейная ипотека.
Цена
17 700 000 ₽

2-х комнатная квартира

Александра Матросова ул. м.Лесная


59.1 м2
Общая
29.7 м2
Жилая
12 м2
Кухня
Санкт-Петербург, Выборгский р-н, ст.м. Лесная Александра Матросова ул., д. 1 Ст.м. Лесная пешком 16 мин., Выборгская 17 мин., выезд на ЗСД 10 мин., центр 10 мин. на авто. Продаётся великолепная 2 комн. кв для счастливой семейной жизни, инвестиции или аренды, в ЖК бизнес класса «Притяжение», в удобной локации города. Квартира с прекрасной, функциональной планировкой, кухней-гостинной, раздельными комнатами, раздельным санузлом и гардеробной. Выполнена предчистовая отделка, что позволяет сделать ремонт мечты в кратчайшие сроки и с минимальными затратами, наполнив свою новую квартиру уютом и комфортом. Все поверхности выровнены, уложена плитка. В отделке использованы высококачественные материалы. Напольное покрытие может стать приятным бонусом к квартире. Окна выходят в зелёный тихий двор на две стороны. Преимущества комплекса: многоступенчатая система очистки воды, умные счётчики, безрамное финское остекление “Lumon” (возможность организовать уютную лаундж-зону), бесшумные скоростные лифты «KONE”, отапливаемый паркинг на 692 места и открытый на 84 автомобиля, собственный детский сад на 200 мест, превосходная система безопасности, включающая консъерж-сервис и входные группы с лобби для гостей, охрану 24/7 и регулярный обход территории в ночное время, видеонаблюдение. Двор без машин, с ландшафтным дизайном, пешеходной аллеей, дизайнерскими детскими спортивными площадками и зонами отдыха. Инфраструктура района на высшем уровне, в непосредственной близости детские сады, школы, ведущие медицинские и технические ВУЗы, сетевые супермаркеты и гипермаркеты, магазины различных направлений, салоны красоты, фитнес центры, ПВЗ, пекарни, кофейни, клиники. Достопримечательности поблизости: Ботанический сад, Крейсер «Аврора», Петропавловская крепость, ЦПКиО на Елагином острове. Если Вы всё ещё в поисках своей идеальной квартиры, проведём показ в удобное для Вас время. Возможны ипотека, субсидия. Один собственник, есть обременение, документы готовы к сделке.
Цена
19 800 000 ₽

2-х комнатная квартира

Реки Карповки наб. м.Петроградская


97 м2
Общая
40.3 м2
Жилая
30.7 м2
Кухня
Если ищете синоним слова ПРЕМИУМ, первым в списке будет -  ЖК `Севepнaя Kоpона`. Именно в этом премиальном ЖК в самом сердце Санкт-Петербурга, на 3 этаже 7-ми этажного дома находится наша невероятная двухкомнатная квартира, площадью 96,9 квадратных метров. Продуманная до мелочей планировка и отсутствие внутренней отделки позволит Вам осуществить все самые, казалось бы, не исполнимые дизайнерские решения ! Проект ЖК `Северная Корона` - это современное воплощение и новое развитие архитектуры северного модерна. Особенность и уникальность дома в его протяженности вдоль реки Карповки. Фасад исключает монотонность, линии интегрированы в канву курдонера и внутренних общественных пространств, обращённых как в сторону Каменноостровского проспекта, так и Иоановского монастыря. На первых этажах проекта расположены коммерческие помещения. Входная зона - парадное двухсотметровое лобби. А во дворе ландшафтный дизайн и `вишенка на торте` - фонтан, имеющий несколько световых сценариев. Для жителей ЖК доступны фитнес-клуб, лобби-бар и переговорная. Предусмотрен круглосуточный консьерж-сервис. Для владельцев автомобилей создан подземный паркинг на 335 мест, включая семейные и с автоподъемниками. А так же застройщиком предусмотрена система очистки воды и воздуха. В плане инфраструктуры, можно сказать, что ЖК `Северная Корона` интегрирован в её самое сердце: - метро Петроградская - музеи, набережные, парки Крестовского острова. - кофейни, рестораны, салоны красоты и т.п. - 3 детских сада, гимназии, гипермаркеты, поликлинники Весь Петербургский `вайб`, в шаге от дверей Вашего дома ! Не упустите свою мечту, звоните прямо сейчас !
Цена
59 850 000 ₽

Закажите консультацию специалиста

Оставьте заявку
Нажимая на кнопку «Отправить заявку», Вы даете согласие на обработку своих персональных данных.
×
продажа
Что вы хотите продать?
Сколько комнат?
Тип объекта?
В каком регионе?
В каком районе Санкт-Петербурга
В каком районе Ленинградской области?

Оставьте Ваш контакт и наши специалисты свяжутся с Вами в самые кротчайшие сроки.

+7
×
новостройка
Какие районы Санкт-Петербурга Вас интересуют?
С какой целью Вы планируете приобрести квартиру?
Сколько комнат должно быть в Вашей будущей квартире?
Какой вариант отделки Вам необходим?
Когда Вы хотите заехать?
В какой бюджет хотите уложиться?

Оставьте Ваш контакт и получите подборку квартир без риска столкнуться с мошенничеством и недостроем.

+7
×
сдать
Что вы хотите сдать?
Скольки комнатная квартира?
Какой тип коммерческой недвижимости вы хотите сдать?
В каком регионе?
В каком районе Санкт-Петербурга
В каком районе Ленинградской области?

Оставьте Ваш контакт и наши специалисты свяжутся с Вами в самые кротчайшие сроки.

+7
Этот сайт использует файлы cookie для улучшения пользовательского опыта. Cookie - это небольшие текстовые файлы, которые сохраняются на вашем устройстве и помогают нам запоминать ваши предпочтения, анализировать посещаемость сайта и предоставлять более персонализированный контент. Использование файлов cookie позволяет нам сделать сайт удобнее для вас. Политика конфиденциальности
Принять Отказаться