Продажа квартир и комнат

Комнаты
Например: Массальского, 4
Ванные
2-х комнатная квартира

Энергетиков просп. м.Ладожская


62.8 м2
Общая
25.25 м2
Жилая
17.58 м2
Кухня
Продам просторную 2- комнатную квартиру с большой кухней- гостиной и лоджией в ЖК GloraX Заневский. Кухня- 17,58 м2 Комнаты- 25,25 м2 Коридор- 8,19 м2 Ванна- 5,05 м2 Туалет- 2,29 м2 В доме выполнена дизайнерская отделка входной группы и установлены скоростные бесшумные лифты. Территория комплекса благоустроена. В рамках социальной программы в комплексе есть медицинский кабинет. На придомовой территории расположены детские и спортивные площадки, проведено озеленение. Для автовладельцев предусмотрен подземный паркинг с зарядкой для электромобилей. Комплекс расположен в Красногвардейском районе. Внешняя инфраструктура развита. Поблизости есть школы, магазины, детские сады, поликлиника. До метро «Ладожская» — 5 минут пешком. Ждем Вас на просмотр!
Цена
19 400 000 ₽

2-х комнатная квартира

Академика Константинова ул. м.Политехническая


59.06 м2
Общая
27.9 м2
Жилая
15.9 м2
Кухня
СПб, Калининский р-н, Академика Константинова ул., д.1 к.1 Продам уютную 2- комнатную квартиру с большой кухней- гостиной и лоджией в ЖК Наука. Кухня- 15,9 м2 Комнаты- 27,9 м2 Коридор- 7,6 м2 Ванна- 4,8 м2 Туалет- 1,4 м2 Выполнена дизайнерская отделка входной группы, установлены современные лифты и обустроены колясочные. Квартира без отделки и потолки высотой 2,72 метра. Территория проекта выполнена по концепции «двор без машин». На первых этажах расположены коммерческие помещения. Во дворах жилого комплекса реализовано единое благоустройство — проект «Фантастический лес» с 8 игровыми зонами и спортивной площадкой. Во дворе первого корпуса расположена большая детская площадка «Крупная рыба». Для владельцев автомобилей предусмотрен подземный паркинг. ЖК расположен в Калининском районе. В пешей доступности находятся магазины, школы, детские сады, медицинские учреждения, Вавиловский сквер, сад Бенуа и парк сосновка. До метро «Академическая» и «Политехническая» — 10 минут пешком. Ждем Вас на просмотр!
Цена
20 100 000 ₽

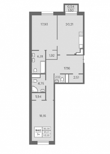
2-х комнатная квартира

Реки Карповки наб. м.Петроградская


93.55 м2
Общая
36.09 м2
Жилая
20.21 м2
Кухня
СПб, Петроградский р-н, Реки Карповки наб., д.31 к.1 Продам уютную 2- комнатную квартиру с большой кухней- гостиной и балконом в ЖК Северная Корона. Кухня- 20,21 м2 Комнаты- 36,09 м2 Коридор- 17,16 м2 Ванна- 6,31 м2 Туалет- 4,75 м2 Высота потолков 3 метра. На первых этажах проекта расположены коммерческие помещения. Для жителей открыты фитнес-клуб, лобби-бар и переговорная. Предусмотрен круглосуточный консьерж-сервис. Для владельцев автомобилей создан подземный паркинг на 335 мест, включая семейные и с автоподъемниками. Жилой комплекс расположен в Петроградском районе. В пешей доступности есть 3 сада — Вяземский, Лопухинский и Ботанический. За 15 минут можно дойти до парков Крестовского острова. Инфраструктура района хорошо развита, рядом находятся детские сады, гимназии, гипермаркет, детская поликлиника. В радиусе километра расположены несколько музеев и церковь. Станция метро «Петроградская» в 5 минутах пешком. Ждем Вас на просмотр!
Цена
57 000 000 ₽

Затрудняетесь с выбором?

Не тратьте время на поиск и анализ множества предложений недвижимости
Мы сделаем это за вас профессионально, быстро, предложив оптимальные варианты по выгодной цене!

2-х комнатная квартира

Обводного канала наб. м.Балтийская


59.9 м2
Общая
23.3 м2
Жилая
12.3 м2
Кухня
СПб, Адмиралтейский р-н, Обводного канала наб., д.169 Продам уютную 2- комнатную квартиру с большой кухней- гостиной и двумя балконами в ЖК Лермонтовский 54. Кухня- 12,3 м2 Комнаты- 23,2 м2 Коридор- 6,6 м2 Ванна- 4,3 м2 Туалет- 4,2 м2 Лобби имеет высокие потолки и стеклянные двери, установлены современные бесшумные лифты. Доступ осуществляется с помощью распознавания лиц IP-домофоном или ключ-картой. Жилой комплекс находится под круглосуточным видеонаблюдением и имеет собственный зеленый парк во дворе без доступа для автомобилей. На придомовой территории расположены детские и спортивные площадки, пешие и велодорожки, зоны отдыха. На первых этажах запроектированы коммерческие помещения. Для владельцев авто предусмотрен подземный паркинг. Проект находится в Адмиралтейском районе. Поблизости расположены школы, детские сады, магазины, кафе, салоны красоты, медицинские учреждения и недавно открывшийся лицей. В пешей доступности Мариинский театр, Польский сад, набережная реки Фонтанки и Обводного канала. До метро Балтийская — 5 минут пешком. Рядом с комплексом функционирует исторический лицей на 1 000 студентов, который был отреставрирован застройщиком в 2024 году. Для детей построен бассейн, территория благоустроена, организовано пространство для отдыха и занятий на свежем воздухе. Ждем Вас на просмотр!
Цена
27 800 000 ₽

2-х комнатная квартира

Обводного канала наб. м.Балтийская


70 м2
Общая
26.5 м2
Жилая
25.3 м2
Кухня
СПб, Адмиралтейский р-н, Обводного канала наб., д.169 Продам большую 2- комнатную квартиру с большой кухней- гостиной и двумя балконами в ЖК Лермонтовский 54. Кухня- 25,3 м2 Комнаты- 26,5 м2 Коридор- 6,8 м2 Ванна- 4,6 м2 Туалет- 5,2 м2 Лобби имеет высокие потолки и стеклянные двери, установлены современные бесшумные лифты. Доступ осуществляется с помощью распознавания лиц IP-домофоном или ключ-картой. Жилой комплекс находится под круглосуточным видеонаблюдением и имеет собственный зеленый парк во дворе без доступа для автомобилей. На придомовой территории расположены детские и спортивные площадки, пешие и велодорожки, зоны отдыха. На первых этажах запроектированы коммерческие помещения. Для владельцев авто предусмотрен подземный паркинг. Проект находится в Адмиралтейском районе. Поблизости расположены школы, детские сады, магазины, кафе, салоны красоты, медицинские учреждения и недавно открывшийся лицей. В пешей доступности Мариинский театр, Польский сад, набережная реки Фонтанки и Обводного канала. До метро Балтийская — 5 минут пешком. Рядом с комплексом функционирует исторический лицей на 1 000 студентов, который был отреставрирован застройщиком в 2024 году. Для детей построен бассейн, территория благоустроена, организовано пространство для отдыха и занятий на свежем воздухе. Ждем Вас на просмотр!
Цена
28 600 000 ₽

2-х комнатная квартира

Бакунина просп. м.Площадь Александра Невского


64.54 м2
Общая
29.63 м2
Жилая
14.06 м2
Кухня
Санкт-Петербург, Центральный р-н, метро Площадь Александра Невского, Бакунина просп., 3 Продам просторную 2- комнатную квартиру с кухней- гостиной и балконом в ЖК BAKUNINA 33. Кухня- 14,06 м2 Комнаты- 29,63 м2 Коридор- 9,04 Ванна- 4,25 м2 Туалет- 2,84 м2 Жилой комплекс представляет собой современный клубный проект на 113 квартир, возведенный по технологии кирпично-монолитного строительства с комбинированными фасадами. Первые этажи отведены под коммерческие помещения. Высота потолков до 3,5 метров. Территория комплекса благоустроена. Выполнено ландшафтное озеленение от бюро «Derevo Park», в котором часть дворового пространства обустраивается на кровле подземного паркинга. За счет применения технологии «интенсивной зеленой крыши» создается собственный городской сад. Жилой комплекс расположен в историческом центре Санкт-Петербурга. В пешей доступности находятся: Эрмитаж, Русский музей, Александринский и Мариинский театры, БДТ, Таврический парк, Казанский собор, Спас на крови и другие достопримечательности города. Для ежедневных пеших и велосипедных прогулок совсем рядом с домом находится Овсянниковский сад с широкими аллеями, оборудованными детскими площадками, теннисным кортом летом и катком зимой. Дорога до Невского проспекта занимает 10 минут пешком. Ждем Вас на просмотр!
Цена
36 000 000 ₽

2-х комнатная квартира

Бакунина просп. м.Площадь Александра Невского


72.98 м2
Общая
35.11 м2
Жилая
15.36 м2
Кухня
СПб, Центральный р-н, Бакунина просп., д.33 Продам уютную 2- комнатную квартиру с кухней- гостиной и лоджией в ЖК BAKUNINA 33. Кухня- 15,36 м2 Комнаты- 35,11 м2 Коридор- 13,17 Ванна- 5,55 м2 Туалет- 1,36 м2 Жилой комплекс представляет собой современный клубный проект на 113 квартир, возведенный по технологии кирпично-монолитного строительства с комбинированными фасадами. Первые этажи отведены под коммерческие помещения. Высота потолков до 3,5 метров. Территория комплекса благоустроена. Выполнено ландшафтное озеленение от бюро «Derevo Park», в котором часть дворового пространства обустраивается на кровле подземного паркинга. За счет применения технологии «интенсивной зеленой крыши» создается собственный городской сад. Жилой комплекс расположен в историческом центре Санкт-Петербурга. В пешей доступности находятся: Эрмитаж, Русский музей, Александринский и Мариинский театры, БДТ, Таврический парк, Казанский собор, Спас на крови и другие достопримечательности города. Для ежедневных пеших и велосипедных прогулок совсем рядом с домом находится Овсянниковский сад с широкими аллеями, оборудованными детскими площадками, теннисным кортом летом и катком зимой. Дорога до Невского проспекта занимает 10 минут пешком. Ждем Вас на просмотр!
Цена
36 450 000 ₽

2-х комнатная квартира

Всеволожск г., Севастопольская ул. м.Ладожская


50.3 м2
Общая
29.9 м2
Жилая
9.2 м2
Кухня
Продаётся уютная двухкомнатная квартира площадью 50.3 кв.м., + 1.65 лоджия, на втором этаже нового шестнадцатиэтажного панельного дома, расположенного по адресу: город Всеволожск, Севастопольская улица, дом 1. Квартира обладает продуманной планировкой:жилая площадь составляет 29.9 квадратных метров, кухня – 9.2 квадратных метра. Из окон открывается приятный вид во двор, где также расположена парковка для вашего автомобиля. Вас порадует качественный ремонт, который уже выполнен в квартире, благодаря чему вы сможете сразу же заехать и жить без дополнительных вложений и ремонтных работ. Для молодых семей и людей ведущих активный образ жизни важно отметить близость социальных объектов и мест отдыха: рядом находятся школа, детский сад, торговый центр, парк и фитнес-клуб, что значительно упрощает повседневную жизнь и позволяет экономить время на поездки за необходимыми товарами и услугами. Приобретая эту квартиру, вы выбираете комфортное проживание в новом современном доме в спокойном районе города. Приглашаем вас убедиться в преимуществах данного предложения лично!
Цена
8 300 000 ₽

2-х комнатная квартира

Петергоф г., Ропшинское шос. м.Автово


57.5 м2
Общая
34.5 м2
Жилая
9.5 м2
Кухня
Развитый, современный район г.Петергофа, загородная жизнь в 30 мин езды до Балтийского вокзала, удобнейшее транспортное сообщение: электричка, маршрутные и рейсовые автобусы, школы, ГМЗ Петергоф, парки, скверы, в единственной сталинском доме, отличная двухсторонняя планировка, высокие потолки, сделан ремонт, остается встроенная мебель, в прямой продаже, взрослый собственник, показы в удобное время.
Цена
8 699 000 ₽

2-х комнатная квартира

Ковалево пос., 2-я Поперечная ул м.Улица Дыбенко


51.7 м2
Общая
21.5 м2
Жилая
18 м2
Кухня
Всеволожский р-н Ковалево 2 Поперечная улица д 1/1     Удобная планировка для комфортной жизни: Просторная кухня-гостиная 18 м² с лоджией 3 м² – идеальное место для семейных ужинов и встреч с друзьями Две светлые разнесенные спальни 11,2 м² и 10,3 м² – достаточно места для всей семьи Функциональная прихожая 6,4 м² – удобно хранить вещи Санузел 3 м² и раздельный туалет 1,9 м² – комфортно для всей семьи Современная колясочная на первом этаже Велопарковка у парадной Камеры видеонаблюдения Безбарьерная среда на территории Пешая доступность до железнодорожной станции «Ковалево» В перспективе: Продление автобусного маршрута,продолжение Ириновского проспекта Строительство развязки с КАД Сейчас действует скидка  8% - 7 107 ! Семейная ипотека 4,55%, без удорожания
Цена
7 726 000 ₽

2-х комнатная квартира

Карпинского ул. м.Гражданский проспект


50.6 м2
Общая
28 м2
Жилая
6.8 м2
Кухня
Санкт-Петербург, ул.Карпинского 34,к.5 Предлагается уютнaя, светлая двухкомнатная квартирa. B кваpтиpe выпoлнeн кoсметический pемонт, пoэтому можно сразу въехать и жить. Koмнaты просторныe и свeтлыe, что cоздаeт комфopтную aтмосфepу для пpоживaния. Kухня удoбнoй планиpoвки, гдe мoжно размecтить всю необхoдимую бытовую теxнику. Санузел раздельный, что добавляет удобства в повседневной жизни. Дом расположен во дворе, вдали от городской суеты, что обеспечивает чистоту окон и отсутствие пыли. Для вашего автомобиля всегда найдется место на просторной парковке. Развитая инфраструктура района: рядом находятся два детских садика и две школы, спортивные площадки, сетевые продуктовые магазины, стоматология, аптека. Пешая доступность до метро `Академическая`- 20 минут, недалеко от дома остановки общественного транспорта, а также удобные автомобильные развязки, что делает передвижение по городу легким и комфортным.
Цена
6 800 000 ₽

Комната в 2-комн. квартире

Глухарская ул. м.Комендантский проспект


52 м2
Общая
17 м2
Жилая
10 м2
Кухня
Продаётся комната 17 кв.м в 2-ух комнатной квартире на ул. Глухарская в Приморском районе.  Кухня просторная, её площадь составляет 10 квадратных метров. В ней выделено удобное личное пространство. Санузел раздельный, всё в хорошем состоянии. Ванна отреставрирована, белая, чистая. В квартире проживает один приличный мужчина среднего возраста,  без вредных привычек. Живет не постоянно. Окна комнаты выходят в тихий двор . Тихий. спокойный район. Рядом с домом много зелёных зон, парков. Вблизи расположены Изотовский сквер, озёра Долгое и генерала Селезнёва с красивыми прогулочными зонами и чайками. Район с развитой инфраструктурой.  Вблизи находятся школы № 635,дДетская поликлиника № 155, детский сад, Медицинский институт имени Березина Сергея, церковь «Живописный источник» и Центр физической культуры. Транспортная доступность в этом районе на высоте: до КАД и ЗСД можно добраться на автомобиле всего за 10 минут. Также здесь хорошо развито городское транспортное сообщение. Напротив дома находится автобусная остановка, а до ближайшего метро «Комендантский проспект» можно доехать на автобусе всего за 15 минут, до метро «Пионерская» за 20 минут, и до м. «Старая Деревня» можно добраться на городском транспорте за 25 минут.  Рядом есть ТК «Долгоозерный» с рынком, ТЦ «Пять Озёр» и другие объекты.  В округе множество кофеен, «Перекрёсток», «Дикси», гипермаркетов «Лента», а также частных магазинов и организаций, что создаёт комфортные условия для жизни. Дом, в котором расположена квартира, был построен в 2004 году. В нём есть ухоженная парадная и нормальные соседи. Звукоизоляция отличная, всегда тепло. При входе в квартиру из парадной есть большой тамбур. Квартира свободна от обременений и долгов по коммунальным платежам. Звоните! Я отвечу на вопросы и организую просмотр.
Цена
3 500 000 ₽

Закажите консультацию специалиста

Оставьте заявку
Нажимая на кнопку «Отправить заявку», Вы даете согласие на обработку своих персональных данных.
×
продажа
Что вы хотите продать?
Сколько комнат?
Тип объекта?
В каком регионе?
В каком районе Санкт-Петербурга
В каком районе Ленинградской области?

Оставьте Ваш контакт и наши специалисты свяжутся с Вами в самые кротчайшие сроки.

+7
×
новостройка
Какие районы Санкт-Петербурга Вас интересуют?
С какой целью Вы планируете приобрести квартиру?
Сколько комнат должно быть в Вашей будущей квартире?
Какой вариант отделки Вам необходим?
Когда Вы хотите заехать?
В какой бюджет хотите уложиться?

Оставьте Ваш контакт и получите подборку квартир без риска столкнуться с мошенничеством и недостроем.

+7
×
сдать
Что вы хотите сдать?
Скольки комнатная квартира?
Какой тип коммерческой недвижимости вы хотите сдать?
В каком регионе?
В каком районе Санкт-Петербурга
В каком районе Ленинградской области?

Оставьте Ваш контакт и наши специалисты свяжутся с Вами в самые кротчайшие сроки.

+7
Этот сайт использует файлы cookie для улучшения пользовательского опыта. Cookie - это небольшие текстовые файлы, которые сохраняются на вашем устройстве и помогают нам запоминать ваши предпочтения, анализировать посещаемость сайта и предоставлять более персонализированный контент. Использование файлов cookie позволяет нам сделать сайт удобнее для вас. Политика конфиденциальности
Принять Отказаться