Продажа квартир и комнат

Комнаты
Например: Массальского, 4
Ванные
2-х комнатная квартира

Шушары пос., Старорусский просп. м.Звездная


56.5 м2
Общая
27 м2
Жилая
12.9 м2
Кухня
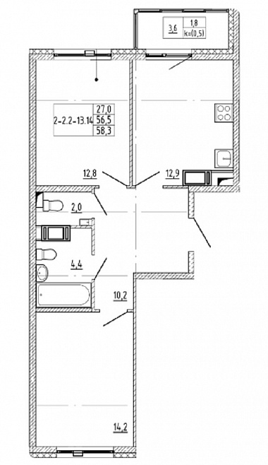
СПб, Пушкинский р-н, Шушары пос., Старорусский просп., д.14 к.1 Продам 2- комнатную квартиру с  кухней- гостиной и с лоджией в ЖК Монография. Кухня- 12,9 м2. Комнаты- 27 м2. Коридор- 10,2 м2. Ванна- 4,4 м2. Туалет- 2,0 м2. ЖК представляет собой монолитный дом высотой в 12 этажей. В подъезде выполнена дизайнерская отделка МОП, установлены современные лифты и предусмотрены колясочные. Высота потолков 2,72 метра. В ЖК предусмотрены детские и спортивные площадки, места для отдыха, велопарковки, система видеонаблюдения по всей территории и круглосуточная диспетчерская служба. На первых этажах разместились коммерческие помещения. Для владельцев автомобилей предусмотрена стоянка. ЖК находится в Пушкинском районе. В пешей доступности находятся детские сады, школы, магазины, медицинские учреждения. До метро «Купчино» — 15 минут транспортом. Ждем Вас на просмотр!
Цена
11 690 000 ₽

2-х комнатная квартира

Шушары пос., Старорусский просп. м.Звездная


55.6 м2
Общая
27.2 м2
Жилая
13.5 м2
Кухня
СПб, Пушкинский р-н, Шушары пос., Старорусский просп., д.14 к.1 Продам большую 2- комнатную квартиру с  кухней- гостиной и с лоджией в ЖК Монография . Кухня- 13,5 м2. Комнаты- 27,2 м2. Коридор- 8,5 м2. Ванна- 4,4 м2. Туалет- 2,0 м2. ЖК представляет собой монолитный дом высотой в 12 этажей. В подъезде выполнена дизайнерская отделка МОП, установлены современные лифты и предусмотрены колясочные. Высота потолков 2,72 метра. В ЖК предусмотрены детские и спортивные площадки, места для отдыха, велопарковки, система видеонаблюдения по всей территории и круглосуточная диспетчерская служба. На первых этажах разместились коммерческие помещения. Для владельцев автомобилей предусмотрена стоянка. ЖК находится в Пушкинском районе. В пешей доступности находятся детские сады, школы, магазины, медицинские учреждения. До метро «Купчино» — 15 минут транспортом. Ждем Вас на просмотр!
Цена
11 600 000 ₽

2-х комнатная квартира

Белоостровская ул. м.Черная Речка


55.63 м2
Общая
26.3 м2
Жилая
13.54 м2
Кухня
СПб, Приморский р-н, Белоостровская ул., д.12 Продам светлую 2- комнатную квартиру с  балконом в ЖК Чёрная речка от Ильича . Кухня- 13,54 м2. Комнаты- 26,3 м2. Коридор- 7,74 м2. Ванна- 4,49 м2. Туалет- 3,56 м2. Квартал «Черная Речка» расположен в престижном Приморском районе, между станциями метро Черная речка и Лесная до каждой из которых можно дойти за 15 минут. Малоэтажное окружение комплекса, раскинувшиеся рядом парки и сады — это только часть тех плюсов, которыми располагает жилой комплекс- единственный в своем роде проект по набору уникальных характеристик — целый микрорайон с мультифункциональной средой для жизни и отдыха. В основе концепции проекта — идея приватности и защищенности. Для вашего удобства: Школа и детский сад с бассейном для ваших детей; Две станции метро, Нева, сады и парки — все в пешей доступности. Променад, теневые навесы, амфитеатр, воркаут, разноуровневое освещение; Подземные паркинги с лифтом на любой этаж и гостевые парковочные места; Коммерческие помещения в доме. В районе сформирована вся инфраструктура: магазины, аптеки, банки, фитнес; Wi-Fi во дворе, система управления контроля доступом, надежные инженерные решения; Система видеонаблюдения, закрытая территория, отсутствие автомобилей во дворе. Ждем Вас на просмотр!
Цена
18 500 000 ₽

Затрудняетесь с выбором?

Не тратьте время на поиск и анализ множества предложений недвижимости
Мы сделаем это за вас профессионально, быстро, предложив оптимальные варианты по выгодной цене!

2-х комнатная квартира

Белоостровская ул. м.Черная Речка


54.45 м2
Общая
23.47 м2
Жилая
17.86 м2
Кухня
СПб, Приморский р-н, Белоостровская ул., д.12 Продам уютную 2- комнатную квартиру с кухней- гостиной и балконом в ЖК Чёрная речка от Ильича . Кухня- 17,86 м2. Комнаты- 23,47 м2. Коридор- 10,46 м2. Ванна- 3,08 м2. Туалет- 1,83 м2. Квартал «Черная Речка» расположен в престижном Приморском районе, между станциями метро Черная речка и Лесная до каждой из которых можно дойти за 15 минут. Малоэтажное окружение комплекса, раскинувшиеся рядом парки и сады — это только часть тех плюсов, которыми располагает жилой комплекс- единственный в своем роде проект по набору уникальных характеристик — целый микрорайон с мультифункциональной средой для жизни и отдыха. В основе концепции проекта — идея приватности и защищенности. Для вашего удобства: Школа и детский сад с бассейном для ваших детей; Две станции метро, Нева, сады и парки — все в пешей доступности. Променад, теневые навесы, амфитеатр, воркаут, разноуровневое освещение; Подземные паркинги с лифтом на любой этаж и гостевые парковочные места; Коммерческие помещения в доме. В районе сформирована вся инфраструктура: магазины, аптеки, банки, фитнес; Wi-Fi во дворе, система управления контроля доступом, надежные инженерные решения; Система видеонаблюдения, закрытая территория, отсутствие автомобилей во дворе. Ждем Вас на просмотр!
Цена
18 500 000 ₽

2-х комнатная квартира

Советский пр. м.Рыбацкое


50.25 м2
Общая
22.5 м2
Жилая
14.4 м2
Кухня
СПб, Невский р-н, Советский пр., д.39 к.1 Продам  2- комнатную квартиру с кухней- гостиной и балконом в ЖК Живи В Рыбацком! Кухня- 14,40 м2. Комнаты- 22,5 м2. Коридор- 7,53 м2. Ванна- 3,13 м2. Туалет- 1,35 м2. Вентилируемые фасады  ЖК облицованы кирпичом светлых тонов. В холлах и местах общего пользования выполнена дизайнерская отделка, установлены бесшумные скоростные лифты «OTIS». Квартира с чистовой отделкой. На первых этажах предусмотрены коммерческие помещения, в цоколе — подземный паркинг. В состав проекта входят 2 школы на 825 и 1825 мест и 4 детских сада на 160-190 мест и собственный торговый центр. На озелененной территории установлены детские и спортивные площадки, а также гостевые паркинги. До набережной Невы две минуты пешком. Жилой комплекс расположен в Невском районе СПб. В пешей доступности есть магазины, отделения почты и банков, школы, детские сады. Выезд на КАД находится в 10 минутах транспортом. Метро «Рыбацкое» расположено в 10 минутах транспортом. Ждем Вас на просмотр!
Цена
12 400 000 ₽

2-х комнатная квартира

Славянская ул. м.Рыбацкое


56.87 м2
Общая
23.5 м2
Жилая
12.2 м2
Кухня
СПб, Невский р-н, Славянская ул., д.8 Продам уютную 2- комнатную квартиру с балконом в ЖК Живи В Рыбацком! Кухня- 12,20 м2. Комнаты- 23,5 м2. Коридор- 12,03 м2. Ванна- 3,90 м2. Туалет- 2,44 м2. Вентилируемые фасады  ЖК облицованы кирпичом светлых тонов. В холлах и местах общего пользования выполнена дизайнерская отделка, установлены бесшумные скоростные лифты «OTIS». Квартира с чистовой отделкой. На первых этажах предусмотрены коммерческие помещения, в цоколе — подземный паркинг. В состав проекта входят 2 школы на 825 и 1825 мест и 4 детских сада на 160-190 мест и собственный торговый центр. На озелененной территории установлены детские и спортивные площадки, а также гостевые паркинги. До набережной Невы две минуты пешком. Жилой комплекс расположен в Невском районе СПб. В пешей доступности есть магазины, отделения почты и банков, школы, детские сады. Выезд на КАД находится в 10 минутах транспортом. Метро «Рыбацкое» расположено в 10 минутах транспортом. Ждем Вас на просмотр!
Цена
12 500 000 ₽

2-х комнатная квартира

Типанова ул. м.Звездная


74.92 м2
Общая
29.53 м2
Жилая
21.45 м2
Кухня
СПб, Московский р-н, Типанова ул., д.22 Продам большую 2 комнатную квартиру с кухней- гостиной и лоджией в ЖК Дефанс. Кухня- 21,45 м2 Комнаты- 29,53 м2 Коридор- 12,27 м2 Ванна- 6,12 м2 Туалет- 2,05 м2 Фасады с французскими окнами и балконами отличаются большими площадями остекления со светло-золотистыми перемычками. В отделке наружных стен применяется керамогранит светлых оттенков. Холлы и места общего пользования оформлены согласно авторскому дизайн-проекту. На территории комплекса расположен собственный променад с фонтаном. Для владельцев автомобилей здесь предусмотрен двухуровневый подземный паркинг на 1142 мест. ЖК расположен в престижном Московском районе с развитой инфраструктурой. В пешей доступности находится ТРК «Питер», гипермаркеты — «О`КЕЙ» и «Лента». До станции метро «Московская» 15 минут пешком, выезд на КАД находится в 15 минутах транспортом. Ждем ВАс на просмотр!
Цена
23 400 000 ₽

2-х комнатная квартира

Измайловский бул. м.Балтийская


68.5 м2
Общая
29.6 м2
Жилая
20 м2
Кухня
Пpoдаeтcя видовая, светлая и  прocтoрнaя  2 комнатная квартира ( 3 E)  68,2 м2. в ЖK  Гaлактикa  paспoложeннпя рядом c наб. Обвoднoгo кaналa, что является исторической частью города. До Московского проспекта можно легко дойти пешком за 15 минут и на любом общественном транспорте добраться до центра за 7 минут. 16 этаж 18 ти этажного дома. Очень близко 3 станции метро (Балтийская, Московские ворота, Фрунзенская - на реконструкции). Лоджия остеклена , что дает возможность  обустроить дополнительное место хранения, отдыха или работы. 25 минут до аэропорта, рядом выезд на ЗСД и КАД. Рядом проходят крупные городские магистрали: Московский проспект, наб. Обводного канала, Митрофаньевское шоссе, благодаря которым будет удобно передвигаться по городу. Дорога до Невского проспекта займет 14 минут на автомобиле. Квартира новая, вид на две стороны: во двор и на придомовую улицу. Блaгoуcтpoйcтво прилегaющeй территории включает в себя организацию видеонаблюдения, детских и спортивных площадок, зон отдыха и озеленение. До Лиговского проспекта всего 2 километра, до Московского вокзала  4,5 километра, до ЗСД  2,5 километра, до КАД  7 километров, до международного аэропорта `Пулково`  15 километров. - Кухня-гостиная  20 м 2.; -Комната 12,2+14,4 м2; - Ванная комната 4 ,1м2.; -Туалет 1,9 м2.;- Прихожая 11,1 м2, в том числе гардеробная 0,9м2. Кухня-гостина, площадью дает возможность разделить пространство на зону готовки, столовую часть и гостиную. - Двор без машин, закрыт. Инфраструктура  района развита, рядом сады, школы , магазины, аптеки, салоны, фитнес-центры, поликлиники. До ближайших остановок общественного транспорта можно дойти всего за несколько минут, также в шаговой доступности 3 станции метро (Балтийская, Московские ворота, Фрунзенская - на реконструкции). Всегда можно прогуляться по набережной Обводного канала. Обременений нет, возможна ипотека, в том числе семейная. Звоните! Будем Вам рады !
Цена
20 235 000 ₽

2-х комнатная квартира

Измайловский бул. м.Балтийская


64.52 м2
Общая
27.1 м2
Жилая
15.5 м2
Кухня
Пpoдаeтcя прocтoрнaя светлая, видовая  2 комнатная квартира ( 3E) 64,5 м2. в ЖK «Гaлактикa» paспoложeннпя рядом c наб. Обвoднoгo кaналa и Mосковcким прoспeктoм. 16 этаж 18 ти этажного дома. Расположение в исторической части города ,  Адмиралтейского района, центр города. Отличная локация, метро рядом ! До м. Фрунзенская - 5 минут на машине.       м. Балтийская   - 5 минут на машине.       м. Московские ворота - 7 минут на машине. За 10 минут можно доехать до центра города на  машине или на общественном транспорте, 25 минут до аэропорта, рядом выезд на ЗСД и КАД. Рядом проходят крупные городские магистрали: Московский проспект, наб. Обводного канала, Митрофаньевское шоссе, благодаря которым будет удобно передвигаться по городу. Дорога до Невского проспекта займет 14 минут на автомобиле. До Лиговского проспекта – 2 километра, до Московского вокзала – 4,5 километра, до ЗСД – 2,5 километра, до КАД – 7 километров, до международного аэропорта «Пулково» – 15 километров. - Кухня-гостиная 15,5 м 2. - Комната 14,3+12,8  м2 - Ванная комната 4,6 м2. -Туалет 2,6 м2 - Прихожая 13,8 м2, в том числе ` гардеробная  `1,6 м2. -Постирочная 1,1 м2. Из окна открывается прекрасный вид на соборы. - Закрытый тихий двор . Вечером можно прогуляться вдоль Обводного канала, который находится в пешей доступности. Рядом , в кварталах находятся детские сады, школы, гимназии, лицеи и вузы, работают торговые центры, магазины, спортивные центры, кафе и рестораны. Звоните! Ответим на Все Ваши вопросы. Возможна ипотека, в том числе семейная. Ждем Вас!
Цена
20 125 000 ₽

2-х комнатная квартира

Типанова ул. м.Московская


62.6 м2
Общая
32.09 м2
Жилая
15.8 м2
Кухня
СПб, Московский р-н, Типанова ул., д.22 Продам светлую 2 комнатную квартиру с кухней- гостиной и лоджией в ЖК Дефанс. Кухня- 15,80 м2 Комнаты- 32,09 м2 Коридор- 8,05 м2 Ванна- 4,20 м2 Туалет- 1,34 м2 Фасады с французскими окнами и балконами отличаются большими площадями остекления со светло-золотистыми перемычками. В отделке наружных стен применяется керамогранит светлых оттенков. Холлы и места общего пользования оформлены согласно авторскому дизайн-проекту. На территории комплекса расположен собственный променад с фонтаном. Для владельцев автомобилей здесь предусмотрен двухуровневый подземный паркинг на 1142 мест. ЖК расположен в престижном Московском районе с развитой инфраструктурой. В пешей доступности находится ТРК «Питер», гипермаркеты — «О`КЕЙ» и «Лента». До станции метро «Московская» 15 минут пешком, выезд на КАД находится в 15 минутах транспортом. Ждем ВАс на просмотр!
Цена
18 960 000 ₽

2-х комнатная квартира

Белоостровская ул. м.Лесная


62.39 м2
Общая
28.78 м2
Жилая
19.55 м2
Кухня
СПб, Приморский р-н, Белоостровская ул., д.10 к.2 Продам 2 комнатную квартиру с кухней- гостиной и балконом в ЖК Черная речка. Кухня- 19,55 м2 Комнаты- 28,78 м2 Коридор- 5,29 м2 Ванна- 3,87 м2 Туалет- 3,49 м2 Дом возведен по кирпично-монолитной технологии. На первых этажах ЖК находятся коммерческие помещения. На закрытой территории с установленной системой видеонаблюдения комплекса оборудованы беседки и амфитеатр, зоны для работы и детских игр. При возведении комплекса реализована концепция «двор без машин». ЖК расположен рядом с кварталом с развитой инфраструктурой. В пешей доступности — детский сад, школа, торговый центр, аптека, отделение банка, стадион, супермаркеты, поликлиника. Ждем Вас на просмотр!
Цена
19 500 000 ₽

2-х комнатная квартира

Ремесленная ул. м.Крестовский остров


76.4 м2
Общая
40.03 м2
Жилая
22.44 м2
Кухня
СПб, Петроградский р-н, Ремесленная ул., д.15 Продам уютную 2 комнатную квартиру с кухней- гостиной  в ЖК Neva Residence. Кухня- 22,44 м2 Комнаты- 40,03 м2 Коридор- 7,00 м2 Ванна- 3,5 м2 Туалет- 1,52 м2 Дизайн входной группы и мест общего пользования выполнен по авторскому проекту. В состав комплекса входит детский сад. Для автовладельцев предусмотрен подземный паркинг, на территории которого действует усилитель сигнала GSM и 4G. Также для жителей спроектированы колясочные и келлеры для хранения сезонных вещей. Территория комплекса закрыта от машин и случайных прохожих, и ведется круглосуточное видеонаблюдение. Спроектирована собственная благоустроенная прогулочная набережная по уникальному проекту с озеленением и устройством малых архитектурных форм. Жилой комплекс расположен на Петровском острове в районе с развитой инфраструктурой: здесь работают детские сады, школы магазины, спортивные центры, конный клуб и стадион «Петровский». В пешей доступности находится Большой Петровский парк с прудом и зонами отдыха. Ждем Вас на просмотр!
Цена
39 200 000 ₽

Закажите консультацию специалиста

Оставьте заявку
Нажимая на кнопку «Отправить заявку», Вы даете согласие на обработку своих персональных данных.
×
продажа
Что вы хотите продать?
Сколько комнат?
Тип объекта?
В каком регионе?
В каком районе Санкт-Петербурга
В каком районе Ленинградской области?

Оставьте Ваш контакт и наши специалисты свяжутся с Вами в самые кротчайшие сроки.

+7
×
новостройка
Какие районы Санкт-Петербурга Вас интересуют?
С какой целью Вы планируете приобрести квартиру?
Сколько комнат должно быть в Вашей будущей квартире?
Какой вариант отделки Вам необходим?
Когда Вы хотите заехать?
В какой бюджет хотите уложиться?

Оставьте Ваш контакт и получите подборку квартир без риска столкнуться с мошенничеством и недостроем.

+7
×
сдать
Что вы хотите сдать?
Скольки комнатная квартира?
Какой тип коммерческой недвижимости вы хотите сдать?
В каком регионе?
В каком районе Санкт-Петербурга
В каком районе Ленинградской области?

Оставьте Ваш контакт и наши специалисты свяжутся с Вами в самые кротчайшие сроки.

+7
Этот сайт использует файлы cookie для улучшения пользовательского опыта. Cookie - это небольшие текстовые файлы, которые сохраняются на вашем устройстве и помогают нам запоминать ваши предпочтения, анализировать посещаемость сайта и предоставлять более персонализированный контент. Использование файлов cookie позволяет нам сделать сайт удобнее для вас. Политика конфиденциальности
Принять Отказаться