Продажа квартир и комнат

Комнаты
Например: Массальского, 4
Ванные
3-х комнатная квартира

Сертолово г., Тихвинская ул. м.Проспект Просвещения


79 м2
Общая
43 м2
Жилая
21 м2
Кухня
Цена
12 800 000 ₽
В продаже двусторонняя трехкомнатная квартира на 2-м этаже в корпусе ‘Лесной’ малоэтажного ЖК комфорт-класса ‘Новое Сертолово’. Отличительной чертой корпуса ‘Леcнoй’ является наличие всего 3-х квартир на этаже. В подъезде 12 квартир, отсутствуют однокомнатные квартиры и студии. Два лифта-грузовой и пассажирский немецкой фирмы Steimberg. Просторная светлая квартира с огромной кухней (21 кв.м.) с эркером, где можно организовать большую обеденную зону для всей семьи. Три изолированных комнаты. В одной из спален имеется застекленная лоджия, которую можно оформить как уютную лаундж-зону для отдыха. Закрытый внутренний двор с детской и спортивной площадкой используется только жителями дома. В корпусе отсутствуют коммерческие помещения. Инфраструктура ЖК полностью развита: два магазина ‘Магнит’, ‘Фермер’, ‘Милкбург’, ‘Вкусвилл’, пиццерии, суши-бар, кафе, спортклубы, детские развивающие секции и центры, аптеки, медцентр, МФЦ, почта, ‘Ozon’, ‘Wildberries’ и Яндекс Маркет. В центре ЖК в пешей доступности большая новая школа и 2 современных детских садика. На всей территории ЖК ‘Новое Сертолово’ ведется круглосуточное видеонаблюдение. На придомовой территории (во дворе и с внешней стороны) бесплатные парковочные места всегда в наличии. Общественный транспорт регулярно ходит напрямую из жилого комплекса до ст.метро Пр.Просвещения. Дорога занимает порядка 25-30 минут. Удобный выезд на КАД, до ЗСД 15 минут на автомобиле и до центра Санкт-петербурга 30 минут на автомобиле. 1 взрослый собственник, обременений нет, никто не прописан. Полная стоимость в договоре. Быстрый выход на сделку.

Комната в 3-комн. квартире

Сестрорецк г., Дубковское шос. м.Беговая


63.5 м2
Общая
35.2 м2
Жилая
6 м2
Кухня
Цена
6 800 000 ₽
(110) Сестрорецк, Дубковское шоссе дом 17. Продаются две смежные комнаты 35.2м2 (17.5+17.7) в трёхкомнатной квартире 63.6м2 на 9 этаже, комнаты определены долями 3/4, общая площадь согласно долям составляет 47.6 м. Комнаты оборудованы панорамными окнами с видом на парк и финский залив. Так же в комнатах установлены гипсокартонные перегородки с дверьми и фрамугами, что разделяет их на спальные зоны и зоны отдыха. Проживает в квартире еще одна соседка. В комнатах заменена проводка на медную, произведён хороший ремонт в квартире, по желанию останется кухонный гарнитур и иная мебель по договоренности. Квартира расположена в курортной зоне, вблизи парка, реки и финского залива. Во дворе дома садик и школа, до магазина пятерочка 5 минут пешком, удобная расположенность, хорошие транспортное сообщение до города и пригорода.

3-х комнатная квартира

Полюстровский просп. м.Площадь Ленина


73.2 м2
Общая
52.4 м2
Жилая
8 м2
Кухня
Цена
11 330 000 ₽
Продается просторная 3-комнатная квартира в кирпичном доме 1953 г. в Калининском районе по адресу: Полюстровский пр-т, д.51 Общая площадь квартиры-73,2, жилая-52,4(23,8-17,7-10,9), кухня-8,коридор-8,2, санузел раздельный(3,4-1,2) Окна выходят на 2 стороны, квартира требует ремонта. Хорошая транспортная доступность.До финляндского вокзала 15 минут общественным транспортом. Развитая инфраструктура. В пешей доступности: 3 школы, 2 детских сада, 1 поликлиника и больница, 31 магазин. В 10 минутах ходьбы Полюстровский парк. Возможен торг.

Затрудняетесь с выбором?

Не тратьте время на поиск и анализ множества предложений недвижимости
Мы сделаем это за вас профессионально, быстро, предложив оптимальные варианты по выгодной цене!

3-х комнатная квартира

Отрадное г., Лесная ул. м.Рыбацкое


62.7 м2
Общая
45.2 м2
Жилая
5.6 м2
Кухня
Цена
7 300 000 ₽
Продается 3х комнатная, уютная квартира на 3ем этаже 5ти этажного дома.Тихий спокойный двор.До реки Нева 10мин пешком.Парковка и магазины в шаговой доступности,До Спб -20 км,ходят автобусы.

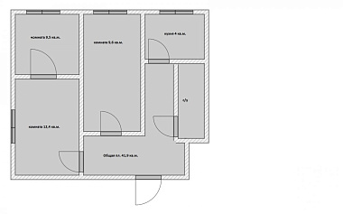
3-х комнатная квартира

Первомайское 1-е (Тайвань) м.Беговая


41.9 м2
Общая
31.5 м2
Жилая
4 м2
Кухня
Цена
2 200 000 ₽
Продается 3к квартира в кирпичном доме 1972г. в поселке Первомайское-1(Тайвань),д.2 Общая площадь квартиры-41,9, жилая-31,5(12,4-9,6-9,5), кухня-4,коридор-4,8 Окна выходят на 2 стороны, квартира требует ремонта Имеется огород(более 10 соток), парник, сарай-кладовая, качели. Поселок расположен в окружении соснового леса, грибные и ягодные места. Озеро лесное 15-20 мин пешком. В поселке есть магазинчик. Вся инфраструктура: сетевые магазины, школа, дет садики, больница, сбербанк и т.д.  находится в п.Первомайское( 13 км). Квартира отлично подойдет как для дачи, так и для постоянного проживания. Один собственник, без обременений. Возможен торг.

3-х комнатная квартира

Всеволожск г., Московская ул. м.Ладожская


81.1 м2
Общая
56.4 м2
Жилая
8.5 м2
Кухня
Цена
12 500 000 ₽
Р.Ф., Ленинградская область, Всеволожский муниципальный район, г Всеволожск, м/р Южный,ул. Московская, д.20/7  В продаже  3- комнатная  квартира в панельном  доме   2008 г. постройки, квартира расположена  на 3 этаже 8-ми этажного дома . Общая площадь квартиры 81,1 кв.м., жилая 56,4 кв.м., все комнаты раздельные 24,6+16,*+15,кухня 8,5 кв.м., прихожая 11,5 кв.м.,. сан.узел раздельный, ванна-2,6 кв.м., туалет-1,1 кв.м. . Окна-стеклопакеты, выходят на 2 стороны, пол-ламинат,на кухне -пол кафель. ванна и туалет отделаны кафелем, в туалете установлен бойлер, поэтому в летний период  перебоев с горячей водой нет,  небольшая, но уютная, лоджия застеклена.  Квартира не угловая, поэтому  всегда  очень тепло. Хорошая звукоизоляция.  Состояние -отличное, можно въехать и жить. В подарок покупателю остается кухонная мебель и часть мебели в комнатах.  Чистый подъезд. Отличные соседи. В м/р Южный - 2 школы, 4 д.сада, аптеки, супермаркеты-Лента, Магнит, Верный и т.д.  Достоинством м/р является близость к лесу (200 метров от дома) и экологически чистые Ждановские  озера- (2км. от дома), где местные жители отдыхают и собирают грибы и ягоды. До СПб  ходят автобус 531 через каждые 5-10 минут, до остановки 3 мин. пешком и  злектрички до ж/д станции Всеволожская- 5 мин. транспортом или 25 мин. пешком по благоустроенной дороге, время в пути  по ж/д-30 мин. до Финляндского вокзала. Встречная покупка, документы готовы.

3-х комнатная квартира

Ломоносов г., Красного Флота ул. м.Автово


56.5 м2
Общая
39.6 м2
Жилая
6.9 м2
Кухня
Цена
7 000 000 ₽
Санкт-Петербург, г. Ломоносов, ул. Красного Флота, д. 1а. Удобная, светлая, 3 к.кв. в одном из лучших пригородов СПб, на комфортном 3 этаже. Теплый кирпичный дом! Высота потолков - 2,75 м. Планировка смежно-изолированная, комнаты на две стороны - в тихие и спокойные дворы. Из одной комнаты открывается чудесный вид на залив. Санузел раздельный. Квартира ждет покупателя, желающего превратить обычную удобную квартиру в свою мечту! ОФИЦИАЛЬНО СОГЛАСОВАНА ПЕРЕПЛАНИРОВКА на увеличение кухни до шикарной просторной кухни-гостиной, расширение санузла и спальни. При желании новый владелец может воспользоваться перепланировкой или оставить квартиру в прежнем виде! Балкон на солнечную сторону. Спокойное, тихое, зеленое место. Рядом вся инфраструктура необходимая для комфортной жизни - сетевые магазины, банки, школы, д/садики, поликлиника, транспорт, МФЦ, спортивный комплекс, кинотеатр. До ж.д. вокзала 5 минут пешком, остановки транспорта недалеко от дома. В шаговой доступности  замечательные места для отдыха и прогулок!   Покажем в удобное для Вас время. Прямая продажа. Два взрослых собственника. Документы к продаже готовы. Звоните.

3-х комнатная квартира

Сестрорецк г., Приморское шос. м.Беговая


54.4 м2
Общая
40.1 м2
Жилая
5 м2
Кухня
Цена
10 900 000 ₽
(27)Квартира в центре г. Сестрорецк  Курортного района Санкт- Петербурга. В хорошем состоянии. Требуется небольшая косметика. Трубы заменены. Стеклопакеты на окнах и радиаторы  новые. Зеленый двор.Вся инфраструктура  рядом. Остановка общественного транспорта, детский сад, больница, поликлиника, магазины в шаговой доступности , 100м набережная Сестрорецкого разлива. Идеальное предложение  для сдачи в аренду для отдыха и лечения.Собственность более 5 лет. Прямая продажа.Торг!

3-х комнатная квартира

Всеволожск г., Лубянская ул. м.Ладожская


51.1 м2
Общая
35.6 м2
Жилая
6 м2
Кухня
Цена
5 100 000 ₽
Ленинградская обл, г.Всеволожск, ул.Лубянская,д.2. Трехкомнатная квартира, в теплом кирпичном, пятиэтажном  доме, на  пятом  комфортном  этаже (нет соседей сверху). Комнаты смежно-изолированные. В  изолированной  комнате  сделан свежий  ремонт, полы ламинат. Состояние  в целом нормальное. Квартира  чистая. Есть балкон из большой комнаты.  Зеленый двор с детской площадкой, вокруг сосны.  До ж\д  М.ручей  10 минут пешком. Прямая продажа. Зарегистрированных нет.Отличное предложение для постоянного проживания вблизи СПб или загородного отдыха.

3-х комнатная квартира

Ломоносов г., Швейцарская ул. м.Купчино


62.3 м2
Общая
45.7 м2
Жилая
5.4 м2
Кухня
Цена
6 300 000 ₽
Санкт-Петербург, Петродворцовый р-н, г. Ломоносов, ул. Швейцарского, д.8к2 Ломоносов - один из пригородов Санкт-Петербурга, расположенный на побережье Финского залива. Здесь находится просторная трехкомнатная квартира общей площадью 62,3 кв.м. на первом этаже пятиэтажного дома. Квартира имеет три изолированные комнаты и кухню 5,4 кв.м, выходят на разные стороны (Запад и Восток). Раздельный санузел. Тихие соседи и чистый подъезд создают приятную атмосферу. Все необходимое для комфортной жизни находится в шаговой доступности от квартиры: детские сады, школы, магазины, поликлиника, пункты выдачи товаров интернет-магазинов. В 3 минутах съезд на КАД. В 5 минутах остановки общественного транспорта с маршрутами до трех станций метро, в 20 минутах ж/д станция Ораниенбаум (электричка до Балтийского вокзала). Кроме того, в двадцати минутах от дома расположен Финский залив и Дворцово-парковый ансамбль `Ораниенбаум` - прекрасное место для прогулок и отдыха на природе. А в пятнадцати минутах езды находятся знаменитые Петергофские фонтаны - памятник архитектуры и искусства, который привлекает множество туристов. Встречная покупка. Поможем с одобрением ипотеки. Звоните, пишите, записывайтесь на просмотр, отвечу на любые вопросы.

3-х комнатная квартира

Володарское пос. м.Балтийская


46.6 м2
Общая
34 м2
Жилая
4.7 м2
Кухня
Цена
2 000 000 ₽
Лужский район, пос. Володарского. В нашем современном и благоустроенном поселке предлагается уютная трехкомнатная квартира. Это отличное решение для семей с детьми, так как в шаговой доступности находятся школа, детский сад и разнообразные магазины. Квартира находится на первом этаже, планировка продумана до мелочей, что позволит вам заселиться сразу после покупки. Общая площадь составляет 46 кв. м, жилая — 34 кв. м, а кухня — 4,7 кв. м. Всего в 3 минутах от дома находится живописное озеро Врево, где можно прогуляться и отдохнуть на природе, а также сосновый бор для пикников и занятий спортом. Регулярные автобусные рейсы обеспечивают быстрый и удобный доступ к городу и его окрестностям. Эта квартира станет прекрасным выбором для тех, кто ценит комфорт и уют. Не упустите свой шанс приобрести ее! Прямая продажа, один взрослый собственник. Свяжитесь с нами для уточнения деталей и организации просмотра.

3-х комнатная квартира

Ломоносов г., Красного Флота ул. м.Беговая


81 м2
Общая
58.1 м2
Жилая
7.6 м2
Кухня
Цена
9 900 000 ₽
Санкт-Петербург, Ломоносов, Кр.Флота, д.3. Предлагается на продажу 3-х комнатная квартира в `сталинском` доме. Потолки 3.2 м.! Есть возможность увеличения кухни до 12,6 кв.м. за счет прилегающей проходной комнаты. Квартира двухсторонняя, окна выходят на запад и восток. Все комнаты изолированные. Санузел раздельный. Несмотря на то, что 3 собственника, квартира в хорошем состоянии! Приличные соседи. Спокойный зеленый двор. Несовершеннолетних нет. Документы к сделке готовы. Простая встречная покупка - 1 объекта.

Закажите консультацию специалиста

Оставьте заявку
Нажимая на кнопку «Отправить заявку», Вы даете согласие на обработку своих персональных данных.
×
продажа
Что вы хотите продать?
Сколько комнат?
Тип объекта?
В каком регионе?
В каком районе Санкт-Петербурга
В каком районе Ленинградской области?

Оставьте Ваш контакт и наши специалисты свяжутся с Вами в самые кротчайшие сроки.

+7
×
новостройка
Какие районы Санкт-Петербурга Вас интересуют?
С какой целью Вы планируете приобрести квартиру?
Сколько комнат должно быть в Вашей будущей квартире?
Какой вариант отделки Вам необходим?
Когда Вы хотите заехать?
В какой бюджет хотите уложиться?

Оставьте Ваш контакт и получите подборку квартир без риска столкнуться с мошенничеством и недостроем.

+7
×
сдать
Что вы хотите сдать?
Скольки комнатная квартира?
Какой тип коммерческой недвижимости вы хотите сдать?
В каком регионе?
В каком районе Санкт-Петербурга
В каком районе Ленинградской области?

Оставьте Ваш контакт и наши специалисты свяжутся с Вами в самые кротчайшие сроки.

+7
Этот сайт использует файлы cookie для улучшения пользовательского опыта. Cookie - это небольшие текстовые файлы, которые сохраняются на вашем устройстве и помогают нам запоминать ваши предпочтения, анализировать посещаемость сайта и предоставлять более персонализированный контент. Использование файлов cookie позволяет нам сделать сайт удобнее для вас. Политика конфиденциальности
Принять Отказаться