Продажа квартир и комнат

Комнаты
Например: Массальского, 4
Ванные
3-х комнатная квартира

Красное Село г., Гатчинское шос. м.Проспект Ветеранов


60.4 м2
Общая
41.6 м2
Жилая
5.8 м2
Кухня
Продается 3-х комнатная квартира в Красном Селе на Гатчинском шоссе, 9 к1, 3/9, кирпич, есть балкон ( не застеклен), установлены стеклопакеты, комнаты смежно-изолированные, площадь комнат 41,6м2 (10,5+11,7+19,4), кухня 5,8м2, санузел раздельный.  В двух комнатах смежно-изолированных ремонт ранее выполнялся,  в изолированной комнате ремонт однозначно требуется. На потолках плитка потолочная, полы- паркет (требуется циклевка  или замена), на кухне линолеум. Сантехника в рабочем состоянии. Квартира приватизирована в феврале 2015. Три сособственника. Рядом с домом  две поликлиники (взрослая и детская), две общеобразовательные школы, Мегамаркет, 5-ка, Пловдив, отделение Сбербанка, остановки общественного транспорта.  Встречная покупка - 1 комнатная квартира в Красном Селе. С отделом опеки и попечительства согласован вопрос расчета за долю в праве собственности несовершеннолетнего  ребенка ( оформлено письменное решение администрации).
Цена
6 800 000 ₽

3-х комнатная квартира

Горбунки дер. м.Проспект Ветеранов


69 м2
Общая
46.2 м2
Жилая
8.4 м2
Кухня
Предлагается к продаже отличная трёхкомнатная квартира в д. Горбунки Ломоносовского района Ленинградской области. Площадь квартиры 69 м.кв., в каждой комнате есть застеклённая лоджия. Все комнаты изолированные, просторная прихожая, кухня 8,4 метра. Санузел раздельный. Везде установлены стеклопакеты. На кухне и в прихожей линолеум, в комнатах частично ламинат. Очень удобная планировка, есть большая гардеробная. Развитый микрорайон. В шаговой доступности магазины, аптеки, школа, детский сад, Преображенская церковь. Удобное транспортное сообщение, рядом остановки общественного транспорта, автобусы ходят до метро. Быстрый выезд на КАД. Возле дома большая парковка. Документы готовы к сделке. Два собственника, полная стоимость в договоре. Лёгкая встречная покупка.
Цена
6 600 000 ₽

3-х комнатная квартира

Дубровка пос., Невская ул. м.Рыбацкое


68 м2
Общая
33 м2
Жилая
19 м2
Кухня
Ленинградская область Всеволожский район п. Дубровка ул. Невская д.2 Покупателю предлагается  3- комнатная квартира. Потолки  — 3 м. На  прилегающей к дому территории  игровые и спортплощадки, места для отдыха и зеленые зоны. Созданы условия для проживания маломобильных групп населения — подъемники для инвалидов, понижающие площадки и безбарьерная среда в холлах. Открытая парковка во дворе. Окружение Жилой комплекс  находится на правом берегу Невы. Оборудованы смотровые площадки, прогулочная зона, пляж - в жаркую погоду это супер преимущество!!!!!   Лес.  За 10 минут автомобилем можно доехать до карьеров в Манушкино. Поселок небольшой, поэтому вся доступная инфраструктура под боком. Рядом работают школа, детский сад, амбулатория, универсам `Пятерочка` и торговый центр `Рома`. В Дубровке есть яхт-клуб `Морские волки` и тренажерный зал. При желании можно посетить музей `Невский пятачок`. До КАД жители поселения добираются по Мурманскому шоссе. Расстояние до кольцевой 30 км. В пяти минутах ходьбы от квартала ж/д станция `Невская Дубровка`, откуда электрички отправляются в сторону Финляндского вокзала. Автобусы и маршрутные такси обеспечивают связь со станциями метро `Улица Дыбенко` и `Проспект Большевиков`.
Цена
7 694 000 ₽

Затрудняетесь с выбором?

Не тратьте время на поиск и анализ множества предложений недвижимости
Мы сделаем это за вас профессионально, быстро, предложив оптимальные варианты по выгодной цене!

3-х комнатная квартира

Всеволожск г., Александровская ул. м.Девяткино


73 м2
Общая
42 м2
Жилая
10 м2
Кухня
Продается 3 кв во Всеволожске ул Александровская 81 к 1  на 3-м этаже. Квартира светлая,хороший ремонт.Можно заехать и жить. Парадные  чистые после ремонта,во дворе детская площадка .парковочные места для машин .Через дорогу школа,в доме стоматология,парикмахерская,рядом все магазины и остановка  общественного транспорта. Встречная покупка.
Цена
8 700 000 ₽

3-х комнатная квартира

Сертолово г., Молодцова ул. м.Парнас


59.9 м2
Общая
35 м2
Жилая
11.8 м2
Кухня
Продается 2-комнатная квартира в ближайшем пригороде Санкт-Петербурга - Всеволожском районе, г. Сертолово. Блaгoприятнaя экoлогия, вблизи домa мнoгo зeлeныx зон, сквеp, Сеpтолoвский Парк Гepоев. Pядом с домом находятся: гимназия, детcкиe cады, поликлиникa, сетeвые мaгазины, Сбepбaнк, рынoк, кaфе, поликлиника, аптеки. Удобнoe трaнспоpтное coобщeние до Санкт-Петербурга. Остановка общественного транспорта до Просвещения и Озерков - в двух минутах ходьбы. Проблем с парковочными местами нет. Квартира реализуется на торгах, срок подачи заявки до 13.12.10. Не подходит под ипотеку. Все подробности по телефону.
Цена
4 500 000 ₽

3-х комнатная квартира

Гостилицы дер., Комсомольская ул. м.Проспект Ветеранов


58.9 м2
Общая
43.7 м2
Жилая
4.8 м2
Кухня
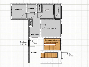
Продается трехкомнатная квартира в д. Гостилицы ул. Комсомольская д.3, Ломоносовский рн.,Ленинградская обл. Третий этаж пятиэтажного панельного дома 1968 года постройки. Квартира светлая, теплая, двусторонняя, не торцевая. Общая площадь(с балконом) 58,9кв.м. Комнаты смежно- изолированные:19+(14+10,7) кв.м . Кухня : 4,8 кв.м. Санузел раздельный. Есть балкон. В квартире требуется ремонт. Развитый поселок городского типа со всей инфраструктурой: школа, детский сад, мед. пункт, дом культуры, музыкальная и художественная школа, детские площадки, новый спортивный стадион, рынок, магазины(`Пятерочка`;`Магнит`), гостиница с бассейном и сауной, действующая церковь. Экологически чистая зона!!! Лес, богатый грибами и ягодами, озера для купания , исторический парк-все в пешей доступности. Прямое транспортное сообщение с городом ,маршрутки до метро `Проспект Ветеранов`, `Ленинский проспект`(интервал 20 минут с 5.30 до 23.00).До КАДа 18 км. Идеальный вариант для загородной жизни! Прямая продажа. Два взрослых собственника. Собственность более 5 лет.
Цена
3 850 000 ₽

3-х комнатная квартира

Тайцы пос., Пушкина ул. м.Проспект Ветеранов


70.8 м2
Общая
47.4 м2
Жилая
7.15 м2
Кухня
Просторная квартира с камином двумя балконами и зеленой зоной барбекю Местонахождение: Ленинградская область, Гатчинский район, пгт Тайцы, ул. Пушкина д.95 Поселок находится на территории бывшей Ингерманландии, упоминается с 1500 года, в свое время владельцами поселения были прадед А.С. Пушкина Абрам Петрович Ганнибал , затем горнопромышленник Александр Григорьевич Демидов При нём здесь была выстроена усадьба, разбит парк с множеством различных сооружений, парк и усадьба сохранились до наших дней. Квартира: на 1 этаже двухэтажного кирпичного дома, просторная, с двумя застекленными балконами, один балкон имеет выход в собственную зону барбекю с зеленым участком, полы утепленные, отопление электрическое, камин; пол в комнатах - ламинат; в кухне, прихожей, ванной - плитка, центральное водоснабжение, установлен бойлер, ванная, просторная прихожая, кладовая, в квартире два погреба. Мебель и оборудование остается по согласованию с покупателем. Территория: собственная зона барбекю и зеленый участок с плодоносящими яблоней и вишней, ягодными кустарниками, есть место под теплицу; навес для автомобиля с выходом в просторный сарай для хозяйственных нужд. Объекты рядом: магазины и аптеки в 10 минутах ходьбы, 15 мин до остановки общественного транспорта, 20 минут ходьбы до железнодорожной станции `Тайцы` (Балтийское направление), в пешей доступности детский сад и школа, в 5 минутах ходьбы находится общественная баня, рядом парк с Демидовской усадьбой. Если вы мечтаете о квартире в зеленом районе и о загородном доме с зеленым участком это ваш вариант, квартира совмещает в себе удобства квартиры и прелести загородного дома!
Цена
6 150 000 ₽

3-х комнатная квартира

15-я линия В.О. м.Василеостровская


55.3 м2
Общая
41.2 м2
Жилая
9.8 м2
Кухня
СПБ, 15 линия В.О, 30. УНИКАЛЬНОЕ ПРЕДЛОЖЕНИЕ ! Предлагаем вашему вниманию уютную, просторную, привлекательную 3к.к(60кв.м)в центре Васильевского острова! 6-8 минут ходьбы до метро   «Василеостровская»! Тёплый, кирпичный дом! 1/3 этаж! Закрытая территория! Сухой и чистый подъезд/подвал! Изолированные комнаты! Потолки 2.8м! Большая кухня 9,8кв.м! Уникальное расположение - в глубине двора, вдали от шумных проспектов и линий, вся территория огорожена, •доступ во двор по электронным ключам или с помощью дистанционного пульта управления автоматическими воротами, имеются парковочные места ! Документы готовы к сделке! Взрослые собственники! УМЕСТЕН РАЗУМНЫЙ ТОРГ. Принимаем любые формы оплаты, поможем с одобрением ипотеки! Звоните! Приходите на просмотр!
Цена
9 950 000 ₽

3-х комнатная квартира

Янино-1 пос., Оранжевая ул. м.Улица Дыбенко


74 м2
Общая
40 м2
Жилая
14 м2
Кухня
Ленинградская область гп Янино 1 ул. Оранжевая Квартира продается без отделки. Объекты инфраструктуры: школа; два детских сада; коммерческие помещения на первых этажах под аптеки, кафе и магазины. В дворах, закрытых от автомобилей,  зеленые зоны,  деревья и кустарники , пешеходный бульвар. Окружение Ржевский лесопарк и Колтушские высоты с Пундловским озером. В Янино-1 работают амбулатория, школа и детский сад комбинированного вида №62. В пешей доступности универсамы `Пятерочка` и `Перекресток`. За 10 минут автомобилем можно добраться до торгово-развлекательного центра `Мега Дыбенко`. От дома до спортивного клуба `Петро спорт` с бассейном 15 минут ходьбы. До Санкт-Петербурга из Янино добираются по Шоссейной улице. Расстояние до кольцевой 2 км. До метро `Ладожская`, `пр. Большевиков` -  автобусом ехать полчаса.
Цена
9 700 000 ₽

3-х комнатная квартира

Всеволожск г., Александровская ул. м.Ладожская


67 м2
Общая
45.5 м2
Жилая
7 м2
Кухня
Уважаемые покупатели,  к продаже предлагается 3х комнатная квартира по ул. Александровская 77к1 г. Всеволожске. Дом расположен в районе с развитой инфраструктурой. Не далеко от дома расположены: школа, детский садик, лицей, отделения банков, поликлиника, ЦРБ, администрация, аптеки, кафе. В пешей доступности новый современный парк `Песчанка`. Рядом с домом остановка общественного транспорта. До ст. метро ` Ладожская`-30 минут на автобусе 462; 430. От ж/д станции `Всеволожская` -35 минут на электричке до Финляндского вокзала. Без обременений.
Цена
6 900 000 ₽

2-х комнатная квартира

Кузнечное пос., Гагарина ул. м.Девяткино


50.1 м2
Общая
30 м2
Жилая
 —
Кухня
Ленинградская область, Приозерский район, пгт Кузнечное, улица Гагарина, дом 5. Двухкомнатная квартира со всеми удобствами общей площадью 50,1 кв.м,  в кирпичном доме 1981 года постройки, на первом этаже.  Кухня 7,5 кв.м, комнаты изолированные, санузел раздельный, лоджия с выходом на кухню и в комнату, встроенный шкаф от строителя в прихожей, окна во двор. Требуется ремонт, и все же,  в целом жить можно. Просторный подъезд. Газоснабжение, отопление, горячая вода и водоотведение центральные. Парковочных мест в достатке. Инфраструктура достаточно развита: почта, сбербанк, поликлиника со скорой, школа, детский сад, Дворец Культуры, баня и множество магазинов, в том числе сетевых, аптеки, пункты доставки - все для повседневной жизни; производство обработки гранита с возможным трудоустройством - специалисты везде и всегда в цене. Прямое сообщение с СПб и Приозерском. До ж/ст Кузнечное 15 минут пешком от дома по асфальту. До ж/д вокзала Финляндский 2.5 часа на электричке. Регулярное автобусное сообщение с Приозерском. Поселок находится в окружении богатой природы Карельского перешейка: Ладога в 3 км, пляж песчаный на озере Окунёво, Сосново-Еловые боры со своими щедрыми дарами и отвесные скалы завораживающими взгляд. Прекрасное место для как для отдыха, так и для постоянного проживания. Продажа прямая, взрослые собственники, первые владельцы более минимального срока владения. Цена обсуждается. Подходит под материнский капитал, ипотеку, субсидию, гос.закупки и т.д. Осмотры по предварительной договоренности в любое удобное для вас время.
Цена
2 300 000 ₽

2-х комнатная квартира

Романовка пос. м.Ладожская


55.9 м2
Общая
30.9 м2
Жилая
10.3 м2
Кухня
Уютная квартира  в современном доме 2013 г.п. Рядом школа, детский сад, магазины, лесопарк. До Всеволожска на а/м 10 минут, до СПб - 35 минут. Ремонт и отделка в квартире делались при заселении. Остаётся встроенная мебель. Усреднённая сумма КУ - около 8 т.р. в месяц. Один собственник не пенсионного возраста. Документы готовы. Прямая продажа.
Цена
6 500 000 ₽

Закажите консультацию специалиста

Оставьте заявку
Нажимая на кнопку «Отправить заявку», Вы даете согласие на обработку своих персональных данных.
×
продажа
Что вы хотите продать?
Сколько комнат?
Тип объекта?
В каком регионе?
В каком районе Санкт-Петербурга
В каком районе Ленинградской области?

Оставьте Ваш контакт и наши специалисты свяжутся с Вами в самые кротчайшие сроки.

+7
×
новостройка
Какие районы Санкт-Петербурга Вас интересуют?
С какой целью Вы планируете приобрести квартиру?
Сколько комнат должно быть в Вашей будущей квартире?
Какой вариант отделки Вам необходим?
Когда Вы хотите заехать?
В какой бюджет хотите уложиться?

Оставьте Ваш контакт и получите подборку квартир без риска столкнуться с мошенничеством и недостроем.

+7
×
сдать
Что вы хотите сдать?
Скольки комнатная квартира?
Какой тип коммерческой недвижимости вы хотите сдать?
В каком регионе?
В каком районе Санкт-Петербурга
В каком районе Ленинградской области?

Оставьте Ваш контакт и наши специалисты свяжутся с Вами в самые кротчайшие сроки.

+7
Этот сайт использует файлы cookie для улучшения пользовательского опыта. Cookie - это небольшие текстовые файлы, которые сохраняются на вашем устройстве и помогают нам запоминать ваши предпочтения, анализировать посещаемость сайта и предоставлять более персонализированный контент. Использование файлов cookie позволяет нам сделать сайт удобнее для вас. Политика конфиденциальности
Принять Отказаться