Продажа квартир и комнат

Комнаты
Например: Массальского, 4
Ванные
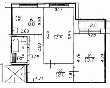
2-х комнатная квартира

Сланцы г., Максима Горького ул.


47 м2
Общая
30 м2
Жилая
6 м2
Кухня
Цена
2 850 000 ₽
Ленинградская область г. Сланцы ул. Максима Горького д. 20а Продается двухкомнатная квартира в городе Сланцы Квартира расположена на четвертом этаже пятиэтажного кирпичного дома. В квартире произведён капитальный ремонт.   Были использованы импортные материалы ремонт делался под себя. Комнаты изолированные Балкон Тихий и зелёный Район Четыре  собственника, материнский капитал был использован при покупке, получаем разрешение органов опеки, без обременений и ограничений. Обращайтесь , в удобное для Вас время покажем квартиру.

2-х комнатная квартира

Ломоносов г., Дворцовый просп. м.Беговая


56.9 м2
Общая
30.3 м2
Жилая
8.09 м2
Кухня
Цена
10 150 000 ₽
С-ПБ., г. Ломоносов, Дворцовый пр., д.32 . Эксклюзивное предложение!!! Двухкомнатная квартира в исторической части Ораниенбаума с видом на собор Архангела Михаила. Квартира расположена на 3 этаже 4-х этажного дома, при этом над квартирой нет жилых помещений. Общая площадь 57 метров, кухня 8 метров, комнаты изолированные 20 и 10 метров. Санузел раздельный. Большой коридор и огромная кладовка типа`тещина комната`. Состояние квартиры хорошее, установлены деревянные стеклопакеты. Дом постройки 1916 года по индивидуальному проекту, перекрытия железобетонные, 1 подъезд. Всего 10 квартир! Ну и `вишенкой на тортике` является очень большой балкон с видом на собор! В квартире никто не прописан. Быстрая, прямая продажа.

2-х комнатная квартира

Шушары пос., Чудовская ул. м.Купчино


56.8 м2
Общая
27 м2
Жилая
14.4 м2
Кухня
Цена
11 070 000 ₽
Продается уютная 2 х комнатная квартира ( 3Е) , где 2 полноценные комнаты + кухня-гостинная,   в современном жилом комплексе ЖК Монография   Квартира находится  на 2 ом этаже, светлая. Дом комфорт-класса.         На этаже 5 квартир.         Закрытый двор. Парные выполнены в современном стиле.         В доме современным подземным паркинг, а это прежде всего, безопасность вашего автомобиля.         Также в доме есть предусмотрен пандус. Это дает возможность очень  легко перемещаться с коляской или велосипедом. Безбарьерная входная группа-  вход в парадную без порожка.         Развитая инфраструктура, школа, детский сад и поликлиника - рядом.         На данный момент до метро Купчино, м.Звездная и м.Шушары можно добраться за 10-13 минут на машине.         Выезд на КАД, рядом, а так же в ближайшее время , рядом  с домом будет остановка трамвая `Купчино - Шушары`, до ст. метро Купчино можно будет добраться за 10 минут на трамвае. Это трамвайная ветка  уже готова к сдаче. Кухня-гостиная 14,4м2. Прихожая 8,5м2. Санузел 2,0 м2. Ванная комната 4,8 м2. Комнаты 14,4м2. +12,6м2. Детские площадки прорезиненные. Инфраструктура развита. В шаговой доступности новая школа, магазины, пункты выдачи маркетплейсов, продуктовые магазины 24 часа. Квартира без отделки, что дает возможность реализовать свои дизайнерские фантазии и  создать  интерьер на свой вкус. В квартире раздельный санузел , окна квартиры выходят во двор и на улицу. Квартира готова к продаже, по договору купли- продажи. Возможна ипотека, в том числе и семейная. При необходимости, возможна помощь  с оформлением ипотеки по максимально выгодной ставке. Звоните, записывайтесь на просмотр. Будем Вам рады!

Затрудняетесь с выбором?

Не тратьте время на поиск и анализ множества предложений недвижимости
Мы сделаем это за вас профессионально, быстро, предложив оптимальные варианты по выгодной цене!

2-х комнатная квартира

Кронштадт г., Петровская ул. м.Беговая


74.5 м2
Общая
39.8 м2
Жилая
11.9 м2
Кухня
Цена
13 500 000 ₽
Кронштадт, ул. Петровская, д. 16/2. Продается отличная квартира в самом центре города Воинской славы Кронштадт. Состоит из двух комнат (26,2+13,6 метров), просторная кухня 12 метров, раздельный сан.узел, ванная комната правильной квадратной формы, что позволяет разместить в ней все необходимое и без ущерба для пространства.Установлен бойлер, это спасает, когда летом отключают горячее водоснабжение для обслуживания. При входе в квартиру большой холл (16 метров), при желании в нем можно устроить Гостинную - холл и с максимальным эффектом использовать его. Не смотря на то, что квартира расположена в центре туристического пространства, Вы не почувствуете этого, поскольку окна и вход в дом расположены из тихого двара, в нем есть место для парковки Вашего автомобиля. Весь шум и беспокойство Вас не затронут, но если Вы хотите сами наслаждаться культурными достопримечательностями и красотами города, Вам достаточно просто выйти из дома. Инфраструктура района очень развитая: несколько ресторанов, магазинов и магазинчиков, общественный транспорт, школа и детский сад на этой же улице. Прямая продажа, в квартире два собственника, документы готовы к выходу на сделку. Конструктивный торг при осмотре квартиры. Звоните, чтобы попасть на просмотр, ждем Вас.

2-х комнатная квартира

Жабино дер., Поселковая ул. м.Проспект Ветеранов


43 м2
Общая
25.5 м2
Жилая
7.6 м2
Кухня
Цена
2 450 000 ₽
деревня Жабино, Ленинградская обл, Гатчинский район. В продаже 2 ком. квартира в маленькой, уютной деревне Жабино, со всеми коммуникациями. Квартира светлая, теплая, ухоженная на 2 этаже кирпичного дома. 1 взр. собственник., без обременений, быстрый выход на сделку. В деревне есть магазины, Озон, Дом культуры, Библиотека, детская площадка , церковь Ксении Петербургской. Православный храм, Расстояние до административного центра поселения, деревни Сяськелево, — 15 км. До ближайшей железнодорожной станции Войсковицы — 18 км. До районного центра Гатчина — 31,8 км. Впервые упоминается в писцовой книге Водской пятины 1500 года как деревня Жабино в Кипенском погосте Копорского уезда. Одним из первых владельцев Жабинской усадьбы стал полководец граф генерал-фельдмаршал Пётр Александрович Румянцев-Задунайский. Позже усадьбой владели его потомки, а также дворянские роды Рагузинских, фон дер Ропп, Пейкеров и Мекленбург-Стрелицких. В 1896 году наследники барона А. И. фон дер Роппа продали имение принцу Георгию Георгиевичу Мекленбург-Стрелицкому. Жабинской усадьбой Мекленбург-Стрелицкие пользовались как одной из летних резиденций. В 1912 году сюда приезжал поохотиться император Николай II.

2-х комнатная квартира

Луга г., Урицкого пр.


42 м2
Общая
13 м2
Жилая
21.6 м2
Кухня
Цена
7 500 000 ₽
Продается отличная  квартира в центре Луги! Представляем вашему вниманию уникальную возможность приобрести стильную квартиру в самом сердце Луги.  Этот дизайн-проект был создан архитектором и дизайнером, который позаботился о каждой детали. Квартира расположена на 4 этаже кирпичного дома, что обеспечивает тишину и спокойствие, а также прекрасный вид . В 2023 году произведен капитальный ремонт дома. Общая площадь составляет 42 квадратных метрa, что позволяет организовать пространство максимально комфортно и функционально. Ремонт выполнен из высококачественных материалов с использованием современных дизайнерских решений.  На полу в комнатах лежит качественный  ламинат 12мм  ,на кухне , в коридоре , ванной итальянский керамогранит, на стенах коридоре и кухне венецианская штукатурка , в комнатах виниловые обои , во всей квартире натяжной потолок со встроенными карнизами с неоновой подсветкой. Санузел полностью оборудован сантехникой AM.PM ( Бренд был основан в 2010 году в Германии и с тех пор получил 81 награду в области современного дизайна! ) Кухня  произведена  на заказ, оснащена всей необходимой техникой - газовой плитой, духовым шкафом, вытяжкой и холодильником. В комнате встроенный шкаф купе , двери из  бронзированного зеркала   ,многофункциональный диван-кровать . Также на кухне - гостиной имеется двуспальная кровать фирмы аскона с подъемным механизмом. Вся мебель и техника в квартире абсолютно новая. Перепланировка узаконена. Замена всех коммуникаций, при ремонте менялось абсолютно все, полностью снималась вся старая штукатурка до кирпича , все перегородки по новой выложены из пазогребня, проложена полностью новая проводка со счетом учета . Один взрослый собственник, подходит под ипотеку .

2-х комнатная квартира

Рощино пос., Садовая ул. м.Удельная


55.3 м2
Общая
30.1 м2
Жилая
10.4 м2
Кухня
Цена
10 500 000 ₽
ЛО, Выборгский р-н, г.п.Рощино. Представляю вашему вниманию просторную двухкомнатную квартиру общей площадью 55,3 кв.м в кирпичном доме 2006 г.п. центре г.п. Рощино. Это идеальное жилье для тех, кто ценит комфорт и удобство. Комнаты раздельные, большая кухня и прихожая с отдельной гардеробной, что создает удобство для размещения мебели и обустройства пространства. Из маленькой комнаты выход на огромный застекленный балкон, который можно использовать как летнюю комнату. Состояние квартиры очень хорошее, сделан качественный ремонт, что означает, что вам не потребуется проводить капитальный ремонт сразу после покупки. В стоимость продажи входит вся  мебель  и техника. Двор зеленый с удобными местами для парковки и детской площадкой. Хорошее ТСЖ, чистые подъезды, доброжелательные соседи. Инфраструктура поселка также радует. На берегу Рощинского озера вы найдете красивую церковь, стадион `Рощино-Арена` и ледовую арену. Пляжи на берегу озера оборудованы, а парковая зона предлагает уютное место для отдыха. Наличие школы, детских садов, сетевых магазинов, поликлиники, дома культуры, сбербанка и т.д. - все это делает проживание в этом районе удобным и комфортным. Поселок имеет прямое сообщение с Санкт-Петербургом, благодаря электричкам, скоростной `Ласточке` и маршрутке № 680 до проспекта Просвещения. Рядом с поселком находится заказник Линдуловская Роща, горнолыжный курорт `Пухтолова гора`, загородные отели `Райвола` и `Царство-королевство`. В окрестностях много мест для активного отдыха на природе: сосновые леса, озера, река. Это отличная возможность провести время на свежем воздухе и насладиться природой. Один взрослый собственник, обременений нет, полная стоимость в договоре продажи. Рассматриваем любую форму оплаты, возможно использование ипотеки, субсидий, сертификатов, материнского капитала. Не упустите свой шанс стать обладателем этого уютного жилья в живописном месте, где современные удобства сочетаются с природной красотой.

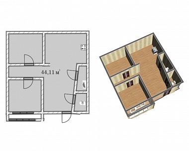
2-х комнатная квартира

Кировск г., Набережная ул. м.Улица Дыбенко


44.1 м2
Общая
28.7 м2
Жилая
6.3 м2
Кухня
Цена
6 000 000 ₽
Ленинградская область, Кировский район, г. Кировск, ул. Набережная, д. 11   Продается 2-комнатная квартира с видом на Неву в центре Кировска! Заезжайте и живите! Дом:  2/5 эт., кирпичный, тихий и ухоженный двор   Площадь: 44,1 м² — всё продумано для комфортной жизни! Почему эта квартира — ваш идеальный дом? ✅ Панорамный вид на Неву из окна просторной комнаты 14,8 м² с выходом на лоджию — встречайте рассветы над водой!   ✅ Светлая и воздушная: окна на две стороны, большая кухня 6,5 м² с газовой плитой и широким окном.   ✅ Удобная планировка:    — Гостиная 14,8 м² + лоджия      — Спальня 13,9 м²      — Раздельный санузел      — Просторная прихожая 6 м² с удобной нишей для хранения   ✅ «Заезжай и живи»: чистый ремонт, уютная атмосфера, всё готово к заселению без вложений! Живите в гармонии с природой и городом ?Прямо напротив дома — живописный парк и набережная Невы для прогулок и отдыха.  В шаговой доступности: поликлиника, администрация района, торговый центр, магазины, кафе.   Транспортная доступность:   удобная транспортная развязка, быстрый выезд в Петербург и другие районы области.  Спокойные соседи — тихий, благополучный дом для спокойной жизни. Юридическая чистота — ваше спокойствие ✔️ Один взрослый собственник   ✔️ В собственности более 5 лет — без налогов при продаже!**   ✔️ Полностью свободна от долгов и обременений   ✔️ Подходит под любые формы оплаты: ипотека, материнский капитал, военная ипотека, наличные. ? Звоните прямо сейчас! Покажем в удобное время, ответим на все вопросы. Квартира ждёт своих хозяев — не упустите шанс жить у воды в самом сердце города! Идеально для семьи, молодой пары или в качеств

2-х комнатная квартира

Ломоносов г., Победы ул. м.Автово


54.3 м2
Общая
31.3 м2
Жилая
8.8 м2
Кухня
Цена
8 199 000 ₽
Ломоносов ул Победы 34, к 1, великолепная квартира с хорошим ремонтом и полной комплектацией по мебели и бытовой технике, Полы - паркет: сосна и дуб, в коридоре и комнатах, на кухне линолеум, окна на юг, в тихий двор, рядом прекрасные зеленые зоны для прогулок: эко тропа, берег Красного пруда, парк Ораниенбаума, остановка автобуса, сетевые гипермаркеты все в 5-10 мин ходьбы. Школы, садики, аптеки, мед центр, все в соседних дворах. Выезд на КАД В 300м. Просмотры в любое, удобное время, квартира освобождена, проведен клининг, готова к заселению новыми собственниками

2-х комнатная квартира

Демьяна Бедного ул. м.Академическая


47.4 м2
Общая
23.5 м2
Жилая
9.1 м2
Кухня
Цена
7 830 000 ₽
Санкт-Петербург,Аукцион 2 ,жилое состояние,инфраструктура в шаговой доступности,хорошая транспортная развязка. Торги 20.03.2026

2-х комнатная квартира

Мурино г., Екатерининская ул. м.Девяткино


49.3 м2
Общая
24 м2
Жилая
16 м2
Кухня
Цена
9 600 000 ₽
ХОРОШИЙ ВАРИАНТ ПО ДОСТУПНОЙ ЦЕНЕ Многоквартирный дом находится в новом, динамично развивающемся районе Ленинградской области, в г. Мурино, входит в ЖК «ID Мурино». Социальная и транспортная инфраструктура соответствует высоким требованиям современного города. В непосредственной близости находятся несколько школ и детских садов. До метро Девяткино, можно добраться транспортом, минут за пятнадцать. Данная квартира, под ипотеку не подходит, продается способом проведения аукциона.

2-х комнатная квартира

Димитрова ул.


49.9 м2
Общая
28 м2
Жилая
7 м2
Кухня
Цена
6 800 000 ₽
Продается 2-х комнатная квартира 49,9 кв.м. на 7 этаже девятиэтажного дома 1972 года постройки, с пассажирским лифтом. В квартире просторный коридор, раздельный санузел, две комнаты, кухня (плита газовая) и балкон. Внутри квартиры стены - перегородки, можно сделать перепланировку в евро двухкомнатную квартиру. Квартира требует ремонта - это значит вы не переплачиваете за `чужую` отделку, можно сразу начать делать современный ремонт для себя. Дом расположен во дворе, в дали от дорог и окружен зеленью. От дома до метро пр-т Славы всего 15 минут ходьбы, несколько остановок общественного транспорта. Развитая инфраструктура района: детские сады №№94, 88, 85, гимназия №205, СОШ №298 и №364, поликлиника №78 и стоматологическая поликлиника №29, кафе, рестораны, магазины в изобилии, а так же парк Интернационалистов, Яблоневый сад и парк между Бухарестской и Софийской улиц. Данный объект реализуется через электронные торги. Процедура торгов регламентируется федеральным законом, что делает сделку безопасной. Мы всегда работаем в интересах покупателя. Наша компания сопровождает сделку до получения вами права собственности. Не упустите свою выгодную покупку! Позвоните и запишитесь к нам на консультацию. Предложение ограничено по времени. Купить можно только за наличный расчет, так как продается через публичные торги.

Закажите консультацию специалиста

Оставьте заявку
Нажимая на кнопку «Отправить заявку», Вы даете согласие на обработку своих персональных данных.
×
продажа
Что вы хотите продать?
Сколько комнат?
Тип объекта?
В каком регионе?
В каком районе Санкт-Петербурга
В каком районе Ленинградской области?

Оставьте Ваш контакт и наши специалисты свяжутся с Вами в самые кротчайшие сроки.

+7
×
новостройка
Какие районы Санкт-Петербурга Вас интересуют?
С какой целью Вы планируете приобрести квартиру?
Сколько комнат должно быть в Вашей будущей квартире?
Какой вариант отделки Вам необходим?
Когда Вы хотите заехать?
В какой бюджет хотите уложиться?

Оставьте Ваш контакт и получите подборку квартир без риска столкнуться с мошенничеством и недостроем.

+7
×
сдать
Что вы хотите сдать?
Скольки комнатная квартира?
Какой тип коммерческой недвижимости вы хотите сдать?
В каком регионе?
В каком районе Санкт-Петербурга
В каком районе Ленинградской области?

Оставьте Ваш контакт и наши специалисты свяжутся с Вами в самые кротчайшие сроки.

+7
Этот сайт использует файлы cookie для улучшения пользовательского опыта. Cookie - это небольшие текстовые файлы, которые сохраняются на вашем устройстве и помогают нам запоминать ваши предпочтения, анализировать посещаемость сайта и предоставлять более персонализированный контент. Использование файлов cookie позволяет нам сделать сайт удобнее для вас. Политика конфиденциальности
Принять Отказаться