Продажа квартир и комнат

Комнаты
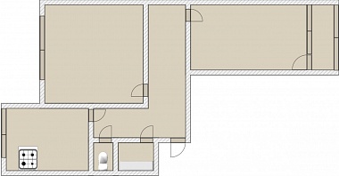
Например: Массальского, 4
Ванные
2-х комнатная квартира

Обводного канала наб. м.Балтийская


65.2 м2
Общая
25.7 м2
Жилая
16 м2
Кухня
Цена
29 095 000 ₽
Продаётся светлая  2 кв( 3E) -квартира общей площадью 65,2м2. с просторной кухней -гостиной. Квартира находится в Адмиралтейском районе Санкт-Петербурга. Квартира в малоэтажном доме бизнес-класса расположена юлизко к центру. 5 минут  пешком до метро Балтийская, 15 минут до метро Фрунзенская,  вечером можно прогуляться до Мариинского театра, а так же вдоль  Фонтанки и Обводного канала. Жилой комплекс находится под круглосуточным видеонаблюдением и имеет собственный зеленый парк во дворе. Предусмотрен подземный паркинг со станциями для зарядки электромобилей . В квартире 2 санузла по 4,2м2+ 4,1 м2 Кухня-гостиная 16,0 м2. Прихожая 3,8 м2. Три балкона, что дает возможность увеличение света в квартире. Постирочная 3,6 м2 Предусмотрено зонирование кухни и гостиной комнаты. Высокие потолки 3м2. Окна в пол. Окна на улицу. Квартира с ПОДЧИСТОВОЙ отделкой White box (предчистовая отделка) - выполнены все черновые работы, что сэкономит ваше время и деньги на ремонт. В жилом комплексе , в  каждой квартире предусмотрены специальные корзины под кондиционеры на фасаде дома. Инфраструктура развита, поблизости расположены школы, детские сады, магазины, кафе, салоны красоты, медицинские учреждения.  В пешей доступности Мариинский театр, Польский сад, набережная реки Фонтанки и Обводного канала. Доступ в парадные осуществляется с помощью распознавания лиц IP-домофоном или ключ-картой. На территории ЖК функционирует лицей с бассейном . Здание было отреставрировано, ранее в нем находилось кавалерийское  училище , в котором учился М.Ю Лермонтов. Недалеко от дома находится Юсуповский дворец, парк Екатерингоф, на машине можно доехать до острова Новая Голландия и Мариинского театра. Современный дом с фасадами из темного клинкерного кирпича, просторными лобби и бесшумными лифтами, вход в парадную по системе распознавания лиц сделает Вашу жизнь намного комфортнее. Квартира готова к продаже, возможна ипотека, в том числе и семейная.   Не упустите свой шанс! Звоните, ждем Вас на просмотр!

2-х комнатная квартира

Обводного канала наб. м.Балтийская


54 м2
Общая
20.9 м2
Жилая
19.1 м2
Кухня
Цена
24 559 000 ₽
Продаётся светлая , уютная  2 кв. ( 3E) -квартира общей площадью 54,0 м2. с просторной кухней -гостиной. Квартира находится в Адмиралтейском районе Санкт-Петербурга. Квартира в малоэтажном доме бизнес-класса в непосредственной близости к центру города. За  5 минут можно дойти пешком до метро Балтийская, 15 минут до метро Фрунзенская,  вечером можно прогуляться до Мариинского театра, а так же вдоль  Фонтанки и Обводного канала. Жилой комплекс находится под круглосуточным видеонаблюдением и имеет собственный зеленый парк во дворе. Для автовладельцев предусмотрен подземный паркинг со станциями для зарядки электромобилей . В квартире 2 санузла по 4,3 м2 . Кухня-гостиная 19,1 м2. Прихожая 3,6 м2. Три балкона, что дает возможность увеличение света в квартире. Предусмотрено зонирование кухни и гостиной комнаты. Высокие потолки 3м2. Окна в пол. Окна на улицу. Квартира с ПОДЧИСТОВОЙ отделкой White box (предчистовая отделка) - выполнены все черновые работы, что сэкономит ваше время и деньги на ремонт. В жилом комплексе , в  каждой квартире предусмотрены специальные корзины под кондиционеры на фасаде дома. Инфраструктура развита, поблизости расположены школы, детские сады, магазины, кафе, салоны красоты, медицинские учреждения.  В пешей доступности Мариинский театр, Польский сад, набережная реки Фонтанки и Обводного канала. Доступ в парадные осуществляется с помощью распознавания лиц IP-домофоном или ключ-картой. На территории ЖК функционирует лицей с бассейном . Здание было отреставрировано, ранее в нем находилось кавалерийское  училище , в котором учился М.Ю Лермонтов. Современный дом с фасадами из темного клинкерного кирпича, просторными лобби и бесшумными лифтами, вход в парадную по системе распознавания лиц сделает Вашу жизнь намного комфортнее. Квартира готова к продаже, возможна ипотека, в том числе и семейная.   Не упустите свой шанс! Звоните, ждем Вас на просмотр!

2-х комнатная квартира

Рощино пос., Садовая ул. м.Беговая


48.6 м2
Общая
32 м2
Жилая
6 м2
Кухня
Цена
4 500 000 ₽
Ипотека ПАО Сбербанк, внесен залог. Предлагается к продаже двухкомнатная квартира в центре п. Рощино Выборгского района Ленинградской области Карельскского перешейка. Квартира тёплая, расположена на две стороны. Общая площадь квартиры 48,6 кв.м. квартира подходит как для постоянного проживания, так и для летнего отдыха. В шаговой доступности все сетевые магазины, места водного отдыха (река Родинка).  Удобная транспортная доступность : электрички, в том числе Ласточка, 40 минут и вы в Питере.

Затрудняетесь с выбором?

Не тратьте время на поиск и анализ множества предложений недвижимости
Мы сделаем это за вас профессионально, быстро, предложив оптимальные варианты по выгодной цене!

2-х комнатная квартира

Луга г., Кирова просп.


40.9 м2
Общая
24 м2
Жилая
8 м2
Кухня
Цена
4 400 000 ₽
Продается двухкомнатная квартира по адресу: Г. Луга, проспект Кирова, дом 23.     Площадь квартиры 41 кв.м. Квартира находится на третьем этаже пятиэтажного дома. Дом кирпичный, перекрытия железобетонные. Год постройки 1966. Санузел совмещенный. В доме есть все необходимые коммуникации, горячие водоснабжение – бойлер. Отличное месторасположение: Во дворе детская спортивная площадка. Рядом находится детский сад и школа. Вся необходимая инфраструктура в шаговой доступности: сетевые магазины, пункты выдачи онлайн заказов, остановки в разные направления, аптеки, детские центры и т.д. В городе Луга очень развитая инфраструктура, но при этом рядом природа, сосновый бор, смешанные леса, река Луга с набережной и песочным пляжем, различные озёра с чистой водой местами для купания и рыбалки. Документ в порядке, быстрый выход на сделку, юридическое сопровождение.

2-х комнатная квартира

Ильюшина ул. м.Комендантский проспект


49.8 м2
Общая
29.4 м2
Жилая
8.1 м2
Кухня
Цена
9 700 000 ₽
Продается 2-комнатная  квартира по отличной цене по адресу ул. Ильюшина 15 к.1  (Приморский район) Квартира универсальная подходит для всего: инвестиций, для одного человека или семьи! - Просторная, светлая, уютная с отличной планировкой и позитивной атмосферой и энергетикой:). Просторный квадратный коридор-холл, хорошая кухня, комнаты правильной формы - все можно легко зонировать как Вам надо! Коридор удобный и вместительный , тут поместятся все ваши вещи. Светлая  кухня на которой Вы с удовольствием будете собираться всей семьёй. О доме Современный кирпичный дом. Благоустроенная придомовая территория, есть современная детская площадка. Рядом находится несколько школ и детских садов - удобно для семей с детьми. Много парковочных мест - у вас всегда будет место для автомобиля. Расположение и инфраструктура. Рядом, в 15 минутах пешком, метро - Комендантский проспект, 20 мин транспортом м. Пионерская. Рядом с домом. множество остановок общественного транспорта. Выезд на КАД в 10 минутах. Это позволит вам быстро и без усилий доехать в любую точку города. Поблизости есть торговый комплекс, строительные и мебельные магазины, различные центры развлечений (кинотеатры, рестораны), гипермаркеты, спортивные и продуктовые магазины. Приходите и покупайте квартиру мечты!!!!

2-х комнатная квартира

Луга г., Кирова просп.


42 м2
Общая
30 м2
Жилая
6 м2
Кухня
Цена
4 400 000 ₽
Продам 2 комнатную квартиру в городе Луга. 2 комнаты,кухня ,СУС,балкон.Остается вся мебель и техника. Рядом вся необходимая инфраструктура:магазины,школа,детский сад.В пешей доступности река,лес,родник,рынок ,вокзал.

2-х комнатная квартира

Шостаковича ул. м.Проспект Просвещения


60 м2
Общая
32.8 м2
Жилая
11 м2
Кухня
Цена
12 799 000 ₽
Продается просторная двухкомнатная  квартира 60 кв.м. на  комфортном третьем   этаже  в Выборгском районе Санкт-Петербурга,  ул. Шостаковича, д.5 корпус 2. Дом 2007 года постройки, расположен в тихом зеленом дворе, где  всегда есть место для парковки автомобиля. Квартира двусторонняя. Комнаты светлые изолированные(16кв.м+17кв.м), кухня прямоугольной формы (11кв.м), с/ у раздельный, большая застекленная лоджия. Чистый подъезд, доброжелательные соседи, контейнеры для мусора находятся  внизу, на первом этаже. Остановка общественного транспорта в трех   минутах ходьбы от дома. В пешей доступности вся инфраструктура (школы, детские сады, парк,  поликлиника  для детей и взрослых, детские площадки, торговые центры  Норд, Гранд-Каньон, Клуб 154, ПВЗ  маркетплейсов,  сетевые магазины , аптеки).  Отличная транспортная доступность. До КАД- 3 минуты  на машине. До метро пр. Просвещения`-6 минут спокойным шагом, `Парнас` 25 минут, Озерки -7 минут на транспорте. Квартира без обременений, без задолженностей, в собственности более 5 лет у одного взрослого собственника.   Полная стоимость в договоре. Прописка СПб. Встречная покупка легкая. Подходит под любую ипотеку, субсидии, материнский капитал. Приглашаем  на просмотр!

2-х комнатная квартира

Русско-Высоцкое пос.


41.7 м2
Общая
27.5 м2
Жилая
6 м2
Кухня
Цена
5 000 000 ₽
(110) Ломоносовский р-н, с/пос Русско-Высоцкое В продаже светлая, уютная 2 ком.квартира, общей площадью 417 кв.м, изолированные комнаты, есть балкон. В квартире недавно сделан качественный, хороший ремонт, заменена электрика, сантехника, выровнены стены, пол, новые двери, установлены натяжные потолки. Квартира продается с мебелью и техникой, сразу можно въехать и жить! Дом расположен в зеленой зоне, рядом школа, отделение МФЦ, Администрация поселка. В пешей доступности магазины, остановка общественного транспорта. До Красного села 12 минут транспортом До Санкт-Петербурга автобус 481 к ст. метро Кировский завод. Прямая продажа, один собственник. Квартира без обременений, подходит под ипотеку.

2-х комнатная квартира

Всеволожск г., Севастопольская ул. м.Ладожская


50.3 м2
Общая
29.9 м2
Жилая
9.2 м2
Кухня
Цена
8 300 000 ₽
Продаётся уютная двухкомнатная квартира площадью 50.3 кв.м., + 1.65 лоджия, на втором этаже нового шестнадцатиэтажного панельного дома, расположенного по адресу: город Всеволожск, Севастопольская улица, дом 1. Квартира обладает продуманной планировкой:жилая площадь составляет 29.9 квадратных метров, кухня – 9.2 квадратных метра. Из окон открывается приятный вид во двор, где также расположена парковка для вашего автомобиля. Вас порадует качественный ремонт, который уже выполнен в квартире, благодаря чему вы сможете сразу же заехать и жить без дополнительных вложений и ремонтных работ. Для молодых семей и людей ведущих активный образ жизни важно отметить близость социальных объектов и мест отдыха: рядом находятся школа, детский сад, торговый центр, парк и фитнес-клуб, что значительно упрощает повседневную жизнь и позволяет экономить время на поездки за необходимыми товарами и услугами. Приобретая эту квартиру, вы выбираете комфортное проживание в новом современном доме в спокойном районе города. Приглашаем вас убедиться в преимуществах данного предложения лично!

2-х комнатная квартира

Сертолово г., Заречная ул. м.Парнас


45.2 м2
Общая
28.7 м2
Жилая
6 м2
Кухня
Цена
3 500 000 ₽
Предлагается двухкомнатная квартира 45,2 кв.метра, теплая, светлая на 3-м комфортном этаже 5-этажного дома с большим балконом. По планировке: две изолированные комнаты (одна с застекленным балконом), все окна квартиры выходят на небольшой зелёный скверик в сторону ул. Заречной; раздельный санузел, потолки 2,6 м.; Удобное месторасположение: -до мeтрo `пр-т Прoсвeщeния` и `Пapнaс` 30 минут на маpшpутке, 15 минут на автoтранспорт. Прямо у дома автобусная остановка. Парковка свободная на территории дома (во дворе и снаружи); благоустроенный двор дома с современной детской площадкой; рядом с домом продуктовый и овощной магазин. Через дорогу ТК `Заречный`, супермаркет `Пятёрочка`, мясной магазин, кафе, стоматология, аптека, пункт выдачи заказов ОZОN. дет.сад, школа и поликлиника в 10 мин. пеш. от дома; хорошая зона для прогулок - `Пушкинская аллея`, `Философия красок`, Сертоловский ручей с пляжем, скейт-площадка. Квартира продается с торгов, аукцион. Продажа только за наличные/безналичные, без ипотеки.

2-х комнатная квартира

Сертолово г., Ветеранов ул. м.Проспект Просвещения


47.9 м2
Общая
28 м2
Жилая
8.9 м2
Кухня
Цена
4 698 000 ₽
Продается двухкомнатная квартира в г. Сертолово, ул. Ветеранов, д. 3а. Квартира двусторонняя, расположена на 5 этаже. Общая площадь 47,9 м2. Комнаты площадью 12+16 м2., кухня 8,9 м2. Балкон застеклен, обшит, сделано место для хранение вещей. В квартире произведена замена окон на качественные деревянные стеклопакеты, произведена замена радиаторов отопления и стояков, выровнены стены. Установлен бойлер. В квартире остаётся мебель и техника. Остановка общественного транспорта находится всего в двух минутах ходьбы. До метро «Проспект Просвещения» 25 минут. Расстояние до кольцевой автодороги (КАД) 5 км. Город Сертолово расположен в окружении лесного массива, что создает благоприятную экологическую обстановку. Здесь есть прогулочные зоны для пеших и велосипедных прогулок, что позволяет наслаждаться свежим воздухом и природой. Ипотека и субсидии не подходят. Просмотры по предварительной договоренности.

2-х комнатная квартира

Наставников просп. м.Ладожская


76.8 м2
Общая
35.4 м2
Жилая
25.8 м2
Кухня
Цена
16 950 000 ₽
Двухкомнатная квартира с просторной кухней-гостиной в Красногвардейском районе! Продается уютная 2-комнатная квартира 76,8 м² в кирпичном доме 2004 года постройки проспект Наставников д. 19— отличный вариант для семьи, ценящей комфорт и удобство. Локация — одна из сильных сторон: тихий, обжитой район с быстрым доступом в центр и удобным выездом на КАД. Планировка и преимущества: * Изолированные комнаты: 22,9 м² и 12,5 м² (вторая идеально подойдет под спальню-кабинет) * Просторная кухня-гостиная 25,8 м² — сердце квартиры, где удобно готовить, ужинать всей семьей и принимать гостей * Застекленный балкон, большой холл  с местом для хранения * Современная встроенная техника: посудомоечная машина, двухдверный широкий холодильник, духовой шкаф, электрическая независимая панель, вытяжка   В квартире выполнен качественный ремонт «для себя»: выровнены стены, потолки в натяжные в некоторых местах разно уровневые, дубовый паркет, стеклопакеты, широкие межкомнатные двери, надежная входная дверь Установлены счетчики на воду и электричество Дом и подъезд: Чистая парадная, 3 лифта с видеонаблюдением,  тамбур на этаже Есть пандус — удобно для детских колясок и людей с ограниченными возможностями Инфраструктура: Во дворе — школа и детский сад В пешей доступности — поликлиники, магазины, торговые центры, кафе, фитнес-клубы, салоны, кинотеатр и другие развлечения Отличная транспортная доступность: рядом остановки общественного транспорта, быстрый выезд на КАД Юридическая чистота: Один взрослый собственник Владение с 2006 года Прямая продажа, документы готовы Идеальное решение для комфортной семейной жизни!

Закажите консультацию специалиста

Оставьте заявку
Нажимая на кнопку «Отправить заявку», Вы даете согласие на обработку своих персональных данных.
×
продажа
Что вы хотите продать?
Сколько комнат?
Тип объекта?
В каком регионе?
В каком районе Санкт-Петербурга
В каком районе Ленинградской области?

Оставьте Ваш контакт и наши специалисты свяжутся с Вами в самые кротчайшие сроки.

+7
×
новостройка
Какие районы Санкт-Петербурга Вас интересуют?
С какой целью Вы планируете приобрести квартиру?
Сколько комнат должно быть в Вашей будущей квартире?
Какой вариант отделки Вам необходим?
Когда Вы хотите заехать?
В какой бюджет хотите уложиться?

Оставьте Ваш контакт и получите подборку квартир без риска столкнуться с мошенничеством и недостроем.

+7
×
сдать
Что вы хотите сдать?
Скольки комнатная квартира?
Какой тип коммерческой недвижимости вы хотите сдать?
В каком регионе?
В каком районе Санкт-Петербурга
В каком районе Ленинградской области?

Оставьте Ваш контакт и наши специалисты свяжутся с Вами в самые кротчайшие сроки.

+7
Этот сайт использует файлы cookie для улучшения пользовательского опыта. Cookie - это небольшие текстовые файлы, которые сохраняются на вашем устройстве и помогают нам запоминать ваши предпочтения, анализировать посещаемость сайта и предоставлять более персонализированный контент. Использование файлов cookie позволяет нам сделать сайт удобнее для вас. Политика конфиденциальности
Принять Отказаться