Продажа квартир и комнат

Комнаты
Например: Массальского, 4
Ванные
2-х комнатная квартира

Бугры пос., Тихая ул. м.Девяткино


51.18 м2
Общая
20.53 м2
Жилая
14.85 м2
Кухня
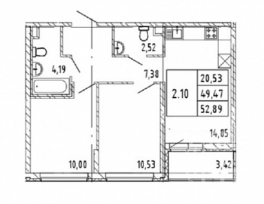
ЛО, Всеволожский р-н, Бугры пос., Тихая ул., д.5 к.3 Продам просторную 2- комнатную квартиру с кухней- гостинной на 8 этаже в ЖК Новые Горизонты. Кухня- 14,85 м2. Комнаты- 10,00 м2 и 10,53 м2. Коридор- 7,38 м2. Ванна- 4,19 м2. Туалет- 2,52 м2. Дом выполнен в лаконичном стиле, фасад украшен витражным остеклением. ЖК включает в себя 3 детских сада и школу на 1375 мест и коммерческие помещения на первых этажах. Придомовая территория благоустроена пешеходными тротуарами, зелеными зонами и местами для отдыха. Закрытый двор, где установлены детские и спортивные площадки и уличные тренажеры. На территории ЖК работает служба консьержей и охраны. ЖК расположен во Всеволожском районе. В пешей доступности работают продуктовые магазины, отделения почты и банков. В пяти минутах транспортом находится «МЕГА Парнас», а также «OBI»,«IKEA» и «Ашан», в 15 минутах – курорт «Охта-парк». В радиусе пяти километров расположены метро «Парнас», «Проспект Просвещения», «Гражданский проспект» и «Девяткино». Выезд на КАД – в пяти минутах транспортом. Ждем Вас на просмотр!
Цена
7 050 000 ₽

2-х комнатная квартира

Полюстровский просп. м.Лесная


61 м2
Общая
29.33 м2
Жилая
11.89 м2
Кухня
Санкт-Петербург, Калининский р-н, метро Лесная, Полюстровский просп., 75. Санкт-Петербург, Калининский р-н, метро Лесная, Полюстровский просп., 75   Продается отличная 2к квартира в ЖК  БелАрт Новый современный комплекс, расположенный на границе Выборгского и Калининского районов Санкт-Петербурга. Это не просто дом. Это произведения искусства, это новый уровень, который вы заслужили. Здесь стоит жить, чтобы почувствовать себя на высоте. Здесь стоит создавать свою историю. каждый нюанс идеально продуманы для того, чтобы радовать своих жителей. Выверенная геометрия фасадов, естественная светлая природная цветовая гамма, уникальная концепция формирования жилого пространства для людей с разным стилем жизни, позволяющая создать комфортную приватную среду, планирование общественных пространств, квартир и придомовых территорий  здесь все на высоте. Делайте свой выбор! Звоните и получите всю необходимую информацию!
Цена
20 200 000 ₽

2-х комнатная квартира

Парфёновская ул. м.Балтийская


56.1 м2
Общая
26 м2
Жилая
16.9 м2
Кухня
Санкт-Петербург, Адмиралтейский р-н, метро Балтийская, Парфёновская ул., 9 к.2 Продается просторная 2- комнатная квартира в ЖК «Галактика» где  отделка выполнена из навесных фасадов с применением керамогранита светлых тонов с яркими цветовыми акцентами. Для безопасности жильцов в квартале предусмотрена круглосуточная система видеонаблюдения, а также система контроля доступа в парадные. Квартал включает в себя 3 школы, в двух из них будет бассейн, 10 детских садов, поликлинику, спортивный комплекс и 2 бизнес-центра. Во дворе установлены детские и спортивные площадки. ЖК «Галактика» расположен на территории сразу двух районов СПб — Московского и Адмиралтейского. В соседних кварталах находятся детские сады, школы, гимназии, лицеи и вузы, работают торговые центры, магазины, спортивные центры, кафе и рестораны. В районе комплекса развита сеть наземного общественного транспорта, в пешей доступности расположены 3 станции метро: «Фрунзенская», «Балтийская» и «Московские ворота». Ждем Вас на просмотр!
Цена
21 000 000 ₽

Затрудняетесь с выбором?

Не тратьте время на поиск и анализ множества предложений недвижимости
Мы сделаем это за вас профессионально, быстро, предложив оптимальные варианты по выгодной цене!

2-х комнатная квартира

Петровский просп. м.Крестовский остров


96.9 м2
Общая
39.84 м2
Жилая
28.1 м2
Кухня
Санкт-Петербург, Петроградский р-н, метро Крестовский остров, Петровский просп., 22 к.2 Продаётся просторная 2- комнатная квартира в ЖК ; Familia Двор в жилом комплексе закрыт от посторонних и машин. За порядком и безопасностью следит круглосуточная охрана и камеры видеонаблюдения, здесь Вы и Ваша семья будете чувствовать комфорт и безопасность! На территории комплекса есть спортивные и детские площадки, ландшафтное озеленение и собственная зона променада. В первом корпусе расположен детский сад на 100 мест., а на первых этажах вдоль Петровского проспекта есть коммерческие помещения для магазинов, ресторанов, кафе. Всего в 700 метрах от жилого комплекса расположен Петровский парк, идеально подходящий для прогулок и отдыха. Жилой комплекс находится в районе с развитой транспортной инфраструктурой: неподалеку есть удобные выезды на Большой Петровский мост и мост Бетанкура, которые позволяют автовладельцам быстро попасть в центральные районы Санкт-Петербурга. В радиусе 2 километров расположены ближайшие станции метро: `Спортивная`, `Крестовский остров` и `Чкаловская`. Меньше минуты нужно идти до остановки общественного транспорта на Петровском проспекте. Ждем Вас на просмотр!
Цена
57 000 000 ₽

2-х комнатная квартира

Суздальское шос. м.Проспект Просвещения


76.87 м2
Общая
35.53 м2
Жилая
19.7 м2
Кухня
Санкт-Петербург, Выборгский р-н, метро Проспект Просвещения, Суздальское шос., 18 к.3 Продаётся просторная двухкомнатная квартира  в сданном ЖК Окла, общей площадью 77,9 кв.м., на 6 этаже.   Очень удобная планировка квартиры, которая позволяет собраться всей семьей в уютной кухне-гостиной площадью 19,7 кв м. Эффективная планировка позволяет использовать каждый метр по назначению. Четкое разделение, большая площадь кухни-гостиной, две уютные спальни 19,8 со своей гардеробной 3,9 кв.м. и с выходом на балкон 3,3 кв.м., который будет служить Вам отличным местом для релаксации и уединения и вторая не менее уютная спальня 15,73 кв.м. Раздельный санузел и комфортная прихожая 8,3 кв.м, с отдельным помещением 3,4 кв. м. для хранения вещей.    Жилой комплекс находится в Приморском районе Санкт-Петербурга, в самом сердце зеленого массива на 140 гектаров. Рядом с комплексом расположены Суздальские озера и Шуваловский парк, а в 10 минутах езды Юнтоловский заповедник. Здания проекта органично вписаны в холмистый ландшафт с вековыми елями, где водятся зайцы, ежи, бобры и птицы. Дома окружены лесным массивом, а внутри квартала находятся широкие европейские пешеходные улицы и променады, торговые зоны, кафе, спортивные клубы, площадки для спорта и детских игр. Делайте свой выбор! До скорых встреч на просмотре!
Цена
18 100 000 ₽

2-х комнатная квартира

Петровский просп. м.Крестовский остров


64.3 м2
Общая
28.3 м2
Жилая
23.9 м2
Кухня
Санкт-Петербург, Петроградский р-н, метро Крестовский остров, Петровский просп., 9 к.2 Продам  просторную 2- комнатную квартиру с кухней- гостинной в ЖК Neva Haus. Кухня- 23,9 м2. Комнаты- 15,4 м2+12,9 м2. Коридор- 6,0 м2. Ванна- 3,4 м2. Туалет- 2,7 м2. В облицовке фасада используется клинкерный кирпич натуральных оттенков, обладающий высокой гигроскопичностью и устойчивостью к погодным условиям. Дизайн входной группы и мест общего пользования выполнен по авторскому проекту. На территории комплекса спроектированы школа, детские площадки и места для отдыха, проводятся работы по озеленению. Территория находится под круглосуточным видеонаблюдением, а входы в дом оснащены IP домофонами для контроля доступа. Для автовладельцев предусмотрен подземный, отапливаемый паркинг на 907 мест. К паркингу можно спустится на лифте. Жилой комплекс расположен на Петровском острове в районе с развитой инфраструктурой: здесь работают детские сады, школы магазины, спортивные центры, конный клуб и стадион «Петровский». Собственная благоустроенная набережная — в 5 минутах пешком. Экологическая ситуация благоприятна: в районе ЖК отсутствует транспортная загруженность дорог, а в пешей доступности находится Большой Петровский парк с прудом и зонами отдыха. Ждем Вас на просмотр!
Цена
36 700 000 ₽

2-х комнатная квартира

Петровский просп. м.Крестовский остров


78.7 м2
Общая
37.1 м2
Жилая
22.6 м2
Кухня
Санкт-Петербург, Петроградский р-н, метро Крестовский остров, Петровский просп., 9 к.2. Продается просторная 2- комнатная квартира в ЖК Neva Haus. В облицовке фасадов используется клинкерный кирпич натуральных оттенков, обладающий высокой гигроскопичностью и устойчивостью к погодным условиям. Дизайн парадной и мест общего пользования выполнен по авторскому проекту. Высота потолков от 3 метров. На территории комплекса школа, детские площадки и места для отдыха. Территория находится под круглосуточным видеонаблюдением, а входы в дом оснащены IP домофонами для контроля доступа. Для автовладельцев предусмотрен подземный, отапливаемый паркинг на 907 мест. К паркингу можно спустится на лифте. Жилой комплекс расположен на Петровском острове в районе с развитой инфраструктурой: здесь работают детские сады, школы магазины, спортивные центры, конный клуб и стадион «Петровский». Собственная благоустроенная набережная — в 5 минутах пешком. Экологическая ситуация благоприятна: в районе ЖК отсутствует транспортная загруженность дорог, а в пешей доступности находится Большой Петровский парк с прудом и зонами отдыха. Ждем Вас на просмотр!
Цена
41 000 000 ₽

2-х комнатная квартира

Суздальское шос. м.Озерки


84.9 м2
Общая
39.49 м2
Жилая
20.91 м2
Кухня
Санкт-Петербург, Приморский р-н, метро Озерки, Суздальское шос., 18 к.3 Продается отличная 2к в ЖК Окла Жилой комплекс находится в Приморском районе Санкт-Петербурга, в самом сердце зеленого массива на 140 гектаров. Рядом с комплексом расположены Суздальские озера и Шуваловский парк, а в 10 минутах езды Юнтоловский заповедник. Здания проекта органично вписаны в холмистый ландшафт с вековыми елями, где водятся зайцы, ежи, бобры и птицы. Дома окружены лесным массивом, а внутри квартала находятся широкие европейские пешеходные улицы и променады, торговые зоны, кафе, спортивные клубы, площадки для спорта и детских игр.
Цена
18 100 000 ₽

2-х комнатная квартира

Полюстровский просп. м.Лесная


83.74 м2
Общая
29.17 м2
Жилая
21.07 м2
Кухня
Санкт-Петербург, Калининский р-н, метро Лесная, Полюстровский просп., 75 Продается отличная 2к в ЖК Беларт Новый современный комплекс, расположенный на границе Выборгского и Калининского районов Санкт-Петербурга. Это не просто дома. Это произведения искусства, это новый уровень, который вы заслужили. Здесь стоит жить, чтобы почувствовать себя на высоте. Здесь стоит создавать свою историю. каждый нюанс идеально продуманы для того, чтобы радовать своих жителей. Выверенная геометрия фасадов, естественная светлая природная цветовая гамма, уникальная концепция формирования жилого пространства для людей с разным стилем жизни, позволяющая создать комфортную приватную среду, планирование общественных пространств, квартир и придомовых территорий  здесь все на высоте. Ждем Вас на просмотр!
Цена
22 500 000 ₽

2-х комнатная квартира

Бугры пос., Тихая ул. м.Гражданский проспект


49.97 м2
Общая
20.53 м2
Жилая
14.85 м2
Кухня
Ленинградская область, Всеволожский р-н, метро Гражданский проспект, Бугры пос., Тихая ул., 3 к.1 Продам 2- комнатную квартиру с большой кухней- гостинной на 5 этаже в ЖК Новые Горизонты. Кухня- 14,85 м2. Комнаты- 10,53 м2 и 10,00 м2. Коридор- 7,38 м2. Ванна- 4,19 м2. Туалет- 2,52 м2. Дом выполнен в лаконичном стиле, фасад украшен витражным остеклением. ЖК включает в себя 3 детских сада и школу на 1375 мест и коммерческие помещения на первых этажах. Придомовая территория благоустроена пешеходными тротуарами, зелеными зонами и местами для отдыха. Закрытый двор, где установлены детские и спортивные площадки и уличные тренажеры. На территории ЖК работает служба консьержей и охраны. ЖК расположен во Всеволожском районе. В пешей доступности работают продуктовые магазины, отделения почты и банков. В пяти минутах транспортом находится «МЕГА Парнас», а также «OBI»,«IKEA» и «Ашан», в 15 минутах – курорт «Охта-парк». В радиусе пяти километров расположены метро «Парнас», «Проспект Просвещения», «Гражданский проспект» и «Девяткино». Выезд на КАД – в пяти минутах транспортом. Ждем Вас на просмотр!
Цена
7 000 000 ₽

2-х комнатная квартира

Измайловский бул. м.Балтийская


58.9 м2
Общая
29.4 м2
Жилая
15.6 м2
Кухня
Продается 2- комнатная квартира с большой кухней- гостинной в ЖК  «Галактика» расположенном рядом с наб. Обводного канала и Московским проспектом. Кухня-15,6 м2. Комнаты- 15,1 м2 и 14,3 м2. Коридор- 8,0 м2. Ванна- 3,0 м2. Туалет-1,8 м2. Дом класса «комфорт» находится сразу в двух районах: Адмиралтейском и Московском. И жить, и отдыхать в «Галактике» удобно и приятно. Рядом находятся торгово-развлекательный комплекс «Варшавский экспресс» с кинотеатром, концертной площадкой и спортивной зоной. Продовольственные и промтоварные магазины, рестораны и кафе, скверы и музеи — до всего будет подать рукой. Для обучения детей в районе открыты детские садики, школы, развивающие центры. На первых этажах в жилом квартале- помещения под магазины, салоны красоты, ремонтные мастерские и отделения банков. Есть школы, детские сады, кабинеты врачей общей практики. Ждем Вас на просмотр!
Цена
19 900 000 ₽

2-х комнатная квартира

Чарушинская ул. м.Девяткино


51.3 м2
Общая
24.4 м2
Жилая
15.1 м2
Кухня
СПб, Красногвардейский р-н, Чарушинская ул., д.26 к.1 Продается просторная 2 - комнатная квартира в ЖК  Цветной город который располагается на территории, ограниченной Пискаревским проспектом, Муринским ручьем, береговой линией реки Охты и перспективной пробивкой Северного проспекта. Есть вся необходимая инфраструктура от образовательных учреждений и тоговых комплексов до центров спортивно-досуговой деятельности. Формирование самодостаточной жилой среды, комфортной для современного человека, позволяет считать комплекс настоящим городом в городе. Благодаря близкому и удобному выезду на КАД, обеспечен быстрый путь в другие районы или загород. Перспективное продолжение Северного проспекта позволит без труда добраться до основных транспортных магистралей правобережной части Петербурга. Ждем Вас на просмотр!
Цена
7 600 000 ₽

Закажите консультацию специалиста

Оставьте заявку
Нажимая на кнопку «Отправить заявку», Вы даете согласие на обработку своих персональных данных.
×
продажа
Что вы хотите продать?
Сколько комнат?
Тип объекта?
В каком регионе?
В каком районе Санкт-Петербурга
В каком районе Ленинградской области?

Оставьте Ваш контакт и наши специалисты свяжутся с Вами в самые кротчайшие сроки.

+7
×
новостройка
Какие районы Санкт-Петербурга Вас интересуют?
С какой целью Вы планируете приобрести квартиру?
Сколько комнат должно быть в Вашей будущей квартире?
Какой вариант отделки Вам необходим?
Когда Вы хотите заехать?
В какой бюджет хотите уложиться?

Оставьте Ваш контакт и получите подборку квартир без риска столкнуться с мошенничеством и недостроем.

+7
×
сдать
Что вы хотите сдать?
Скольки комнатная квартира?
Какой тип коммерческой недвижимости вы хотите сдать?
В каком регионе?
В каком районе Санкт-Петербурга
В каком районе Ленинградской области?

Оставьте Ваш контакт и наши специалисты свяжутся с Вами в самые кротчайшие сроки.

+7
Этот сайт использует файлы cookie для улучшения пользовательского опыта. Cookie - это небольшие текстовые файлы, которые сохраняются на вашем устройстве и помогают нам запоминать ваши предпочтения, анализировать посещаемость сайта и предоставлять более персонализированный контент. Использование файлов cookie позволяет нам сделать сайт удобнее для вас. Политика конфиденциальности
Принять Отказаться