Продажа квартир и комнат

Комнаты
Например: Массальского, 4
Ванные
2-х комнатная квартира

Воскресенская наб. м.Площадь Ленина


122.8 м2
Общая
40.7 м2
Жилая
51.5 м2
Кухня
СПб, Центральный р-н, Воскресенская наб., д.32 Продам  большую 2- комнатную квартиру с кухней- гостиной в ЖК Приоритет. Кухня- 51,5 м2 Комнаты- 40,7 м2 Коридор- 15,3 м2 Ванна- 9,5 м2 Туалет- 4,0 м2 Клубный дом представляет собой современный проект в сердце Северной столицы. Фасад здания выдержан в традициях петербургской архитектуры начала XX века с характерными для того времени элементами модерна и неоклассицизма. Проект разработан Евгением Подгорновым, членом Союза Архитекторов России, основателем мастерской «Intercolumnium». В отделке интерьера клубного дома применяются натуральный мрамор, гранит, дерево и декоративное стекло. Из окон квартиры открывается вид на Неву, разводной Литейный мост, крейсер Аврора и Петропавловский собор. Квартира без отделки, с увеличенными окнами и высотой потолков до 3,31 метров. В доме собственная служба сервиса. К услугам жителей и их гостей роскошное лобби, ресторан, спортивный зал, массажный кабинет и барбершоп. Для владельцев автомобилей предусмотрена двухуровневая подземная парковка с автомобильным лифтом. Клубный дом расположен в историческом центре Санкт-Петербурга на Воскресенской набережной в окружении памятников культуры различных эпох. Рядом с домом — Летний сад и Эрмитаж, Таврический дворец и Михайловский замок, а путь до Невского проспекта составляет всего 10 минут. Ждем Вас на просмотр!
Цена
122 800 000 ₽

2-х комнатная квартира

Авиаконструкторов пр. м.Беговая


64.69 м2
Общая
27.96 м2
Жилая
19.2 м2
Кухня
СПб, Приморский р-н, Авиаконструкторов пр., д.54 Продам  светлую 2- комнатную квартиру с кухней- гостиной  и лоджией в ЖК Modum. Кухня- 19,20 м2 Комнаты- 27,96 м2 Коридор- 10,95 м2 Ванна- 3,31 м2 Туалет- 1,60 м2 Фасад выполнен в стиле постконструктивизма и античной эстетики. В лобби выполнена дизайнерская отделка. Квартира с подчистовой отделкой. В состав комплекса входит детский сад на 120 мест и фитнес клуб со SPA-комплексом и бассейном. Территория свободна от автомобилей. Для автовладельцев предусмотрен подземный паркинг на 943 места. Во дворе спроектированы уникальные ландшафтные решения. Жилой квартал расположен в Приморском районе с развитой инфраструктурой. В пешей доступности есть продуктовые магазины, отделения почты и банков. Напротив дома располагается Юнтоловский лесопарк. Выезд на КАД и ЗСД расположен в 5 минутах транспортом, метро «Комендантский проспект» – в 10 минутах транспортом. Ждем Вас на просмотр!
Цена
18 600 000 ₽

2-х комнатная квартира

Шушары пос., Новгородский просп. м.Купчино


66.6 м2
Общая
29.3 м2
Жилая
19.6 м2
Кухня
СПб, Пушкинский р-н, Шушары пос., Новгородский просп., д.2 к.3 Продам  2- комнатную квартиру с кухней- гостиной и 2 лоджиями в ЖК Simple. Кухня- 19,6 м2 Комнаты- 29,3 м2 Коридор- 7,3 м2 Санузел- 5,9 м2 Фасад выполнен в лаконичной скандинавской цветовой гамме, дополнительным украшением служит панорамное остекление и облицовка керамогранитом нижних этажей. В ночное время используется художественная подсветка фасада. В доме просторная входная группа с витражным остеклением и высокими потолками. Вход предусмотрен с двух сторон и находится на одном уровне с землей. Доступ осуществляется по индивидуальной ключ-карте. Высота потолков 2,6 метров. Благоустройство ЖК предусматривает круглогодичные зеленые растения и деревья. Во дворе расположены свои детский сад и школа. Для спорта и отдыха созданы специальные интерактивные пространства. Во дворе и на территории домов ведется круглосуточное видеонаблюдение. На первых этажах  расположены коммерческие помещения. Для владельцев автомобилей предусмотрена стоянка. В подземной части домов находится 160 индивидуальных кладовых помещений. Жилой комплекс расположен в Пушкинском районе. Рядом находятся детские сады, школы, магазины, медицинские учреждения и многое другое. До станции метро «Купчино» — 15 минут транспортом. Ждем Вас на просмотр!
Цена
14 000 000 ₽

Затрудняетесь с выбором?

Не тратьте время на поиск и анализ множества предложений недвижимости
Мы сделаем это за вас профессионально, быстро, предложив оптимальные варианты по выгодной цене!

2-х комнатная квартира

Челюскина ул.


67.6 м2
Общая
33.5 м2
Жилая
14.2 м2
Кухня
СПб, Василеостровский р-н, Челюскина ул., д.10 Продам  2- комнатную квартиру с кухней- гостиной в ЖК GloraX Premium Василеостровский. Кухня- 14,2 м2 Комнаты- 33,5 м2 Коридор- 11,4 м2 Ванна- 5,0 м2 Туалет- 3,5 м2 Проект представляет собой квартал в сегменте премиум. Над архитектурной концепцией объекта работал голландский консорциум КСАР+Orange Architects совместно с петербургским бюро «А.Лен». Дом выполнен в стиле «хаотизм» и украшены башнями заостренными золотыми верхушками с изогнутой неправильной формой. Квартира с подчистовой отделкой. На территории комплекса выполнены озеленение и ландшафтный дизайн. В вечернее время включается подсветка деревьев. На придомовой территории спроектированы спортивные зоны с современным workout оборудованием, столы для пин-понга, детские площадки Robinia, фонтан на Южной площади и амфитеатр у центральной площади. Только для резидентов ЖК работает небольшой приватный кинотеатр. В первом корпусе расположится двухэтажный фитнес-клуб класса премиум общей площадью более 3000 квадратных метров с эксплуатируемой кровлей. Из панорамных окон фитнес-зала откроются вдохновляющие виды на Финский залив и хвойный парк. На территории проекта находится свой детский сад. Для владельцев автомобилей предусмотрены стоянка и подземный паркинг. ЖК находится в Василеостровском районе. Инфраструктура района развита: рядом находится школа и детский сад, работают поликлиника, спорткомплекс, гипермаркеты Лента и Перекресток, аквапарк Вотервиль. Метро «Приморская» находится в 10 минутах транспортом. Ждем Вас на просмотр!
Цена
21 250 000 ₽

2-х комнатная квартира

Челюскина ул.


66.8 м2
Общая
33.5 м2
Жилая
14.9 м2
Кухня
СПб, Василеостровский р-н, Челюскина ул., д.10 Продам уютную 2- комнатную квартиру с кухней- гостиной в ЖК GloraX Premium Василеостровский. Кухня- 14,9 м2 Комнаты- 33,5 м2 Коридор- 9,6 м2 Ванна- 5,4 м2 Туалет- 3,4 м2 Проект представляет собой квартал в сегменте премиум. Над архитектурной концепцией объекта работал голландский консорциум КСАР+Orange Architects совместно с петербургским бюро «А.Лен». Дом выполнен в стиле «хаотизм» и украшены башнями заостренными золотыми верхушками с изогнутой неправильной формой. Квартира с подчистовой отделкой. На территории комплекса выполнены озеленение и ландшафтный дизайн. В вечернее время включается подсветка деревьев. На придомовой территории спроектированы спортивные зоны с современным workout оборудованием, столы для пин-понга, детские площадки Robinia, фонтан на Южной площади и амфитеатр у центральной площади. Только для резидентов ЖК работает небольшой приватный кинотеатр. В первом корпусе расположится двухэтажный фитнес-клуб класса премиум общей площадью более 3000 квадратных метров с эксплуатируемой кровлей. Из панорамных окон фитнес-зала откроются вдохновляющие виды на Финский залив и хвойный парк. На территории проекта находится свой детский сад. Для владельцев автомобилей предусмотрены стоянка и подземный паркинг. ЖК находится в Василеостровском районе. Инфраструктура района развита: рядом находится школа и детский сад, работают поликлиника, спорткомплекс, гипермаркеты Лента и Перекресток, аквапарк Вотервиль. Метро «Приморская» находится в 10 минутах транспортом. Ждем Вас на просмотр!
Цена
20 800 000 ₽

2-х комнатная квартира

Ковалево пос., 2-я Поперечная ул м.Улица Дыбенко


49.2 м2
Общая
24.5 м2
Жилая
14.4 м2
Кухня
ЛО, Всеволожский р-н, Ковалево пос., 2-я Поперечная ул, д.2 к.1 Продам просторную 2- комнатную квартиру с кухней- гостиной и балконом в ЖК Ржевский парк. Кухня- 14,40 м2 Комнаты- 24,5 м2 Коридор- 5,2 м2 Ванна- 3,0 м2 Туалет- 1,3 м2 На первом этаже предусмотрена колясочная, а у парадной есть велопарковка. Высота потолков 2,55 метра. На территории жилого комплекса спроектированы велодорожки, наземные паркинги и гостевые автопарковки. Во дворе, закрытом от машин, находятся стильные зоны отдыха, современные детские и спортивные площадки. Ландшафт благоустроен по новому стандарту ЛСР: газон, крупномеры и многолетние кустарники. Безопасность в жилом комплексе обеспечивают камеры видеонаблюдения. В доме установлена пожарная сигнализация, датчики дыма и система пожаротушения на каждом этаже, а на территории организована безбарьерная среда. Жилой комплекс расположен во Всеволожском районе. В пешей доступности от комплекса находится железнодорожная станция «Ковалево». Ближайшие крупные торговые центры «Охта Молл» и «Мега Дыбенко» — в 30 минутах транспортом. 20 минут необходимо, чтобы доехать до Ржевского лесопарка, 30 минут — до Колтушских высот с экотропой, 50 минут — до Ладожского озера. Ждем Вас на просмотр!
Цена
8 100 000 ₽

2-х комнатная квартира

Ковалево пос., 2-я Поперечная ул м.Улица Дыбенко


51.7 м2
Общая
21.5 м2
Жилая
18 м2
Кухня
ЛО, Всеволожский р-н, Ковалево пос., 2-я Поперечная ул, д.1 к.1 Продам большую 2- комнатную квартиру с кухней- гостиной и балконом в ЖК Ржевский парк. Кухня- 18,0 м2 Комнаты- 21,5 м2 Коридор- 6,4 м2 Ванна- 3,0 м2 Туалет- 1,9 м2 На первом этаже предусмотрена колясочная, а у парадной есть велопарковка. Высота потолков 2,55 метра. На территории жилого комплекса спроектированы велодорожки, наземные паркинги и гостевые автопарковки. Во дворе, закрытом от машин, находятся стильные зоны отдыха, современные детские и спортивные площадки. Ландшафт благоустроен по новому стандарту ЛСР: газон, крупномеры и многолетние кустарники. Безопасность в жилом комплексе обеспечивают камеры видеонаблюдения. В доме установлена пожарная сигнализация, датчики дыма и система пожаротушения на каждом этаже, а на территории организована безбарьерная среда. Жилой комплекс расположен во Всеволожском районе. В пешей доступности от комплекса находится железнодорожная станция «Ковалево». Ближайшие крупные торговые центры «Охта Молл» и «Мега Дыбенко» — в 30 минутах транспортом. 20 минут необходимо, чтобы доехать до Ржевского лесопарка, 30 минут — до Колтушских высот с экотропой, 50 минут — до Ладожского озера. Ждем Вас на просмотр!
Цена
8 100 000 ₽

2-х комнатная квартира

Руднева ул. м.Проспект Просвещения


63.1 м2
Общая
26.6 м2
Жилая
21.8 м2
Кухня
СПб, Выборгский р-н, Руднева ул., д.15 Продам большую 2- комнатную квартиру с кухней- гостиной и балконом в ЖК Руднева, 15. Кухня- 21,8 м2 Комнаты- 26,6 м2 Коридор- 8,4 м2 Ванна- 4,6 м2 Туалет- 1,7 м2 Безбарьерная среда и просторный холл с оборудованием для маломобильных граждан делают жилой комплекс доступным для всех. В парадных установлены малошумные лифты марки OTIS: один грузопассажирский на 1000 кг и один пассажирский на 450 кг. Рядом с комплексом расположен муниципальный детский сад. Закрытые дворы, видеодомофоны, электронные ключи и современная система безопасности обеспечивают жителям спокойствие и комфорт. Для владельцев автомобилей предусмотрен отдельный мнгоуровневый паркинг. Жилой комплекс расположен в Выборгском районе Санкт-Петербурга, недалеко от трёх станций метро «Проспект Просвещения», «Озерки» и «Гражданский проспект». Дома расположены в благоустроенном микрорайоне с полностью сложившейся инфраструктурой. Ждем Вас на просмотр!
Цена
16 900 000 ₽

2-х комнатная квартира

Парголово пос., Ольгинская (Торфяное) дор. м.Парнас


63.06 м2
Общая
27.9 м2
Жилая
15.3 м2
Кухня
СПб, Выборгский р-н, Парголово пос., Ольгинская (Торфяное) дор., д.3/20 Продам уютную 2- комнатную квартиру с кухней- гостиной и балконом в ЖК Прагма City. Кухня- 15,3 м2 Комнаты- 27,9 м2 Коридор- 11,5 м2 Ванна- 5,1 м2 Туалет- 3,3 м2 В доме выполнена дизайнерская отделка входной группы и установлены современные скоростные лифты. Высота потолков 2,75 метра. На закрытой и охраняемой территории проекта расположены детские и спортивные площадки, обустроены места для отдыха. Для владельцев автомобилей предусмотрена стоянка и подземный паркинг. Жилой комплекс находится в Выборгском районе. До КАД не более 5-ти минут, дорожное сообщение с другими районами города поддерживают Суздальское и Выборгское шоссе. Преимущество расположения дома также в том, что время в пути до одного из самых живописных мест Ленинградской области — Карельского перешейка составит всего около часа. При этом до центра города можно добраться не более, чем за 35 минут. В шаговой доступности — станция метро «Парнас», до которой можно дойти за 10 минут. Всего 3 минут пешком до Шуваловского парка, нужно просто перейти дорогу. Ждем Вас на просмотр!
Цена
15 100 000 ₽

2-х комнатная квартира

Суздальское шос. м.Озерки


66.25 м2
Общая
28.9 м2
Жилая
21.12 м2
Кухня
СПб, Приморский р-н, Суздальское шос., д.8 Продам большую 2- комнатную квартиру с кухней- гостиной и лоджией в ЖК БФА в Озерках. Кухня- 21,12 м2 Комнаты- 28,9 м2 Коридор- 7,29 м2 Ванна- 3,56 м2 Туалет- 3,69 м2 Жилой комплекс представляет собой малоэтажный квартал европейского уровня. Дом построен по долговечной кирпично-монолитной технологии, фасад облицован керамогранитом. В доме сделана дизайнерская отделка входной группы и установлены современные лифты. На территории проекта оборудованы детские и спортивные площадки, имеется собственный многофункциональный стадион и детский сад. Для любителей активного отдыха предусмотрен собственный выход к Суздальским Озерам. Доступ на территорию жилого комплекса для автомобилей осуществляется через КПП, для пешеходов по магнитному ключу, ведется круглосуточное видеонаблюдение. Для владельцев автомобилей предусмотрен подземный паркинг с кладовыми. Жилой комплекс находится в Выборгском районе. Уютный клубный квартал расположен в прекрасных экологических условиях на берегу Нижнего Большого Суздальского озера. Рядом — зеленые массивы Новоорловского природного заказника и исторического Шуваловского парка. Благодаря удобному местоположению квартала вблизи Суздальского и Выборгского шоссе, добраться до КАД и ЗСД можно на автомобиле за 5-10 минут, за 10 минут — до станций метро «Проспект Просвещения» и «Озерки». До центра города (Финляндский вокзал) электропоезд от железнодорожной станции «Шувалово» идет всего 20 минут. До крупных ТРЦ «МЕГА-Парнас», «Гранд Каньон», «Норд» — 10-15 минут на автомобиле. Детские сады и школы находятся в 5-10 минутах на машине или 20-25 минутах пешей прогулки вдоль озера. Ждем Вас на просмотр!
Цена
19 400 000 ₽

2-х комнатная квартира

Реки Каменки наб. м.Комендантский проспект


75.22 м2
Общая
28.23 м2
Жилая
28.27 м2
Кухня
СПб, Приморский р-н, Реки Каменки наб., д.13 к.1 Продам большую 2- комнатную квартиру с кухней- гостиной и балконом в ЖК Friends. Кухня- 28,27 м2 Комнаты- 28,23 м2 Коридор- 8,57 м2 Ванна- 3,05 м2 Туалет- 2,36 м2 На первых этажах ЖК размещены коммерческие помещения с индивидуальными входами. Предусмотрен мини-коворкинг и Wi-Fi во дворе. Для автомобилистов спроектировано два наземных семиуровневых паркинга на 540 мест, для гостей комплекса — открытые стоянки. Во дворе 2 воркаут-площадки, 4 детских площадки, 3 площадки для отдыха взрослых, 2 дорожки для катания на роликах и сеть велодорожек. Предусмотрен собственный выход в Новоорловский заказник. Территория комплекса охраняется. Жилой комплекс находится в Приморском районе Санкт-Петербурга. Рядом с ЖК расположены Суздальские озера и Новоорловский заказник, а в 10 минутах езды — Шуваловский парк. Метро «Проспект Просвещения» находится в 15 минутах езды. Ждем Вас на просмотр!
Цена
17 200 000 ₽

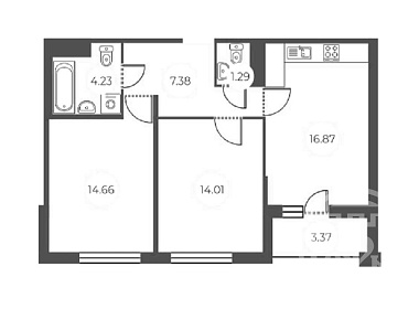
2-х комнатная квартира

Суздальское шос. м.Озерки


60.13 м2
Общая
28.67 м2
Жилая
16.87 м2
Кухня
СПб, Приморский р-н, Суздальское шос., д.8 Продам просторную 2- комнатную квартиру с большой кухней- гостиной в ЖК БФА в Озерках. Кухня- 16,87 м2 Комнаты- 28,67 м2 Коридор- 7,38 м2 Ванна- 4,23 м2 Туалет- 1,29 м2 Жилой комплекс представляет собой малоэтажный квартал европейского уровня. Дом построен по долговечной кирпично-монолитной технологии, фасад облицован керамогранитом. В доме сделана дизайнерская отделка входной группы и установлены современные лифты. На территории проекта оборудованы детские и спортивные площадки, имеется собственный многофункциональный стадион и детский сад. Для любителей активного отдыха предусмотрен собственный выход к Суздальским Озерам. Доступ на территорию жилого комплекса для автомобилей осуществляется через КПП, для пешеходов по магнитному ключу, ведется круглосуточное видеонаблюдение. Для владельцев автомобилей предусмотрен подземный паркинг с кладовыми. Жилой комплекс находится в Выборгском районе. Уютный клубный квартал расположен в прекрасных экологических условиях на берегу Нижнего Большого Суздальского озера. Рядом — зеленые массивы Новоорловского природного заказника и исторического Шуваловского парка. Благодаря удобному местоположению квартала вблизи Суздальского и Выборгского шоссе, добраться до КАД и ЗСД можно на автомобиле за 5-10 минут, за 10 минут — до станций метро «Проспект Просвещения» и «Озерки». До центра города (Финляндский вокзал) электропоезд от железнодорожной станции «Шувалово» идет всего 20 минут. До крупных ТРЦ «МЕГА-Парнас», «Гранд Каньон», «Норд» — 10-15 минут на автомобиле. Детские сады и школы находятся в 5-10 минутах на машине или 20-25 минутах пешей прогулки вдоль озера. Ждем Вас на просмотр!
Цена
16 100 000 ₽

Закажите консультацию специалиста

Оставьте заявку
Нажимая на кнопку «Отправить заявку», Вы даете согласие на обработку своих персональных данных.
×
продажа
Что вы хотите продать?
Сколько комнат?
Тип объекта?
В каком регионе?
В каком районе Санкт-Петербурга
В каком районе Ленинградской области?

Оставьте Ваш контакт и наши специалисты свяжутся с Вами в самые кротчайшие сроки.

+7
×
новостройка
Какие районы Санкт-Петербурга Вас интересуют?
С какой целью Вы планируете приобрести квартиру?
Сколько комнат должно быть в Вашей будущей квартире?
Какой вариант отделки Вам необходим?
Когда Вы хотите заехать?
В какой бюджет хотите уложиться?

Оставьте Ваш контакт и получите подборку квартир без риска столкнуться с мошенничеством и недостроем.

+7
×
сдать
Что вы хотите сдать?
Скольки комнатная квартира?
Какой тип коммерческой недвижимости вы хотите сдать?
В каком регионе?
В каком районе Санкт-Петербурга
В каком районе Ленинградской области?

Оставьте Ваш контакт и наши специалисты свяжутся с Вами в самые кротчайшие сроки.

+7
Этот сайт использует файлы cookie для улучшения пользовательского опыта. Cookie - это небольшие текстовые файлы, которые сохраняются на вашем устройстве и помогают нам запоминать ваши предпочтения, анализировать посещаемость сайта и предоставлять более персонализированный контент. Использование файлов cookie позволяет нам сделать сайт удобнее для вас. Политика конфиденциальности
Принять Отказаться