3-х комнатная квартира

ЛО, Кировский, Кировск г., Набережная ул.   Посмотреть на карте

Номер объекта: 340008
Цена на м2: 145 333

Время работы Call Центра:

ПН-ПТ с 9-30 до 22-00

СБ-ВС с 10-00 до 22-00

Нажимая на кнопку «Позвонить мне», Вы даете согласие на обработку своих персональных данных.

Описание

ЛО г. Кировск ул. Набережная д.19 (м. Дыбенко 35 мин.)

Продается 3-ёх комнатная квартира, расположенная на 5-ом этаже 6-ти этажной секции нового жилого комплекса, в самом центре Кировска.

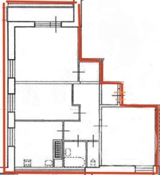
Общая площадь квартиры 75 кв.м., жилая площадь 47,4 кв. м.
Квартира современная с хорошей планировкой!
Просторные изолированные комнаты 18,1+ 17,5+11,5 кв.м позволят вам организовать жилое пространство по своему вкусу. Кухня 10,5 кв.м. Раздельный санузел.
Квартира имеет хорошую естественную освещенность, т.к. окна квартиры выходят на три стороны, что будет способствовать созданию очень комфортного микроклимата. Есть застекленная лоджия площадью 5 кв. м

Ухоженная парадная, грузовой лифт, большая парковочная зона вокруг дома с камерами видеонаблюдения.
В шаговой доступности магазины, детские сады, школы, центральный рынок, салоны красоты, городской парк с набережной, администрация, детские площадки, автостанция, кафе. В пределах 10 мин пешком – детская и взрослая поликлиники, бассейн, Дом культуры, центральный городской пляж, спортивный комплекс.
Звоните! Организуем просмотр!

Расположение

Адрес
Кировск г., Набережная ул., 19
Метро
Улица Дыбенко
Район
Кировский
Город
Кировск
Регион
Ленинградская область

Площади, м2

Жилая площадь
47.4
Общая площадь
75
Площадь ванной
3.1
Площадь кухни
10.5
Площадь прихожей
10.1
Площадь санузла
1.9

Параметры

Входная дверь
металлическая
Горячее водоснабжение
Центральное
Дата постройки
2015
Комнат
3
Лифт
Есть
Плита
Электрическая
Сан. узел
Раздельный
Состояние
Хорошее
Вход
со двора
Дом
Кирпично-монолитный
Этаж
5
Этажность
6
Ипотека
Да

Узнайте больше об объекте

Получите консультацию специалиста

Нажимая на кнопку «Отправить заявку», Вы даете согласие на обработку своих персональных данных.

Объект на карте

Похожие объекты

Затрудняетесь с выбором?

Не тратьте время на поиск и анализ множества предложений недвижимости
Мы сделаем это за вас профессионально, быстро, предложив оптимальные варианты по выгодной цене!

Затрудняетесь с выбором?

Не тратьте время на поиск и анализ множества предложений недвижимости
Мы сделаем это за вас профессионально, быстро, предложив оптимальные варианты по выгодной цене!

Этот сайт использует файлы cookie для улучшения пользовательского опыта. Cookie - это небольшие текстовые файлы, которые сохраняются на вашем устройстве и помогают нам запоминать ваши предпочтения, анализировать посещаемость сайта и предоставлять более персонализированный контент. Использование файлов cookie позволяет нам сделать сайт удобнее для вас. Политика конфиденциальности
Принять Отказаться