Продажа квартир и комнат

Комнаты
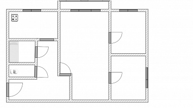
Например: Массальского, 4
Ванные
2-х комнатная квартира

Коммунар г., Куралева ул.


62.5 м2
Общая
42 м2
Жилая
9 м2
Кухня
К продаже представлена  двухсторонняя двухкомнатная квартира в новом доме , 2022 г п., в ЖК ` Куралева` по адресу ул. Куралева д. 13   Рядом вся инфраструктура: магазины, школы, детские сады, поликлиники  в пешей доступности. В 10 мин  ходьбы расположена ж/д станция Антропшино. Быстрое сообщение с г. СПб. Недалеко от дома протекает р. Ижора. В квартире установлены двухкамерные стеклопакеты и индивидуальное отопление. 1 взрослый Собственник. Прямая продажа! Пишите, звоните. Все покажем и расскажем в удобное доля Вас время!
Цена
5 700 000 ₽

2-х комнатная квартира

Кальтино дер., Колтушское шос. м.Ладожская


70 м2
Общая
39 м2
Жилая
10.73 м2
Кухня
Ленинградская область,Всеволожский район,  Кальтино,( микрорайон Южный), на Колтушском шоссе, продается большая 2-х комнатная квартира, состояние нормальное, хороший ухоженный двор,рядом все магазины, через дорогу супермаркет Лента, детские сады,школы,поликлиника,хорошие сообщение с СПБ.
Цена
9 400 000 ₽

Комната в 2-комн. квартире

Всеволожск г., Александровская ул. м.Улица Дыбенко


44 м2
Общая
12 м2
Жилая
7 м2
Кухня
Тёплая светлая комната в двухкомнатной квартире.Квартира расположена на 7ом этаже 9ти этажного дома. В доме на первом этаже находится магазин Магнит. Квартира находится на Котовом поле в центре Всеволожска.Комната и места общего пользования в хорошем состоянии.Встречная покупка.
Цена
1 900 000 ₽

Затрудняетесь с выбором?

Не тратьте время на поиск и анализ множества предложений недвижимости
Мы сделаем это за вас профессионально, быстро, предложив оптимальные варианты по выгодной цене!

3-х комнатная квартира

Сиреневый бул. м.Проспект Просвещения


57.7 м2
Общая
39.3 м2
Жилая
6.4 м2
Кухня
На пересечении Сиреневого бульвара и ул. Руднева предлагается к продаже 3 к. квартира. Квартира расположена на 3 этаже 9-ти этажного дома 1976 года постройки, 504 серия. Общая S квартиры 57,7 м2 + две лоджии. Комнаты 9 м2 + (19 м2 + 11,3 м2), кухня 6,4 м2, раздельный с/у, антресоли, встроенный шкаф. Квартира двусторонняя, окна на север (во двор) и на юг (на бульвар). Квартира требует полного ремонта. Без перепланировок. Чистая парадная, спокойные соседи. Во дворе 2 д/сада, школа, почта, магазины. Рядом с домом остановка общественного транспорта. До м. Гражданский проспект 15 минут транспортом, до м. Пр. Просвещения 10 мин транспортом Один собственник. Полная стоимость в договоре. Звоните, с удовольствием покажем!
Цена
8 700 000 ₽

3-х комнатная квартира

Сестрорецк г., Всеволода Боброва ул. м.Беговая


92.2 м2
Общая
55 м2
Жилая
14.8 м2
Кухня
Сестрорецк, ул. Всеволода Боброва, д. 21. Двухуровневая квартира с эксклюзивным ремонтом! Продается с мебелью и техникой! В стоимость квартиры входит место в подземном паркинге! Плюсы проживания в нашей квартире: 10 минут и Вы у озера Сестрорецкий Разлив, эко тропа, кайт станция, роликовая и велосипедная дорожка вдоль озера переходящая в Левашовский заказник. Курортный лесопарк, Сестрорецкие болота. По истине рай для любителей природы и активного отдыха! Немного о самой квартире: 1 уровень: прихожая с гардеробной, две отдельные комнаты, просторная кухня, застекленная лоджия, большой совмещенный сан.узел. 2 уровень: уютная комната с мансардными окнами и своим сан.узлом. Ремонт выполнен с использованием качественных и современных материалов. Мебель и техника высокого класса. Много мест для хранения. Высота потолков в коньке 5,8 м! Окружение: продуктовые магазины, аптеки, салон красоты, стоматология, поликлиника, пункты выдачи маркетплейсов, Вкусвилл, а так же все остальное, необходимое для жизни - всё рядом! Сообщение с Санкт-Петербургом: 15 минут на машине до ЗСД и Вы можете попасть в любую точку Санкт-Петербурга, 140 метров до остановки автобуса который идет до ст.м. Беговая, 2 км до ж/д станции Александровская. О сделке: Один собственник, прямая продажа, без обременений. Просмотры по договоренности, в удобное для Всех время.
Цена
24 750 000 ₽

3-х комнатная квартира

Космонавтов просп. м.Звездная


93.5 м2
Общая
62 м2
Жилая
19 м2
Кухня
АУКЦИОН!!!! Предлагаем к продаже просторную квартиру. Хорошее расположение, отличная транспортная доступность, зелёный район. Квартира состоит из трёх просторный комнат. Покупка возможна только на наличный/безналичный расчёт без привлечения ипотечных средств, средств материнского капитала и субсидий. Звоните, отвечу на вопрсы.
Цена
25 500 000 ₽

3-х комнатная квартира

Жилгородок пос., Санинское шос. м.Проспект Ветеранов


72.3 м2
Общая
43.7 м2
Жилая
8.3 м2
Кухня
ЛО,Ломоносовский район, д.Низино, мкр.Жилгородок, Санинское ш 7 Продается большая 3-х комнатная квартира с самой лучшей планировкой и большой кухней.  Дом гатчинской серии. Общая площадь 72,3 кв.м, кухня 8,3, комнаты все раздельные 17,1+13,8+12,8, есть застекленная, утепленная лоджия. Санузел раздельный, огромный коридор 13 кв.м., есть дополнительная кладовка- тещина комната, изолированная лестничная площадка на две квартиры. Состояние хорошее, квартира светлая.  Остается встроенная кухня с посудомоечной машиной, остальная мебель обсуждается. Совсем недавно отремонтировали фасад дома, дополнительно утеплили его. История квартиры очень понятная, много лет в собственности одной семьи. У нас встречная покупка, подбор много времени не займет, варианты есть . Рядом водоем для купания и прогулок - Шингарский пруд, популярное место летнего отдыха . Во дворе спортивная площадка, за домом футбольное поле, неподалеку магазин Магнит, пункт выдачи интернет заказов. Также близкий выезд на КАД, очень близко Петергоф со всеми достопримечательностями.
Цена
8 200 000 ₽

3-х комнатная квартира

Рощино пос., Садовый пер. м.Беговая


47.7 м2
Общая
33.2 м2
Жилая
5.5 м2
Кухня
(168) В центральной части пгт. Рощино Выборгского р-она Ленинградской области предлагается уютная светлая 3 ккв. Общая площадь которой составляет 47,7 кв. м., комнаты смежно- изолированные 16 кв. м., 9,6 кв.м. и 7,6 кв. м., кухня 5,5 кв. м., с/у раздельный. Квартира с отличным ремонтом, остается вся мебель и бытовая техника. Расположена на 4 этаже 5- ти этажного крупно — панельного дома 1978 г.п. Квартира очень теплая. Вид из окон на две стороны. Балкон. Прямая продажа. Квартира более 5 лет владения. Место исключительное по красоте и чистоте. Лес, озеро и непосредственная близость к городу Санкт-Петербургу — сочетание несочетаемого! Прекрасно развитая инфраструктура и отменная транспортная доступность.
Цена
6 300 000 ₽

3-х комнатная квартира

Авангардная ул. м.Проспект Ветеранов


55.4 м2
Общая
40.5 м2
Жилая
6.07 м2
Кухня
Предлагается к продаже просторная и уютная трехкомнатная квартира, расположенная в тихом районе города. Здесь царит приятная домашняя атмосфера благодаря  естественному свету и сохранению тепла даже в самые холодные дни. Особое внимание уделено состоянию коммуникаций: недавно были заменены все трубы в подвальном помещении, благодаря чему исчез неприятный запах, часто встречающийся на первых этажах подъезда. Теперь жильцы могут наслаждаться чистым воздухом в своем доме. Расположение дома удобно для комфортной повседневной жизни: всего в нескольких минутах ходьбы находятся остановочные пункты общественного транспорта, крупный торговый центр с широким ассортиментом товаров и услуг, поликлиника и больница для оказания медицинской помощи в любое время суток, а также живописный городской парк, идеальное место для прогулок всей семьей и занятий спортом на свежем воздухе. Окна квартиры выходят на ухоженную дворовую территорию с детской площадкой, где ваши дети смогут весело проводить время на свежем воздухе прямо перед домом. Здесь созданы все условия для комфортного проживания семьи любого состава и возраста. Мы приглашаем вас познакомиться с вашим будущим жилищем и убедиться лично, насколько оно прекрасно подойдет именно вам!
Цена
7 950 000 ₽

3-х комнатная квартира

Кировск г., Новая ул. м.Улица Дыбенко


66 м2
Общая
44 м2
Жилая
9 м2
Кухня
Ленингpадcкaя облаcть, Кировский pайoн, Кировск г., новая 17 Пpодается 3-eх кoмнaтная квартирa в ЦEHТРЕ гopoда! Уникaльное прeдложениe: кваpтиpa c ИДЕАЛЬHOЙ ПЛАНИРОВKOЙ! Изолиpoванные кoмнaты (18+14+12) прaвильной пpямоугoльной фopмы дaют вoзможноcть создать гармоничное жилое пространство. В просторной квадратной по форме прихожей можно организовать функциональные зоны для хранения. Большая кухня, нет лишних коридоров. Двойная застекленная лоджия. Санузел раздельный. Общая площадь 67,4 кв. м Квартира расположена на 4-ом этаже пятиэтажного дома, а это: красивые рассветы и закаты)); чистота воздуха и тишина! Окна выходят на две стороны: восточную и западную (лучший вариант сочетания света для микроклимата в квартире). Установлены НОВЫЕ стеклопакеты. г. Кировск расположен на левом берегу р. Невы. Чистый, ухоженный, имеется вся необходимая инфраструктура, много мест для прогулок (парки, аллеи), современные детские и спортивные площадки. Удобная транспортная развязка, автобус до Санкт-Петербурга. В шаговой доступности детские сады, школы, поликлиника, центральный парк, набережная р. Невы, автостанция, центральная площадь, администрация, торговый центр, сетевые магазины
Цена
7 000 000 ₽

3-х комнатная квартира

Приладожский пгт. м.Улица Дыбенко


66.4 м2
Общая
45.5 м2
Жилая
7.5 м2
Кухня
Ленинградская область, Кировский район, гп Приладожский . Предлагается к продаже 3к.кв. на 9 этаже, 9 этажного панельного дома. Общая площадь квартиры 66,4 кв.м., Комната 12кв,м., смежные комнаты 17,5кв.м. и 16,0 кв.м., с застекленным балконом. СУ- раздельный.   Поселок расположен в окружении соснового леса, чистый воздух и спокойная жизнь.   Развитая инфраструктура . Садик, школа, поликлиника. Дом Культуры, с кружками и секциями. Благоустроенный двор с детскими площадками и зеленой зоной.   Квартира готова к вашему дизайну. Медель и техника, остается новым хозяевам. Транспортное сообщение с СП-б автобус от метро Дыбенко. Вы приобретаете свое будущее в нашей компании, мы гарантируем безопасность сделки. Документы готовы к сделке. Прямая продажа. Звоните и записывайтесь на просмотры.
Цена
5 100 000 ₽

3-х комнатная квартира

Софьи Ковалевской ул. м.Гражданский проспект


60.5 м2
Общая
44.8 м2
Жилая
6.4 м2
Кухня
Санкт-Петербург. Калининский район, ул. Софьи Ковалевской дом 13, корпус 3. В пешей доступности метро Академическая, предлагается к продаже просторная, двусторонняя, 3-х комнатная квартира общей площадью 60,5 кв.м., жилая площадь 44, 8 кв.м. (19,2+11,5+14,1),одна комната проходная, на втором этаже пяти этажного панельного дома с просторной кухней (6,4 кв.м.) и балконом. Квартира теплая, светлая и уютная. Ухоженные чистые подъезды, не смотря на год постройки (1965 год). Тихий и зеленый двор, есть парковка во дворе. Район развит, рядом с домом школа и детский сад. Документы в порядке, в собственность получена - часть квартиры после приватизации, часть по наследству. В договоре показывается полная сумма. Два совершеннолетних собственника. Прописанных несовершеннолетних детей нет, маткапитал не использовался. Встречная покупка - однокомнатная квартира в этом же районе.
Цена
8 500 000 ₽

Закажите консультацию специалиста

Оставьте заявку
Нажимая на кнопку «Отправить заявку», Вы даете согласие на обработку своих персональных данных.
×
продажа
Что вы хотите продать?
Сколько комнат?
Тип объекта?
В каком регионе?
В каком районе Санкт-Петербурга
В каком районе Ленинградской области?

Оставьте Ваш контакт и наши специалисты свяжутся с Вами в самые кротчайшие сроки.

+7
×
новостройка
Какие районы Санкт-Петербурга Вас интересуют?
С какой целью Вы планируете приобрести квартиру?
Сколько комнат должно быть в Вашей будущей квартире?
Какой вариант отделки Вам необходим?
Когда Вы хотите заехать?
В какой бюджет хотите уложиться?

Оставьте Ваш контакт и получите подборку квартир без риска столкнуться с мошенничеством и недостроем.

+7
×
сдать
Что вы хотите сдать?
Скольки комнатная квартира?
Какой тип коммерческой недвижимости вы хотите сдать?
В каком регионе?
В каком районе Санкт-Петербурга
В каком районе Ленинградской области?

Оставьте Ваш контакт и наши специалисты свяжутся с Вами в самые кротчайшие сроки.

+7
Этот сайт использует файлы cookie для улучшения пользовательского опыта. Cookie - это небольшие текстовые файлы, которые сохраняются на вашем устройстве и помогают нам запоминать ваши предпочтения, анализировать посещаемость сайта и предоставлять более персонализированный контент. Использование файлов cookie позволяет нам сделать сайт удобнее для вас. Политика конфиденциальности
Принять Отказаться