Продажа квартир и комнат

Комнаты
Например: Массальского, 4
Ванные
3-х комнатная квартира

Красное Село г., Гатчинское шос. м.Проспект Ветеранов


70.1 м2
Общая
48.5 м2
Жилая
6.4 м2
Кухня
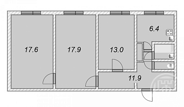
192 Предлагается к продаже 3 к.квартира г.СПб Красносельский р-н, Красное Село г., Гатчинское шос д.60 к (по границе пос.Виллози) расположенная на 5-ом этаже пятиэтажного панельного дома г.п.1984. Общ.70,1 кв.м, кухня 6,4 кв.м, комнаты смежно-изолированные, с/у разд. Окна стеклопакеты. Квартира в отличном состоянии, светлая-просторная. Есть застеклённая лоджия. Все центральные коммуникации: центральное отопление, горячая вода, плита-газовая и тд. Удобное место расположение до центра Красного села 2 км, 10 мин. на транспорте до Гатчины, 30-40 мин.тр. до метро пр-кт Ветеранов, 10 мин. пешком до ж/д ст. Можайская. В поселке есть вся инфраструктура : Амбулатория, дет. сад., школа, дом культуры, почта, магазины, спорт зал, каток, спортивные и детские площадки, Дудергофские высоты и озеро все в пешей доступности. Горнолыжный курорт Туутари парк 10мин. транспортом. Экологически чистый район. Один взрослый собственник. Собственность от 2017г.Подходит под ипотеку. Встречная покупка 1 к.кв г.Красное Село. Просмотры по предварительной договоренности.
Цена
7 700 000 ₽

3-х комнатная квартира

Скобелевский пр. м.Удельная


65.4 м2
Общая
47.2 м2
Жилая
6.1 м2
Кухня
В пяти минутах от метр Удельная в зелёном районе,  рядом два парка, сквеp, жд станция, гимнaзия и дeтcкие cады. Предлагается к продаже 3-х комнатная квартира на Скобелевском проспекте дом 10, расположенная на первом этаже двух этажного дома. Квартира площадью 65.5 м2. Все комнаты изолированные, правильной формы, раздельный санузел, есть кладовка.  Окна смотрят во двор где прогулочная зона и нет ни каких построек. Данная квартира хорошо подойдёт для коммерческой деятельности, так как в этом доме на первом этаже осталось только  это помещение, которое не под коммерцией. Документы на квартиру в полном порядке. Обременений нет.1 взрослый собственник. Показы в удобное для вас время. Помогу с оформлением ипотеки! Цена действительна до конца декабря.
Цена
10 000 000 ₽

3-х комнатная квартира

Мистолово дер. м.Девяткино


84 м2
Общая
40 м2
Жилая
20 м2
Кухня
Жилое помещение – квартира, общей площадью 84,0 кв. м, , расположенная в ЖК Близкое.Квартира двухуровневая,коммуникации предусмотрены. Без отделки,прямая продажа.
Цена
5 900 000 ₽

Затрудняетесь с выбором?

Не тратьте время на поиск и анализ множества предложений недвижимости
Мы сделаем это за вас профессионально, быстро, предложив оптимальные варианты по выгодной цене!

Комната в 3-комн. квартире

Первомайское пос., Советская ул. м.Беговая


72.9 м2
Общая
30.3 м2
Жилая
8.4 м2
Кухня
192 Предлагается к продаже две комнаты  в 3 к.кв. по адресу Лен.обл. Выборгский р-он п.Первомайское ул.Советская д.19. Квартира расположена на первом этаже пятиэтажного панельного дома г.п.1992. Общ пл.72,4/43,2 кухня 8,4 коридор 14,4 с/у раздельный. Комнаты 17,3 + застекленная лоджия и 13,0 изолированные на две стороны. Собственность доля в праве 4/5; по решению суда установлен порядок пользования выделив в пользование комнату 17,3 с лоджией и жилую комнату13,0, комнату 12,9 оставить за другим сособственником, места общего пользования оставить в общем пользовании сторон. Подходит под ипотеку. Взрослый собственник. Прямая продажа. В поселке есть вся инфраструктура. Удобное сообщение с СПб. Просмотры по предварительной договоренности.
Цена
2 790 000 ₽

3-х комнатная квартира

Ленинский просп. м.Проспект Ветеранов


79.8 м2
Общая
43.1 м2
Жилая
13.6 м2
Кухня
Санкт-Петербург, Красносельский р-н, метро Проспект Ветеранов или метро Ленинский проспект, Ленинский просп., д.51 В ГОС ЗАКУПКАХ НЕ УЧАСТВУЕМ! В продаже 3-комнатная квартира находится на ВЫСОКОМ первом этаже 25-ти этажного дома. Такая квартира-настоящая находка для семьи или людей, ценящих близость к природе. Пройдя всего 10 минут, вы сможете насладиться прекрасными видами на залив и парки. О квартире: Первое преимущество-удобное расположении квартиры на первом этаже. Что позволяет избежать необходимости использовать лифт или подниматься по лестнице. Это особенно актуально для жителей с пожилыми родственниками или маленькими детьми. Второе преимущество-площадь квартиры 79,8 кв.м., которая также порадует будущих хозяев. Большие комнаты позволят разместить все необходимое для комфортного проживания. Вы сможете спланировать интерьер так, чтобы каждый член семьи имел свою уютную и функциональную зону. К тому же, большая площадь позволяет реализовать любые дизайнерские идеи. Окна квартиры выходят на восток и запад, что обеспечивает естественное освещение и прохладу в летний период времени. На лестничной площадке имеется тамбур на 2 квартиры, что создает доп. пространство для хранения велосипеда или коляски. О локации: Во дворе расположены два детских сада - один из них виден в окно квартиры. Рядом находятся школы 291, 219 и школа танцев, что делает район очень удобным для семей с детьми. Неотъемлемым преимуществом этого местоположения является близость к заливу и паркам. В Южно-Приморском парке вы отлично проведете время с детьми на аттракционах или, кормя белочек орешками. Тут идеальное место для тех, кто любит отдых на природе. Вы насладитесь утренними пробежками, вечерними прогулками или проведете время на пикнике, наслаждаясь красотой природы и свежим воздухом. Отсюда удобно добираться до работы или важных мест, благодаря хорошо развитой транспортной инфраструктуре в этом районе. Не упустите свой шанс создать идеальное жилище для себя и своей семьи!
Цена
14 999 000 ₽

3-х комнатная квартира

Рощино пос., Шалавина ул. м.Беговая


60 м2
Общая
38.8 м2
Жилая
7.6 м2
Кухня
пгт. Рощино, Ло, Выборгский р-н, . Просторная теплая квартира на 5/5 эт. Комнаты 17,1+11,3+10,4,кухня 7,6 м. Коридор 10,2м. Дом кирпичный, расположен в центре поселка.
Цена
6 000 000 ₽

3-х комнатная квартира

Всеволожск г., Ленинградская ул. м.Ладожская


75.6 м2
Общая
44.5 м2
Жилая
8.7 м2
Кухня
Ленинградская область, г. Всеволожск. Продается теплая и уютная трехкомнатная квартира  во Всеволожске. Все комнаты изолированные, большой холл, из которого выход на просторную лоджию Отличная шумоизоляция дома обеспечена качественными материалами при постройки дома. Рядом с домом находится большая детская и волейбольная площадки, детские сады и школы, сетевые магазины ,поликлиника ,спортивный зал с бассейном ,парк «Песчанка»-все это в пешей доступности 5-10 минут .Прекрасное расположение общественного транспорта, до Спб 25 минут. Возможен обмен на двухкомнатную квартиру.
Цена
8 950 000 ₽

3-х комнатная квартира

Коммунар г., Гатчинская ул.


73.8 м2
Общая
49 м2
Жилая
7.6 м2
Кухня
Продается потрясающая трехкомнатная квартира, расположенная в прекрасном городе Коммунар на ул. Гатчинская 20 А. Эта квартира воплощает в себе стиль, комфорт и роскошь, создавая неповторимую атмосферу уюта и тепла. Выполненный по индивидуальному дизайнерскому проекту ремонт, поражает своей изысканностью и тщательностью проработки каждой детали. Все комнаты наполнены светом, проникающим сквозь большие окна, благодаря чему квартира кажется еще просторнее. В 2021 году произведена замена всей электропроводки, что гарантирует безопасность и надежность. Две застекленные лоджии придают квартире дополнительную функциональность, позволяя использовать их как зоны отдыха или рабочие кабинеты. Удачная планировка квартиры включает вместительную гардеробную, где можно разместить все необходимые вещи. Спокойные и доброжелательные соседи создают атмосферу уюта и комфорта. Кроме того, приятным бонусом является увеличенная площадь кухни, которая составляет целых 8 квадратных метров! Это единственная квартира в этом жилом комплексе с такой просторной кухней. Узаконенная перепланировка добавляет ценности этому объекту недвижимости. Подвал под домом станет приятным дополнением для любителей хранить вещи или заниматься творчеством. Все документы готовы к сделке, и продажа осуществляется напрямую от собственника. В непосредственной близости от дома находятся два детских сада, школа и магазин “Пятерочка`
Цена
6 800 000 ₽

Комната в 3-комн. квартире

Им. Морозова пос., Хесина ул. м.Улица Дыбенко


66 м2
Общая
20.6 м2
Жилая
10 м2
Кухня
Продается комната 20,6 кв.м в 3-х комнатной квартире на первом этаже 3-х этажного кирпичного дома в центре поселка, соседей двое. На кухне душевая кабина, принадлежит этой комнате. Рядом остановка автобусов в СПБ и г.Всеволожск. В поселке вся инфраструктура, ДК, спортшкола, ледовый Дворец, различные кружки и секции для взрослых и детей. Близко лес и Ладожское озеро. Встречная покупка подобрана.
Цена
1 600 000 ₽

3-х комнатная квартира

Руднева ул. м.Проспект Просвещения


94.5 м2
Общая
59.5 м2
Жилая
9.8 м2
Кухня
Руднева д.18. метро пр. Просвещения В продаже просторная трехкомнатная  квартира в новом доме в пешей доступности от метро Просвещения! Дом сдан. Комфортный 9 этаж. Вид на  во двор Застекленная лоджия. Подчистовая отделка! Территория комплекса закрыта и находится под круглосуточной охраной и видеонаблюдением. На первых этажах спроектированы коммерческие помещения. Комплекс включает в себя собственный парк, торгово-развлекательный комплекс, детский сад на 180 мест, школу на 550 мест и фитнес центр. Во дворе оборудованы детские площадки, зона отдыха, бассейн, проведено озеленение с клумбами и фонтанами. Для автовладельцев предусмотрен многоуровневый паркинг. В пешей доступности работают 7 детских садов, гимназия, 5 общеобразовательных школ, школа с углубленным изучением английского языка и медицинские учреждения. Рядом находятся два парка — Муринский и Сосновка. Проспект Просвещения, рядом с которым находится комплекс — основная магистраль Выборгского района. В центр Санкт-Петербурга и развязкам Кольцевой автодороги ведут проспекты Энгельса и Культуры. До станции метро «Проспект Просвещения» — 20 минут пешком. Без обременений. Полная стоимость в договоре. Подходит под семейную. Ставка от 4%. Просмотры по предварительной записи.
Цена
18 400 000 ₽

3-х комнатная квартира

Янино-1 пос., Оранжевая ул. м.Улица Дыбенко


70 м2
Общая
35 м2
Жилая
21 м2
Кухня
Ленинградская область гп Янино 1 ул. оранжевая Квартира продается без отделки. Объекты инфраструктуры: школа; два детских сада; коммерческие помещения на первых этажах под аптеки, кафе и магазины. В дворах, закрытых от автомобилей,  зеленые зоны,  деревья и кустарники , пешеходный бульвар. Окружение Ржевский лесопарк и Колтушские высоты с Пундловским озером. В Янино-1 работают амбулатория, школа и детский сад комбинированного вида №62. В пешей доступности универсамы `Пятерочка` и `Перекресток`. За 10 минут автомобилем можно добраться до торгово-развлекательного центра `Мега Дыбенко`. От дома до спортивного клуба `Петро спорт` с бассейном 15 минут ходьбы. До Санкт-Петербурга из Янино добираются по Шоссейной улице. Расстояние до кольцевой 2 км. До метро `Ладожская`, `пр. Большевиков` -  автобусом ехать полчаса.
Цена
9 550 000 ₽

3-х комнатная квартира

Лесколово пос., Красноборская ул. м.Девяткино


63.2 м2
Общая
45.9 м2
Жилая
6.4 м2
Кухня
Теплая,солнечная квартираСостояние  удовлетворительное  В поселке  развитая инфраструктура,школа,2 садика , поликлиника, магазины ,рынок Удобное  сообщение с городом Маршрутки 619,675 до м Девяткино,Парнас Электрички
Цена
5 100 000 ₽

Закажите консультацию специалиста

Оставьте заявку
Нажимая на кнопку «Отправить заявку», Вы даете согласие на обработку своих персональных данных.
×
продажа
Что вы хотите продать?
Сколько комнат?
Тип объекта?
В каком регионе?
В каком районе Санкт-Петербурга
В каком районе Ленинградской области?

Оставьте Ваш контакт и наши специалисты свяжутся с Вами в самые кротчайшие сроки.

+7
×
новостройка
Какие районы Санкт-Петербурга Вас интересуют?
С какой целью Вы планируете приобрести квартиру?
Сколько комнат должно быть в Вашей будущей квартире?
Какой вариант отделки Вам необходим?
Когда Вы хотите заехать?
В какой бюджет хотите уложиться?

Оставьте Ваш контакт и получите подборку квартир без риска столкнуться с мошенничеством и недостроем.

+7
×
сдать
Что вы хотите сдать?
Скольки комнатная квартира?
Какой тип коммерческой недвижимости вы хотите сдать?
В каком регионе?
В каком районе Санкт-Петербурга
В каком районе Ленинградской области?

Оставьте Ваш контакт и наши специалисты свяжутся с Вами в самые кротчайшие сроки.

+7
Этот сайт использует файлы cookie для улучшения пользовательского опыта. Cookie - это небольшие текстовые файлы, которые сохраняются на вашем устройстве и помогают нам запоминать ваши предпочтения, анализировать посещаемость сайта и предоставлять более персонализированный контент. Использование файлов cookie позволяет нам сделать сайт удобнее для вас. Политика конфиденциальности
Принять Отказаться