Продажа квартир и комнат

Комнаты
Например: Массальского, 4
Ванные
3-х комнатная квартира

Сестрорецк г., Дубковское шос. м.Беговая


101.9 м2
Общая
61.7 м2
Жилая
16.1 м2
Кухня
Сестрорецк, Дубковское шоссе дом 9 В одном из лучших домов Сестрорецка продается просторная 3 ком.квартира 101,9 кв.м. Квартира имеет три изолированных комнаты, два сан.узла, кухню 16 кв.м, утепленные лоджия и балкон. При желании можно сделать 4 отдельных комнаты, т.к. в большой комнате 3 окна. Окна выходят на три стороны, что делает квартиру очень светлой. Высокие потолки 2,85 м. В квартире установлены фильтры на воду, бойлеры. Кирпичный теплый дом 2002 года постройки, чистая парадная, 2 лифта, консьерж, красивый холл  во входной группе с пандусом для колясок и зоной отдыха.  Есть кладовая и отдельные помещения для хранения велосипедов. Видеонаблюдение, закрытая территория, есть парковка и можно отдельно приобрести подземный паркинг. Уникальное расположение дома - знаменитый  парк Дубки в 400 метрах, ж.д станция Сестрорецк в 300 метрах, рядом все магазины, аптеки, пекарня. Во дворе школа и детский сад. В пешей доступности пляжи и прогулочные зоны вдоль Финского залива. Квартира без перепланировок,  без обременений, подходит под ипотеку любого банка, в собственности более 15 лет. Помогаем с одобрением ипотеки. Гарантируем юридическую чистоту сделки.
Цена
25 400 000 ₽

Комната в 3-комн. квартире

Семиозерье пос., Лесная ул. м.Беговая


52.4 м2
Общая
10.8 м2
Жилая
6.4 м2
Кухня
Семиозерье.Отдельная комната в домике.Все удобства.
Цена
640 000 ₽

3-х комнатная квартира

Сясьстрой г., Космонавтов ул.


61 м2
Общая
45 м2
Жилая
5.5 м2
Кухня
Ленинградская область, Волховский  район, г. Сясьстрой, ул. Космонавтов д. 7 Продам 3-х комнатную квартиру площадью 61 м.кв, на 4/5этаже.  Три изолированные  комнаты 17; 17 и 11 м.кв., кухня 5,5 м.кв., санузел раздельный, 2 балкона. Квартира двухсторонняя.Окна стеклопакеты. В шаговой доступности вся городская инфраструктура: сетевые магазины, банки, поликлиника,.школа, д/сад. Подходит для постоянного проживания и загородного отдыха. Благоустроенный песчаный пляж на реке Сясь в сосновом бору. Долгов по оплате нет. Два взрослых  собственника. Прямая продажа.Указываем полную цену. Просмотры по предварительной договоренности.
Цена
3 700 000 ₽

Затрудняетесь с выбором?

Не тратьте время на поиск и анализ множества предложений недвижимости
Мы сделаем это за вас профессионально, быстро, предложив оптимальные варианты по выгодной цене!

Комната в 3-комн. квартире

Героев просп. м.Проспект Ветеранов


92.4 м2
Общая
18 м2
Жилая
12.2 м2
Кухня
Продается отличная комната в трехкомнатной квартире. Ухоженная, чистая, опрятная с хорошим ремонтом не требующая никаких вложений. Натяжной потолок, стеклопакет, новая батарея. Мебель остается в подарок. Адекватные соседи. Во всей квартире идеальный порядок. Есть своя вместительная кладовка с вешалками и шкафчиками, и местом для стиральной машинки. Своя кухонная мебель. Застекленный балкон. В одной из комнат не живут. Во второй снимает семья( русских) с ребенком-школьником. Нотариальные отказы получены от всех собственников. Без обременений. Получена в собственность по договору мены. Вся инфраструктура в шаговой доступности: школы, сетевые магазины, садики, поликлиники, транспорт. рядом Финский залив и парковая зона.
Цена
3 500 000 ₽

3-х комнатная квартира

Сестрорецк г., Токарева ул. м.Беговая


61.4 м2
Общая
34.7 м2
Жилая
8.4 м2
Кухня
СПб, г. Сестрорецк, ул.Токарева, д.15. Продаётся 3-х комнатная квартира, общ.пл.61,4 кв.м с отличной планировкой. Квартира двусторонняя, светлая, очень тёплая. Комнаты изолированные. Просторная прихожая с 3-я встроенными шкафами. Звоните, отвечу на все, интересующие Вас вопросы.
Цена
12 450 000 ₽

Комната в 3-комн. квартире

Октябрьская наб. м.Проспект Большевиков


82.4 м2
Общая
20.4 м2
Жилая
9.6 м2
Кухня
Сталинский дом 1952 года постройки. Второй этаж! Высокие потолки. Видовая комната -  вид на р. Нева. Хорошие и дружные соседи (;три человека) Документы готовы к сделке. Один взрослый собственник. Более 5ти лет владения объектом. Полная стоимость в договоре. Просмотр в любое удобное время. Звоните!
Цена
3 500 000 ₽

3-х комнатная квартира

Радищева ул. м.Чернышевская


62.4 м2
Общая
36.9 м2
Жилая
7.4 м2
Кухня
Просторная,светлая квартира в доме 1880г.п.,год последнего кап.ремонта1981,перекрытия железобетонные.Высота потолков 3,8м окна из комнат выходят на ул.Радищева,окно из кухни во двор.Отлично подойдёт для тех,кто хочет жить в самом центре Санкт-Петербурга.Закрытый двор с возможностью оставить машину,ключи только у собственников.Чистая лестница с ремонтом.В парадной всего 7квартир на каждом этаже одна квартира.3мин., от м.Чернышевская,5мин. от Таврического сада.Школы и дет.садики в пешей доступности.ПП,Торг,квартира требует ремонта
Цена
20 000 000 ₽

3-х комнатная квартира

Победа пос., Мира ул. м.Беговая


72.5 м2
Общая
42.8 м2
Жилая
8.3 м2
Кухня
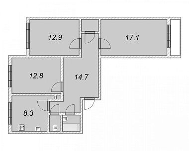
192 Предлагается к продаже большая 3 комнатная квартира Лен.обл. Выборгский р-он п.Победа ул.Мира д.4 на пятом этаже пятиэтажного панельного дома г.п.1991.Общ. 72,5 кв.м. планировка двухсторонняя- изолированная 12,8+12,9+17,1+застекленная лоджия. Кухня 8,3 кв.м, большая прихожая 14,7 кв.м, с/у раздельный ,есть большая кладовка 2,1кв.м и две 0,3+0,4 кв.м. Частично оставляем мебель. Квартира расположена в середине дома ,очень теплая. Требует косметического ремонта. В поселке хорошо развита инфраструктура. Есть школа, детский сад, медицинский кабинет, сетевые магазины` Пятерочка`, ` Магнит`, мини- Лента. До ж/д Каннельярви, 5 минут на автобусе. До СПб ходят электрички повышенной комфортности `Ласточка` - 35 мин. Вокруг лес, озеро. Летом грибы, ягоды. Три взрослых собственника. Подходит под ипотеку. Встречная покупка 2 к.кв. в п.Победа ул.Мира первый или второй этаж. Просмотры по предварительной договоренности.
Цена
5 200 000 ₽

3-х комнатная квартира

Костюшко ул. м.Московская


41.7 м2
Общая
29.9 м2
Жилая
5.3 м2
Кухня
Продается уютная трехкомнатная квартира на первом этаже без балкона в Московском районе Санкт-Петербурга. Квартира находится в шаговой доступности от метро, магазинов, школ и детских садов, а также поликлиники. Квартира требует косметического ремонта, но уже частично отремонтирована. Она находится в отличном состоянии и готова к заселению новых жильцов. Удобное расположение дома позволяет легко добраться до всех необходимых объектов инфраструктуры. Рядом с домом находятся магазины, школы, детские сады, поликлиники, остановки общественного транспорта и станции метро. Если вы ищете уютное и комфортное жилье в хорошем районе, то эта квартира может стать идеальным выбором для вас. Звоните нам и мы поможем вам купить эту квартиру.
Цена
6 800 000 ₽

Комната в 3-комн. квартире

Маршала Жукова пр. м.Проспект Ветеранов


64 м2
Общая
28 м2
Жилая
7 м2
Кухня
г. Санкт-Петербург пр. Маршала Жукова д. 32 к 1 Предлагаем уникальную возможность стать владельцем двух уютных комнат в одной квартире! Идеальный вариант для тех, кто ищет доступное жилье с перспективой расширения. Простор и комфорт: Комната 1: 17.9 кв. м – достаточно места для воплощения ваших дизайнерских идей и создания комфортной зоны отдыха. Комната 2: 10.2 кв. м – отлично подойдет для спальни, детской или рабочего кабинета. Раздельное проживание: Комнаты изолированы друг от друга, что обеспечивает приватность и комфорт для каждого члена семьи. Перспективы роста: В квартире проживают еще одни соседи. В будущем есть возможность выкупа третьей комнаты и превращения вашей недвижимости в полноценную квартиру. Это отличная инвестиция в будущее! Удобное расположение: Квартира расположена в районе с развитой инфраструктурой. В шаговой доступности магазины, школы, детские сады, остановки общественного транспорта. Преимущества: Доступная цена Раздельные комнаты Возможность расширения жилплощади Развитая инфраструктура района Не упустите свой шанс! Звоните прямо сейчас и станьте владельцем двух комнат по цене одной! Прекрасное вложение в будущее для молодой семьи или студентов!
Цена
6 800 000 ₽

3-х комнатная квартира

Гатчина г., Пушкинское шос. м.Проспект Ветеранов


104.1 м2
Общая
46.4 м2
Жилая
15.5 м2
Кухня
Ваша новая уютная ,солнечная, теплая трёхкомнатная квартира, на четвертом этаже одиннадцатиэтажного кирпично-монолитного дома, в Гатчине на Пушкинском шоссе д.1 О квартире: Площадь квартиры составляет:104,1м2 Комната:16,5м2+16,2м2+13,7м2 Кухня:15,5м2 Ванная:4,2м2 Туалет: 3,5м2 Прихожая:34,5м2 Квартира продается с черновой отделкой, так же можем выполнить ремонт квартиры по Вашему дизайн-проекту! В подземном паркинге еще есть свободные места!!! О инфраструктуре: Дом находится в 15 минутах от Орловой рощи. Рядом Дворцовым парком. В пешей доступности от дома детские сады № 11 и 52, школы № 9 и 1, педагогический колледж, поликлиника и медцентр.   Гипермаркеты `Окей` и `Элемент`. В шаговой доступности торговые центры `Кубус` , `Рощинский`, `Гатчинский` и `Мегаполис`. Спортивный комплекс `Атлетик` Транспортную доступность обеспечивают Ленинградское, Красносельское и Пушкинское шоссе. Дорога до КАД занимает 25 минут. До станции метро `Московская` маршрутное такси доставит за час. Можно воспользоваться электричкой. В 2 км от дома находится ж/д платформа Татьянино, откуда до Балтийского вокзала скоростным поездом ехать 30 минут!!! Всего 30 минут и Вы в центре Санкт-Петербурга!!! Прямая продажа. Рассматриваем все виды оплат. Квартира подходит под льготную ипотеку!
Цена
14 484 000 ₽

3-х комнатная квартира

Маршала Жукова пр. м.Проспект Ветеранов


64 м2
Общая
45 м2
Жилая
7 м2
Кухня
г. Санкт-Петербург пр. Маршала Жукова д. 32 к.1 Подходит под ипотеку без первого взноса! Предлагается к продаже 3к.кв. в панельном доме. Комнаты раздельные. Отличные соседи. Д/сад, школа в шаговой доступности, сетевые магазины. Отличная транспортная доступность. Два хозяина. Есть долг по ипотеке 1500000р.
Цена
13 500 000 ₽

Закажите консультацию специалиста

Оставьте заявку
Нажимая на кнопку «Отправить заявку», Вы даете согласие на обработку своих персональных данных.
×
продажа
Что вы хотите продать?
Сколько комнат?
Тип объекта?
В каком регионе?
В каком районе Санкт-Петербурга
В каком районе Ленинградской области?

Оставьте Ваш контакт и наши специалисты свяжутся с Вами в самые кротчайшие сроки.

+7
×
новостройка
Какие районы Санкт-Петербурга Вас интересуют?
С какой целью Вы планируете приобрести квартиру?
Сколько комнат должно быть в Вашей будущей квартире?
Какой вариант отделки Вам необходим?
Когда Вы хотите заехать?
В какой бюджет хотите уложиться?

Оставьте Ваш контакт и получите подборку квартир без риска столкнуться с мошенничеством и недостроем.

+7
×
сдать
Что вы хотите сдать?
Скольки комнатная квартира?
Какой тип коммерческой недвижимости вы хотите сдать?
В каком регионе?
В каком районе Санкт-Петербурга
В каком районе Ленинградской области?

Оставьте Ваш контакт и наши специалисты свяжутся с Вами в самые кротчайшие сроки.

+7
Этот сайт использует файлы cookie для улучшения пользовательского опыта. Cookie - это небольшие текстовые файлы, которые сохраняются на вашем устройстве и помогают нам запоминать ваши предпочтения, анализировать посещаемость сайта и предоставлять более персонализированный контент. Использование файлов cookie позволяет нам сделать сайт удобнее для вас. Политика конфиденциальности
Принять Отказаться