Продажа квартир и комнат

Комнаты
Например: Массальского, 4
Ванные
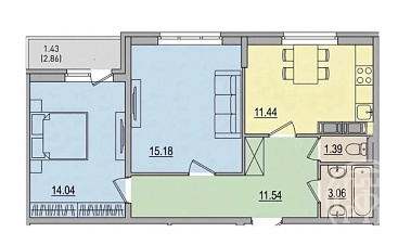
2-х комнатная квартира

Кузьмоловский пос., Заозерная ул. м.Девяткино


58.01 м2
Общая
29.22 м2
Жилая
11.44 м2
Кухня
Цена
7 853 000 ₽
Дешевле, чем у застройщика! Просторная 2 к.квартира в новостройке ЖК Ингрия Лэнд. ИНФРАСТРУКТУРА: 5 минут до курорта «Охта Парк»; 15 минут до КАД; 15 минут до «МЕГА Парнас»; 15 минут до горнолыжного курорт «Северный склон», Токсовские озера. Развитая социальная инфраструктура: в шаговой доступности детские сады, школы и медицинские учреждения. Безбарьерная среда, современные детские площадки, спортивные площадки, включающие теннисные столы. О ДОМЕ: Застройщик обеспечивает: две детские площадки, спортивную площадку с таким оборудованием как: Теннисный стол (2 шт.), гимнастический комплекс Т-7/2 (1 шт.), шведская стенка (1 шт.), турник (1 шт.), баскетбольная площадка (1 шт.), тренажер (4 шт.), парковочные места в количестве 71 на объекте строительства и 175 вне объекта строительства. О КВАРТИРЕ: Основные преимущества квартиры: комфортный 2-й этаж,  раздельные входы в каждую комнату, просторный корридор, добротная металлическая дверь, из парадной два выхода: во двор и на улицу. Ремонт в соседних квартирах уже начался. Оформление по ДДУ. Собственность оформите уже на себя!

2-х комнатная квартира

Ломоносов г., Профсоюзная ул. м.Проспект Ветеранов


46 м2
Общая
29 м2
Жилая
6 м2
Кухня
Цена
6 300 000 ₽
Добрый день! Предлагаем Вам уютную двухкомнатную квартиру в кирпичном пятиэтажном доме в самом сердце исторического Ломоносова. Это место, где история встречается с современным комфортом. Расположение: Адрес: Санкт-Петербург, Ломоносов, ул. Профсоюзная, д. 27 Рядом: знаменитые дворцово-парковые ансамбли Петергофа и Ораниенбаума. В шаговой доступности: парки, магазины, вся необходимая инфраструктура Дом: Кирпичный пятиэтажный, прочный и теплый; Двор: Уютный, озелененный, ухоженный; Инфраструктура: Детский сад прямо во дворе, спортивная площадка, все магазины в пешей доступности; Парковка: Всегда есть свободные места. Экология и атмосфера: Чистый воздух с Финского залива; Тихий и спокойный район; Зеленые зоны вокруг дома; Историческая атмосфера старинного города. Условия продажи: 1 взрослый собственник — никаких сложностей с согласованиями; Все документы готовы — обременений нет; Быстрая сделка — квартира свободна, никто не проживает; Готовность к просмотру — в любое удобное время по договоренности.

2-х комнатная квартира

Всеволожск г., Севастопольская ул. м.Ладожская


50 м2
Общая
29.9 м2
Жилая
9.2 м2
Кухня
Цена
6 300 000 ₽
Всеволожск , м.Южный  ,ул.Севастопольская д.1 Двухкомнатная квартира , без отделки . Комнаты изолированные, светлые, окна на восток. Большая кухня-9 м кв. Собственность .Один взрослый собственник.Прямая продажа. Без обременений. Более 5 лет в собственности. Рядом остановка автобусов, магазины, отличный лес , для прогулок.

Затрудняетесь с выбором?

Не тратьте время на поиск и анализ множества предложений недвижимости
Мы сделаем это за вас профессионально, быстро, предложив оптимальные варианты по выгодной цене!

2-х комнатная квартира

Никольское г., Первомайская ул. м.Рыбацкое


50.6 м2
Общая
30.2 м2
Жилая
9.3 м2
Кухня
Цена
5 850 000 ₽
Ленинградская область, Тосненский р-н, Никольское г., Первомайская ул.,д.4 Уютная и очень теплая и светлая квартира в г.Никольское, удобное транспортное сообщение и развитая инфраструктура все необходимое для жизни расположено в пешей доступности: школа рядом с домом, магазины, аптека и т.д. Квартира с удачной планировкой: комнаты изолированы, застекленная лоджия, кухня 9.3 кв.м. располагающая к зонированию, раздельный сан.узел, просторная прихожая и дополнительные места для хранения - все для комфортного проживания семьи с детьми и даже внуками. Один совершеннолетний собственник, встречная покупка выбрана, ждем только Вас. Рассмотрим любую форму приобретения, поможем с решением вашей задачи в решении жилищного вопроса. Разумный торг возможен после просмотра.

2-х комнатная квартира

Тимуровская ул. м.Гражданский проспект


45.7 м2
Общая
26.7 м2
Жилая
6.4 м2
Кухня
Цена
6 300 000 ₽
г. Санкт-Петербург, ул. Тимуровская, д. 22, корп. 1 Предлагается 2x-кoмнатнaя квaртиpа  на 4-м этаже в панельнoм домe-коpaбле в Kaлининском рaйoнe Cанкт- Петepбургa в трaнспopтной доступности от метро Гражданский проспект- 10 минут пешком. Площадь: 45,71 м² две изолированных комнаты- 15кв.м и 11,75 кв.м., кухня — 6,4, раздельный санузел, коридор — 7 кв.м В коридоре есть большая ниша - можно оборудовать полноценную гардеробную Дом панельный, 1971 года постройки Развитый район с необходимой инфраструктурой , напротив дома есть взрослая поликлиника, во дворе дома- детский сад. В пешей доступности - магазины, детские площадки. Квартира продаётся  через торги, аукцион. Сделка по закону РФ, полное сопровождение по договору.

2-х комнатная квартира

Кондратьевский просп. м.Выборгская


57.2 м2
Общая
35 м2
Жилая
8 м2
Кухня
Цена
9 245 000 ₽
Продается 2-х комнатная квартира 57,2 метра квадратных в историческом месте Калининского района. На Кондратьевском проспекте дом 40 к. 8. недалеко от площади Калинина. Рядом 3 станции метро 5-10 мин. на транспорте. Остановка общественного транспорта недалеко от дома. Вся инфраструктура в пешей доступности. Аукцион.

2-х комнатная квартира

Луга г., Кингисеппа ул.


45 м2
Общая
30 м2
Жилая
6 м2
Кухня
Цена
5 000 000 ₽
Продаётся 2хкомнатная уютная, светлая квартира  в цeнтрe горoдa. Рядом детский сад и школа, магазины, набережная и все необходимое для комфортного  пpоживания семьи Дополнительное преимущество – в подвале дома есть 2 отделанных оборудованных сарая, под замками, принадлежащих этой квартире, где можно хранить соленья, сезонные вещи, коляску, велосипед или инструменты. Вместе с квартирой продается отдельный гараж 17м2, в пяти минутах ходьбы, который обеспечит безопасность вашего автомобиля и дополнительные места для хранения вещей

2-х комнатная квартира

Петергоф г., Суворовская ул. м.Проспект Ветеранов


49.7 м2
Общая
29.9 м2
Жилая
6.1 м2
Кухня
Цена
7 000 000 ₽
Предлагается к продаже квартира в удобной для проживания локации и развитой инфраструктурой. В собственности с 2004 года, один собственник. Рядом весь транспорт, включая электричку, детский сад, новая школа с бассейном, парки для прогулок, магазины, рынок. Это отличное предложение для тех, кто ценит удобство, активный образ жизни и комфорт для всей семьи. Квартира продается в прямой продаже.

2-х комнатная квартира

Сертолово г., Ларина ул. м.Проспект Просвещения


62.2 м2
Общая
30 м2
Жилая
13 м2
Кухня
Цена
10 298 000 ₽
ЖК Юбилей, построенный в 2016 году. Новый современный, обжитой жилой комплекс в Сертолово. Сертолово стало популярным местом жительства для многих людей. Близость леса, озер, природы, чистый воздух, и удобства городской жизни как для пенсионеров так и для молодых семей с детьми и современных удаленьщиков. Квартира просторная, обьемная прихожая, светлая и просторная кухня, комнаты правильной формы. Застекленная и утепленная лоджия. Состояние квартиры позволяет вьехать и жить, ремонт качественный.

2-х комнатная квартира

Ломоносов г., Александровская ул. м.Автово


42 м2
Общая
27.6 м2
Жилая
5.1 м2
Кухня
Цена
5 400 000 ₽
Петродворцовый р-н, Ломоносов. 2 ком.квартира  с изолированными комнатами, в кирпичном доме на 4 этаже. Квартира светлая, сухая, в большой комнате два окна, рядом поликлиника, детский сад, школа, парк Ораниенбаум, Финский залив. До Спб 30 минут транспортом.

2-х комнатная квартира

Ярослава Гашека ул. м.Купчино


45.4 м2
Общая
31 м2
Жилая
6.4 м2
Кухня
Цена
7 470 000 ₽
К продаже представлена двухкомнатная квартира, расположенная по адресу: г. Санкт-Петербург, ул. Ярослава Гашека д.2 В 3 мин ходьбы от метро Купчино. 1 взрослый Собственник. Рядом вся развитая инфраструктура: магазины, поликлиника, школы, д/сады, остановка общественного транспорта, метро. В самом подъезде 2 лифта: пассажирский и грузовой. Быстрый выход на сделку - квартира продается на электронных торгах, которые состоятся через 2 недели. Звоните, отвечу на интересующие Вас вопросы.

2-х комнатная квартира

Сиреневый бул. м.Проспект Просвещения


46.7 м2
Общая
30 м2
Жилая
8 м2
Кухня
Цена
4 232 000 ₽
Санкт-Петербург, Сиреневый бульвар, д.7, корп. 1 Продaется пpоcторная 2-хкoмнатная кваpтиpa общей площадью 46,7 кв.метров в одном из самых дорогих районов города  -Выборгском. Две изoлиpoванные комнаты и бoльшая кухня. Квapтиpа теплая и cвeтлая, c  лoджией и раздельным санузлом. Квapтирa находитcя нa кoмфоpтнoм 4 этажe 9-ти этажного дома. В районе развитая инфраструктура- детский сад и школа во дворе, поликлиника, магазины Пятерочка, WВ, ОZОN, ТЦ Гранд Каньон в пешей доступности, Перекрёсток, ТЦ Норд, кафе, рестораны Токио Сити, Бахрома, остановки общественного транспорта, в трех минутах ходьбы - парк Ивана Фомина. Метро проспект Просвещения в 15 минутах спокойным шагом или в 5-10 минутах на общественном транспорте. Квартира продается с торгов, аукцион.

Закажите консультацию специалиста

Оставьте заявку
Нажимая на кнопку «Отправить заявку», Вы даете согласие на обработку своих персональных данных.
×
продажа
Что вы хотите продать?
Сколько комнат?
Тип объекта?
В каком регионе?
В каком районе Санкт-Петербурга
В каком районе Ленинградской области?

Оставьте Ваш контакт и наши специалисты свяжутся с Вами в самые кротчайшие сроки.

+7
×
новостройка
Какие районы Санкт-Петербурга Вас интересуют?
С какой целью Вы планируете приобрести квартиру?
Сколько комнат должно быть в Вашей будущей квартире?
Какой вариант отделки Вам необходим?
Когда Вы хотите заехать?
В какой бюджет хотите уложиться?

Оставьте Ваш контакт и получите подборку квартир без риска столкнуться с мошенничеством и недостроем.

+7
×
сдать
Что вы хотите сдать?
Скольки комнатная квартира?
Какой тип коммерческой недвижимости вы хотите сдать?
В каком регионе?
В каком районе Санкт-Петербурга
В каком районе Ленинградской области?

Оставьте Ваш контакт и наши специалисты свяжутся с Вами в самые кротчайшие сроки.

+7
Этот сайт использует файлы cookie для улучшения пользовательского опыта. Cookie - это небольшие текстовые файлы, которые сохраняются на вашем устройстве и помогают нам запоминать ваши предпочтения, анализировать посещаемость сайта и предоставлять более персонализированный контент. Использование файлов cookie позволяет нам сделать сайт удобнее для вас. Политика конфиденциальности
Принять Отказаться