Продажа квартир и комнат

Комнаты
Например: Массальского, 4
Ванные
3-х комнатная квартира

Всеволожск г., Обороны ул. м.Улица Дыбенко


72.7 м2
Общая
42 м2
Жилая
8.1 м2
Кухня
Город Всеволожск, улица Обороны, дом 3, корп. 1. Продается просторная и светлая трехкомнатная квартира площадью 72.7 кв. метров на пятом этаже пятиэтажного дома Гатчинской серии. Три отдельные комнаты 17,1, 12,5 и 12,4 кв метров, из большой комнаты выход на застекленную широкую лоджию. Огромная прихожая 13,5кв. метров позволяет разместить как большой шкаф для хранения, так и зону отдыха или библиотеку. Так же есть вместительная гардеробная 2 кв. метра. В отдельном коридоре, ведущем на квадратную кухню  8,1 кв метров, очень светлую, с большим окном, расположены раздельные туалет и ванная комната. В последней легко становится стиральная машина, а так же установлен водогрей на случай летнего профилактического отключения горячей воды. так же в коридоре есть встроенный шкаф для хранения и антресоли. Кухня и две комнаты выходят окнами во двор, в 100 метрах находится школа №3. Комната с лоджией выходят на зеленые насаждения и частный сектор. Проблемы со смотрящими в окна соседями нет. Чистая парадная и домофон. Район тихий и очень зеленый, рядом парк  Софиевка. В пешей доступности вся нужная инфраструктура: школа, детский сад №10, аптеки, магазины, в 7 минутах станция Бернгардовка, откуда 30 мин до Финляндского вокзала. Два собственника, несложная встречная покупка. Квартира подойдет большой семье, а так же тем, кто работает в городе Санкт-Петербург и хочет добираться без пробок. Низкая цена для большой, просторной квартиры. Звоните, просмотр по договоренности. Рассмотрим любые предложения.
Цена
7 790 000 ₽

3-х комнатная квартира

Курская ул. м.Обводный канал


67.9 м2
Общая
51.1 м2
Жилая
7.1 м2
Кухня
Отличное предложение в центре города! Продается просторная 3х комнатная квартира с качественным ремонтом в отличном состоянии в кирпичном теплом доме! Квартира чистая, уютная, светлая, смежно - изолированные комнаты. Квартира трехсторонняя с балконом. Вместительная гардеробная.  В квартире качественный ремонт. Электрика и сантехника новые. На окнах стеклопакеты.  Санузел в кафельной плитке. Чистая парадная. Видео наблюдение при входе и в парадной. Дом расположен вдоль тихой улицы. Зеленый тихий двор с детской площадкой. Доброжелательные соседи. Во дворе есть парковочные места. Рядом всё необходимое: школы и детские сады, много магазинов, кафе, аптеки, торговый комплекс (фитнес с бассейном), в пешей доступности автовокзал и пр. Для прогулок в пешей доступности Воронежский сад, Багратионовский сквер и др. Хорошая транспортная доступность. До станции метро Обводный канал 5 минут пешком, до метро Лиговский проспект – 1 остановка на общественном транспорте. Много общественного транспорта в разные районы города. Прямая продажа.1 взрослый собственник. Полная цена в ДКП. Быстрый выход на сделку.
Цена
17 000 000 ₽

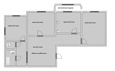
3-х комнатная квартира

Яхтенная ул. м.Беговая


89.4 м2
Общая
50.2 м2
Жилая
14.5 м2
Кухня
192 Продается просторная трехкомнатная квартира в одном из лучших мест Приморского района улица Яхтенная, 22к2. Идеальный вариант для тех, кто ценит пространство, тишину и красивые закаты. Площадь: 89,4 кв. м. — максимум полезного пространства. Планировка: Все комнаты изолированные, правильной формы. Кухня-мечта: Большая светлая кухня с прямым выходом на застекленную лоджию. Вид: Из окон открывается потрясающий вид на символ современного Петербурга. Особенно красиво в вечернее время. Этаж: 17/17 — никаких соседей сверху! Над квартирой технический этаж, что гарантирует тишину и отсутствие протечек. О ДОМЕ: Год постройки: 2009. Серия: Современная панель улучшенная 137 серия. Ухоженная придомовая территория, чистая парадная с видеонаблюдением, 2 лифта (пассажирский и грузовой). Отличная ИНФРАСТРУКТУРА И ЛОКАЦИЯ: Метро: в пешей доступности до ст. м. «Беговая». Природа: Через дорогу — Юнтоловский заказник, в 15 минутах — Парк 300-летия и Финский залив. Семьям: Во дворе детский сад №68, школа №630 ( бассейн,секции)  в 2 минутах ходьбы. Рядом ТРК «Меркурий», «Атлантик Сити», гипермаркеты. Транспорт: Быстрый выезд на ЗСД и Приморское шоссе. ЮРИДИЧЕСКАЯ ИНФОРМАЦИЯ: Два взрослых собственника. Без обременений и долгов. Встречная покупка активно смотрим. Полная стоимость в договоре. Звоните и записывайтесь на просмотр! Эта квартира ждет именно вас.
Цена
18 600 000 ₽

Затрудняетесь с выбором?

Не тратьте время на поиск и анализ множества предложений недвижимости
Мы сделаем это за вас профессионально, быстро, предложив оптимальные варианты по выгодной цене!

3-х комнатная квартира

Кировск г., Молодежная ул. м.Рыбацкое


70.6 м2
Общая
45 м2
Жилая
14 м2
Кухня
Ленинградская область, Кировский район, г. Кировск, ул Молодёжная продаётся 3-х ком квартира, 70, 6 кв.м.  общей площади, на 5 этаже 5-и этажного дома, 1994 года постройки, жилая 14+14+17,1 кв.м., кухня 14 кв.м., санузел раздельный, застеклённая лоджия, пластиковые окна, подвесные потолки, качественный паркет, хорошая входная дверь. Один взрослый собственник, прямая продажа, документы готовы к сделке. От СПб можно добраться за 25 минут от м. ул. Дыбенко на автомобиле, хорошее автобусное сообщение. Рядом магазины, школа, дет сады, аптека, зелёный парк, река Нева. Звоните, организуем просмотр.
Цена
7 500 000 ₽

3-х комнатная квартира

Кировск г., Краснофлотская ул. м.Улица Дыбенко


63.9 м2
Общая
41.58 м2
Жилая
6.43 м2
Кухня
Продается уютная трёхкомнатная квартира в малоэтажном кирпичном доме (2 этажа, один подъезд)! Квартира просторная, с удобной и логичной планировкой. Все комнаты раздельные, имеют правильные формы. Вместительная прихожая и широкий коридор. Санузел раздельный. Есть балкон и лоджия. Эта квартира идеально подходит для комфортной жизни семьи! Будем рады показать вам квартиру - звоните, чтобы договориться о просмотре.
Цена
6 500 000 ₽

3-х комнатная квартира

Шушары пос., Московское шос. м.Купчино


94.8 м2
Общая
49.7 м2
Жилая
17.1 м2
Кухня
Санкт-Петербург, п. Шушары, Ленсоветовский, Московское шоссе, дом 246. Предлагаем просторную квартиру с очень удобной и продуманной планировкой в п.Ленсоветовский (Пушкинский р-н). Все три комнаты - изолированные, что гарантирует личное пространство и уединение для каждого члена семьи. Отсутствие ремонта предоставляет Вам свободу для реализации любых дизайнерских идей и создания идеального домашнего очага без особых финансовых затрат. Район с развитой инфраструктурой: в шаговой доступности - 3 детских сада, благоустроенные детские площадки, большая школа с бассейном, поликлиника, МФЦ, библиотека, магазины и аптеки. Отличная транспортная доступность: удобный выезд на КАД и ЗСД. Всего 15 минут на общественном транспорте до станций метро Шушары, Звездная, Купчино. Здесь Вы сможете наслаждаться спокойствием ближайшего пригорода и при этом быть в центре городской жизни. В непосредственной близости - живописные парки Пушкина и Павловска, идеальные для того, чтобы интересно и с пользой для здоровья проводить свободное время. Это уникальная возможность наслаждаться спокойствием и зеленью пригорода, не жертвуя преимуществами городской инфраструктуры. Быстрый выход на сделку: без обременений, один взрослый собственник, прямая продажа (покупка в перспективе). Рассмотрим любую форму приобретения (субсидии, сертификаты и т.д.) и варианты обмена на вашу недвижимость. Возможен торг.
Цена
12 980 000 ₽

3-х комнатная квартира

Всеволожск г., Колтушское шос. м.Ладожская


74.41 м2
Общая
42.7 м2
Жилая
8.5 м2
Кухня
Ленинградская область,Всеволожский район, город Всеволожск, Колтушское шоссе .Продается трехкомнатная квартира в отличном состоянии. Комнаты изолированные, большая лоджия. Сделан качественный ремонт, тёплый пол на кухне,в туалете,ванной.Остаётся кухонный гарнитур,  встроенный шкаф-купе в прихожей. В доме проведен капитальный ремонт с заменой общедомовых труб, электрики, дом дополнительно  утеплен базальтовой ватой и облицован керамическими панелями, новый лифт, сделан ремонт в подъезде. В пешей доступности от дома больничный комплекс и поликлиника, несколько школ и детских садов, отделения Сбербанка и множество сетевых магазинов, автобусная остановка ( в т.ч. автобусы до метро Ладожская), через дорогу парк Песчанка, ледовый дворец .Электричка до Финляндского вокзала.
Цена
10 900 000 ₽

3-х комнатная квартира

Лопухинка дер., Первомайская ул. м.Беговая


58.4 м2
Общая
43.4 м2
Жилая
5.5 м2
Кухня
Л.О., Ломоносовский р-н, дер. Лопухинка. К продаже предлагается 3-х ком. кв. в Ленинградской области, в д. Лопухинка Ломоносовского района.Дом очень прочный и тёплый, 1969 г постройки. Перекрытия железобетонные. Водоотведение, газоснабжение, горячая - холодная вода, теплоснабжение центральное.  Квартира находится на комфортном 2 этаже пятиэтажного дома.  Общая площадь квартиры составляет 58,4 м кв.  Жилая - 43,4 м кв.  Комнаты 19,3 - проходная, комнаты 13,3 и 10,8 - изолированные, кухня 5,5 м2. В квартире установлены стеклопакеты, в том числе на балконе. Рядом с домом детская площадка.  Парковка во дворе. Деревня Лопухинка, это посёлок городского типа. Здесь есть все, что необходимо для современной жизни: магазины «Пятерочка», «Магнит», «Магнит-Косметика»; «Светофор»; Пункт выдачи заказов «Ozon» и «Wildberries»; Детский сад «Родничок»; Общеобразовательная школа и Музыкальная школы; Поликлиника; Отделение полиции; Общественная баня; Вокруг грибные леса и исторические Усадьбы.  Из достопримечательностей деревни Лопухинка: Усадьба Христиана Геринга и Усадебный парк, который сейчас облагородили, проложили деревянные настилы, сделали указатели, а так де голубые радоновые озера с родниками. 10 минут пешком до реки Лопухинка с радоновыми источниками и озерами. До парка с живописной эко-тропой и радоновыми источниками 700 метров. Хорошая транспортная доступность. Добраться можно из Петергофа автобусом № 463; Из г. Ломоносова - автобусы № 685 А – № 686 . Один взрослый собственник. Никто не прописан. ПОЛНАЯ сумма в договоре. Обременений нет. Документы готовы. Быстрый выход на сделку.
Цена
4 200 000 ₽

Комната в 3-комн. квартире

Комсомола ул. м.Площадь Ленина


100 м2
Общая
23 м2
Жилая
12 м2
Кухня
Продается комната площадью 23 кв. м. в 3-х комнатной квартире в центре Санкт-Петербурга, в 7 минутах от метро площадь Ленина. окна выходят во двор.  У собственников оформлен отказ от преимущественного права приобретения. Третья комната принадлежит Санкт-Петербургу  и сдается по договору социального найма. В парадной сделан ремонт, очень чисто. В квартире еще одна комната которая используется собственниками как место общего пользования, для хранения вещей, стиральные машины и прочее.
Цена
5 800 000 ₽

3-х комнатная квартира

Стрельна г., Кропоткинская ул. м.Автово


66.2 м2
Общая
40.4 м2
Жилая
9.5 м2
Кухня
Санкт-Петербург, п. Стрельна, ул. Кропоткинская, д. 6.    Продается просторная 3 к.квартира с изолированными комнатами на комфортном 3-м этаже. Дом теплый кирпичный расположен в тихом зеленом районе. Рядом вся инфраструктура -  сетевые магазины, два детских садика, новая школа с бассейном, ФОК Газпром, бассейн, ледовая арена, ресторан Токио-Сити, аптека, поликлиника. Удобная транспортная доступность - 5 мин. пешком до автобусной остановки (автобусы ходят в любом направлении) и 10 мин. пешком до станции Стрельна, где ходят очень комфортные электрички `Ласточка` и `Финист`, что позволяет быстро и бюджетно добраться до Санкт-Петербурга.    Квартира светлая и чистая, установлены стеклопакеты, имеется вместительная кладовка, балкон. Чистый подъезд, мусоропровод заварен, хорошие соседи. Во дворе установлена современная зона отдыха.    В шаговой доступности расположен Орловский парк с красивым прудом, рядом мини-зоопарк и конный клуб. Вдоль Финского залива расположен парк Стрельнинская бухта с прекрасным пляжем.    Просмотры по договоренности. Один взрослый собственник. Срок владения долее 20-ти лет. Документы к продаже готовы,  у квартиры `чистая` история -  ни одной продажи.    Встречная покупка - 1 к. квартира в Петродворцовом районе.
Цена
13 500 000 ₽

3-х комнатная квартира

Среднеохтинский просп. м.Новочеркасская


81.6 м2
Общая
55.6 м2
Жилая
9.3 м2
Кухня
Санкт_Петербург Аукцион, 3 ком.квартира в жилом состоянии.цена ниже рыночной.Все вопросы по телефону.ЕДРГН есть. Торги 01,04.2026
Цена
12 600 000 ₽

3-х комнатная квартира

Маршака пр. м.Девяткино


80.1 м2
Общая
39.4 м2
Жилая
13.8 м2
Кухня
Продаётся Е4 квартира, лучшая планировка в жилом комплексе . Квартира подойдет для большой семьи либо людей, которые ценят личное пространство. Три большие полноценные комнаты, большая кухня и комната-гостиная, отдельная большая гардеробная. Квартира с отличным видом. На этаже всего три семейные квартиры. Квартира расположена на среднем 8 этаже 18-этажного дома. Рядом с домом  парковка с постоянным наличием свободных мест. Преимущества дома и подьезда: Тёплый комфортный дом - батареи почти всегда выключены. Видеонаблюдение для вашей безопасности. Во дворе : детский сад и школа; поликлиника и врач общей практики; магазины (Лента, Пятёрочка); аптеки, кофейни О районе: Дом  расположен в отлично развитом районе с удобной транспортной доступностью- Вы легко доберётесь в любую точку города. Полная стоимость указывается в договоре. Собственность более 5 лет. Подходит для ипотеки, материнского капитала, субсидий. Не упустите свой шанс стать владельцем прекрасной квартиры! Звоните прямо сейчас - отвечу на все вопросы и организую просмотр в удобное для вас время.
Цена
11 505 000 ₽

Закажите консультацию специалиста

Оставьте заявку
Нажимая на кнопку «Отправить заявку», Вы даете согласие на обработку своих персональных данных.
×
продажа
Что вы хотите продать?
Сколько комнат?
Тип объекта?
В каком регионе?
В каком районе Санкт-Петербурга
В каком районе Ленинградской области?

Оставьте Ваш контакт и наши специалисты свяжутся с Вами в самые кротчайшие сроки.

+7
×
новостройка
Какие районы Санкт-Петербурга Вас интересуют?
С какой целью Вы планируете приобрести квартиру?
Сколько комнат должно быть в Вашей будущей квартире?
Какой вариант отделки Вам необходим?
Когда Вы хотите заехать?
В какой бюджет хотите уложиться?

Оставьте Ваш контакт и получите подборку квартир без риска столкнуться с мошенничеством и недостроем.

+7
×
сдать
Что вы хотите сдать?
Скольки комнатная квартира?
Какой тип коммерческой недвижимости вы хотите сдать?
В каком регионе?
В каком районе Санкт-Петербурга
В каком районе Ленинградской области?

Оставьте Ваш контакт и наши специалисты свяжутся с Вами в самые кротчайшие сроки.

+7
Этот сайт использует файлы cookie для улучшения пользовательского опыта. Cookie - это небольшие текстовые файлы, которые сохраняются на вашем устройстве и помогают нам запоминать ваши предпочтения, анализировать посещаемость сайта и предоставлять более персонализированный контент. Использование файлов cookie позволяет нам сделать сайт удобнее для вас. Политика конфиденциальности
Принять Отказаться