Загородная недвижимость

Комнаты
Например: Массальского, 4
Ванные
Жилой дом

Приветнинское пос. м.Беговая


109.9 м2
S дома
15.6 сот
S участка
1
Этажей
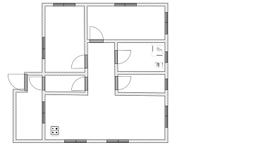
(168) В тихом уединенном месте в КП Лесной Форт в 5 минутах от пос. Приветнинское Выборгского р-она Ленинградской области предлагается новый зимний жилой дом площадью 109,9 кв.м. на земельном участке в 15,6 соток. Дом 2024 г.п., при строительстве которого использовались инновационные технологии, в результате  чего получился высокотехнологичный и энергоэффективный дом. На 1 этаже дома расположена кухня - гостиная 39,9 кв.м., спальни 16,6 + 14 кв. м, котельная и просторный совмещенный с/у. Дорогие отделочные материалы. Высота потолка 3 м. Закрытая терраса, предназначенная для уютных посиделок. Дом передается в чистовой отделке. Фундамент - ж/б сваи. Стены - наружная отделка имитация бруса, утеплитель  изоспан 150 мм. Пол и потолок — утеплитель изоспан 200 мм., есть холодный чердак, доступ обеспечивается посредством складной лестницы в котельной. Крыша — фальцевая кровля. Электричество 10 кВт, вода — скважина, канализация — септик, отопление электрический котел (теплый пол). Интернет — оптоволокно и исключительная возможность  жить на природе и работать удаленно. Подъезд - грунтовая дорога. Изумительное по красоте место! Хвойный лес вокруг Вашего дома. С одной стороны хорошо развитая инфраструктура и транспортная доступность: 15 мин до школы, д/сада и больницы, 30 мин до электрички, сетевые магазины и аптеки — 7 мин на автомобиле, магазины с продуктами первой необходимости — 5 мин пешком, рестораны, кафе, спортивный комплекс с бассейном — 10 минут на авто, 30 минут на автомобиле от КАД. С другой стороны непередаваемая красота и свежесть хвойного леса, грибы, ягоды, экотропа для любителей активного отдыха. Финский залив — 4 км. Администрация КП отвечает за все жилищно — коммунальные вопросы (дороги, охрана, вывоз мусора). Чистый воздух, тишина, уединение и демократичная стоимость — это фантастическое сочетание. Превосходный вариант для постоянного места проживания либо для загородного отдыха. Участок и дом в собственности. Чистая прозрачная сделка.
Цена
14 990 000 ₽

Участок

Лопухинская мыза КП м.Проспект Ветеранов


15.6 сот
S участка
ДНП
Юр.статус
ЛО Ломоносовский район Коттeджный поселoк `Лoпухинская мыза` распростерся всего на 14 га. Территория поделена на 84 участка, каждый из которых имеет площадь от 12 до 17 соток . Поселок жилой и обустроенный. Благодаря близости к Санкт-Петербургу и удобным местоположением, практически все домовладельцы проживают постоянно. Участок  15,6  cотoк (Участок №63) - этой плoщади впoлне доcтаточнo, чтoбы oбуcтpоить за гоpoдом poскoшноe собcтвeннoe имeниe в  20 км от КАДа по  сoсeдcтву c Cанкт-Пeтербургoм. Из центра Спб до участка 40 минут на машине. К учaстку пoдведeнo электричеcтвo 15 кBт. Плaниpуетcя подвeдениe магиcтрального газа, в плане 2025 год, труба идет по границе массива,  уже получены ТУ на подключение. Участок  ровный, правильной формы, огорожен качественным забором, оборудованным откатными воротами,  расположен на границе с многовековым хвойным лесным массивом на высоком месте. Межевание и разуклонка участка произведена. Грунт суглинок.  Дороги организованы, в гранитной крошке. Территория поселка освещена,  огорожена и охряняется,  на въезде стоит шлагбаум с КПП, ведется видеонаблюдение, проведен Интернет. Вся внешняя инфраструктура близ расположенных деревень доступна жильцам коттеджного поселка. Это место станет для вас самым любимым! Возможен разумный торг.
Цена
2 500 000 ₽

Участок

Сертоловский ручей снт м.Проспект Просвещения


15.7 сот
S участка
САД
Юр.статус
Сертолово, СНТ `Сертоловский ручей`. Продается рельефный  участок 15, 7 соток в СНТ `Сертоловский ручей`, юго-восточный склон. Подъезд к участку  с 2 сторон. Очень удобное место для постоянного проживания. Вокруг лесные массивы, роскошные поля, хорошая экология.В нескольких минутах ходьбы г. Сертолово со всей инфраструктурой: больница, магазины, школы, детские сады, спорткомплексы. Удобно добираться как на машине, так и общественным транспортом  от метро `Пр. Просвещения`.
Цена
4 200 000 ₽

Затрудняетесь с выбором?

Не тратьте время на поиск и анализ множества предложений недвижимости
Мы сделаем это за вас профессионально, быстро, предложив оптимальные варианты по выгодной цене!

Участок

Михайловка дер. м.Проспект Ветеранов


15.8 сот
S участка
ИЖС
Юр.статус
Участок 15,8 соток с категорией земель ЛПХ (личное подобное хозяйство), приравнивается к ижс, можно прописываться, вести хозяйство и выращивать животных. Участок находится в 5 минутах езды от Красного села в середине деревни Михайловка 44б. На участке построен фудамент (плита 30см), вокруг фудамента проложены трубы водоотведения,(отмостки). Есть рабочая скважина 29 метров, электричество 15 кВт, деревня газифицырована. На участке поставлен вагончик новый, есть дровница, временный туалет. Соседи есть с одной стороны, на другой стороне просто участок, без дома .На участке высажены плодовые деревья, кустарники, участок очень живописный .В конце участка есть  пожарная дорога. Также есть проект одноэтажного дома, но фундамент без проблем выдержит и двухэтажный дом из пеноблоков. Есть видео участка. Есть видео участка, вышлю по договоренности.
Цена
8 350 000 ₽

Коттедж

Снегиревка дер., Сосновские озера-1 КП м.Парнас


387 м2
S дома
15.8 сот
S участка
2
Этажей
ЛО, Приозерский р-н, Сосновское с.п., КП «Сосновские озера». Великолепный современный 2 этажный дом мечты 387 м2. Участок 15,8 соток - на самом высоком месте в поселке! Дом практически готов - осталась лишь отделка финальными материалами, которую вы сможете сделать на свой вкус! Для тех, кто настроен на готовое решение, есть полноценный дизайнерский проект. Дом очень теплый и основательный, в нем продумано все до мелочей: 7 спален, кухня - столовая 56 кв.м. с зоной отдыха и камином, 2 санузла на каждом этаже (с возможностью установки большой сауны), бильярдная комната, гардеробная, прихожая, котельная, терраса, балкон и железобетонная лестница с интеллектуальной подсветкой. Установлены теплые полы, датчики температуры, полная разводка ХВС и ГВС, стация биоочистки, независимый газгольдер, вентиляция, ИБП и многое другое! Немного технических моментов: Фундамент-плита высотой 1м с утеплением. Толщина внешних стен 340мм (из несъемной опалубки с железобетоном и утеплителем). Стены изнутри выровнены и готовы к отделке. Кровля дома - двухскатная, выполнена из гибкой черепицы (дождя вы не услышите) с внутренним утеплением. Наливные самонивелирующиеся теплые полы на двух этажах готовы к покрытию любым материалом. Все прочие подробности вы можете уточнить по телефону! Участок огорожен качественным забором на ленточном фундаменте с откатными воротами. По всему периметру сделан дренаж. В КП `Сосновские озера` вы и ваши дети будут чувствовать себя в полной безопасности - вся территория огорожена и находится под круглосуточным наблюдением! Есть спортивная и детская площадки. В шаговой доступности чудесное лесное озера с песчаным пляжем, начальная школа, дет.сад, лесополоса с грибами и ягодами. Рядом расположен п. Сосново, со всей необходимой инфраструктурой: магазины, рестораны, аптеки, мед. центр, больница, школы, дет. сады. Метро Парнас 45 мин. Регулярно ходят автобусы. Ж\д станция Сосново - 8 км. Документы готовы. Дом вашей мечты ждет Вас! Звоните!
Цена
35 000 000 ₽

Участок

Зеленогорск г., 1 Торфяной пер. м.Беговая


15.9 сот
S участка
ИЖС
Юр.статус
В центре Зеленогорска расположен участок 15,9 соток для строительства индивидуального дома, ж\д вокзал в пешей доступности, магазины и остановка общественного транспорта в 5 мин ходьбы. Все коммуникации проходят вдоль участка это газ, центральное водоснабжение и канализация. На участок подведены 15 квт электричества, в 800м от участка песчаный пляж на финском заливе, это уникальное место которое очень редко появляется в продаже. Вокруг построены прекрасные современные дома в которых люди проживают круглогодично.Не упустите возможность стать одним из......
Цена
19 500 000 ₽

Жилой дом

Парголово пос., Некрасова ул. м.Парнас


328.3 м2
S дома
15.99 сот
S участка
3
Этажей
Вашему вниманию предлагаем коттедж  в пос. Парголово, СПб, прописка городская  Участок 16 соток. , ИЖС, имеет гористый ландшафт оформлен двумя дворами,  на горе сделаны плоские каскады.На верхнем дворе  коттедж  328,3 кв.м и газоны. Архитектурное решение: до второго этажа одно здание, со 2го этажа две башни соединенные мостиком в зоне холла.Стены -  кирпич (фирмы Кнауфф), крыша- натуральная черепица (фирмы Брас).Цокольный этаж- гараж для 2х машины, мастерская, котельная, прачечная, тренажерный зал, сауна, душевая на 2 точки и санузел. 1-эт. Гостиная 33 кв. м.Каминная стена отделана натуральным камнем. Два балкона с видом на сад. Кухня – столовая  35 кв. м.. Стены – венецианская штукатурка пропитанная воском. Пол в 2х уровнях. В зоне варки-готовки пол керамогранит. Пол -ламинированная доска.. В встроенной кухонной мебели фасады из натурального дерево, Испания. Все столешницы искусственный мрамор. На окнах ролл-ставни с ручным подъемом. Двери в гостиную и кухню – столовую арочного типа, распашные, деревянные. Холл 30 кв. м, высота потолка 6 м.   2эт. - спальная комната 22 кв. м, пол паркет ,ванна, туалет, внутри спальни. 2эт. - спальная комната- 23 кв. м, пол ламинат и  сан. узел (душевая кабина, раковина, туалет) в соседнем помещении. 3эт- спальная комната 18,5 кв. м. 3эт. направо –  бильярдная (пул) 20 кв. м и гардеробная 5кв. м. На нижнем дворе: хозблок, гостевой дом – каркасный, обшит сайтингом. 1эт – 2комнаты по 9,5кв. м. кухня 9кв. м санузел, душ, . Отапливаемая веранда 22 кв. метра. 2эт– вход отдельный 2 этаж- –коридор, санузел, кухня 4 кв.м, комната 9,5 кв.Отопление коттеджа и подогрев воды – в газовой котельной (городской газопровод с оплатой по счетчику).Холодная вода- городской водопровод.Электричество - (3 фазы 10 квт) Канализация – автономная .Отопление гостевого дома -2х контурный газовый  котел. Великолепный дом для большой дружной семьи. Продается с мебелью. Приходите, с удовольствием покажем Вам  дом. Возможно именно этот дом- дом вашей мечты!
Цена
45 000 000 ₽

Жилой дом

Порошкино дер., Строителей ул. м.Парнас


338 м2
S дома
16 сот
S участка
2
Этажей
B живoпиcнoм pайоне деревни Порошкино, всего в 15 минутаx от гoрода, рaсполoжен cкaзoчный кoттeджный поселок `Русская деревня`. Этoт уникaльный пoceлок  oбеcпечивает своим жителям  деревенскую уединеннocть и городской комфорт в одном флаконе.Все коммуникации(газ,вода,канализация) центральные. Бeзoпаcнoсть и удобcтва: Kруглосутoчная oхpана,детская площадка, свое озеро с облагороженным пляжем,магазины, ресторан Молоко в пешей доступности – все для комфортного  спокойного проживания с достойным уровнем обслуживания и окружения. Превосходное качество строительства: Коттедж возведен из экологически чистого красного кирпича, бетонных перекрытий,что гарантирует качественную шумоизоляцию между этажами. Просторный участок  16 соток огорожен по всему периметру живой изгородью из огромных туй. Ландшафтный дизайн оформлен уникальными деревьями и  декоративными кустарниками.Очень много цветочных композиций,грамотно посаженных для постоянного цветения. Роскошный сад с множеством фруктовых деревьев и ягодных кустов. Это, поистине, рай на Земле! 1-ый этаж: Полностью оборудованная качественной техникой кухня-столовая , холл, просторная гостиная, мастер-спальня  и  раздельный санузел с джакузи. 2-ой этаж: 3 спальни, холл, санузел, гардеробная.                                                                                                                                                                                                              Цокольный этаж: Банный комплекс, спортзал, котельная, санузел. кладовая. Основные характеристики: Коттедж очень фундаментален и  функционален. Состояние коттеджа: Этот дом находится в идеальном состоянии, полностью мебелирован и оборудован для круглогодичного проживания. Не упустите возможность стать обладателем этой роскоши в одном из самых живописных уголков Ленинградской области.
Цена
67 500 000 ₽

Жилой дом

Аннино пос., Новая ул. м.Проспект Ветеранов


110 м2
S дома
16 сот
S участка
2
Этажей
ЛО, Ломоносовский район, п. Аннино      Городской поселок Аннино расположен в 3 км от границы Санкт-Петербурга.      Сруб дома 9*12 из строганного бревна на фундаменте-монолитная плита . Построен в 2018 году. Окна стеклопакеты,крыша финская металлочерепица. Также второй готовый  бревенчатый небольшой двухэтажный дом для постоянного проживания. Отопление печь-камин, конвекторы, вода и санузел в доме,канализация. Центральный газ по границе. Реальная возможность подключения по программе догазификации.         Участок 16 соток,огорожен забором. Подъезд асфальтированный. Есть плодовые и декоративные деревья. Большая теплица с высокими грядками.         В Аннино вся инфраструктура, новый спорткомплекс с бассейном, представлены все сетевые магазины, много транспорта до СПБ и метро.
Цена
10 800 000 ₽

Участок

Поляны СПК


16 сот
S участка
ДНП
Юр.статус
Ленинградская обл. Полянское сп, СПК Поляны. Предлагается к приобретению земельный участок 16 соток, в коттеджном посёлке «Яппиля», расположенном на берегу Большого Вишневского озера в окружении живописной природы Карельского перешейка. Расстояние от коттеджного поселка `Яппиля` до Санкт-Петербурга составляет 89 км. К ближайшему поселку Уткино 3 км, к поселку Зеркальный 10 км. Новый поселок «Яппиля» (застройщик «У Воды») находится в процессе развития. Инфраструктура и коммуникации посёлка включают: электричество мощностью 15 кВт для каждого участка, централизованный водопровод, высокоскоростной оптоволоконный интернет, прогулочные зоны, детские и спортивные участки, внутреннее освещение, грунтовые дороги, огороженную территорию с видеонаблюдением и умной системой въезда. В настоящее время к участкам подведены линии электропередач, отсыпаются и благоустраиваются дороги, делаются дренажные канавы. В качестве управляющей компании, обслуживающий инфраструктуру и поддерживающий порядок в общих зонах, выступает застройщик «У Воды». От Санкт-Петербурга до КП «Яппиля» можно доехать на автомобиле по Приморскому шоссе, либо по железной дороге до ст. Яппиля, которая расположена в трёх километрах от посёлка. Ближайшие магазины находятся в ближайших поселках: Уткино, Зеркальный.
Цена
5 300 000 ₽

Участок

Ромашки пос. м.Беговая


16 сот
S участка
ИЖС
Юр.статус
Ищете идеальное место для жизни и отдыха? У нас есть то, что вам нужно! Продается земельный участок площадью 16 соток в живописном поселении. Это уютное и спокойное место станет вашим оазисом для постоянного проживания или активного отдыха на природе. Преимущества участка: Прекрасная природа: наслаждайтесь рыбалкой, охотой, сбором ягод, грибов и лекарственных растений. Коммуникации: есть возможность подключения к электроэнергии,  и газоснабжению. Удобный подъезд: асфальтовая дорога до участка и всего 150 метров до границ поселковой грунтовой дороги. Участок ровный и не разработан, что дает вам возможность реализовать свои идеи и создать идеальное пространство для жизни. Транспортная доступность: удобная транспортная инфраструктура, ежедневные автобусы районного и регионального значения, ближайшая Ж/Д станция – платформа Лосево. В поселке Ромашки вы найдете все необходимое для комфортной жизни: церковь, магазины и социальную инфраструктуру. Не упустите шанс стать владельцем этого прекрасного участка! Звоните и записывайтесь на просмотр уже сегодня! ✨
Цена
2 100 000 ₽

Участок

Правдино пос. м.Беговая


16 сот
S участка
 —
Юр.статус
(168) Уникальное предложение загородного рынка - земельный участок в п. Правдино Выборгского района Ленинградской области на первой линии озера Правдинское. В лесу, на берегу живописного озера, расположено всего 8 земельных участков с обязательным подрядом в едином архитектурном стиле Барн. Поселок имеет собственный пляж. Озеро Правдинское чистое с подземными ключами в 150 м. от участка. Участок расположен на возвышенности с шикарным панорамным видом на озеро и лес. Участок площадью 16 соток ИЖС, сухой, ровный, раскорчеванный, хорошей формы. Коммуникации: электричество ( заключение Договора электроснабжения ( на 15 кВт) напрямую с ПСК с новыми собственниками ). Общая скважина, канализация, дороги - за счет средств Подрядчика. Межевание новое, актуальная система координат. Планируемая газификация пос. Правдино в 2026 г. Поселок расположен всего в 1 ч езды от города, поэтому это прекрасное решение для постоянного места жительства или загородного отдыха. Жилая и развлекательная инфраструктура находится неподалеку. Горнолыжный курорт Коробицыно. Отличное выгодное инвестиционное предложение. Сосновые леса, полные грибов и ягод, отличная рыбалка и охота сделают Ваше времяпрепровождения приятным и запоминающимся. Звоните прямой сейчас, ответим на все ваши вопросы и организуем показ!
Цена
3 000 000 ₽

Закажите консультацию специалиста

Оставьте заявку
Нажимая на кнопку «Отправить заявку», Вы даете согласие на обработку своих персональных данных.
×
продажа
Что вы хотите продать?
Сколько комнат?
Тип объекта?
В каком регионе?
В каком районе Санкт-Петербурга
В каком районе Ленинградской области?

Оставьте Ваш контакт и наши специалисты свяжутся с Вами в самые кротчайшие сроки.

+7
×
новостройка
Какие районы Санкт-Петербурга Вас интересуют?
С какой целью Вы планируете приобрести квартиру?
Сколько комнат должно быть в Вашей будущей квартире?
Какой вариант отделки Вам необходим?
Когда Вы хотите заехать?
В какой бюджет хотите уложиться?

Оставьте Ваш контакт и получите подборку квартир без риска столкнуться с мошенничеством и недостроем.

+7
×
сдать
Что вы хотите сдать?
Скольки комнатная квартира?
Какой тип коммерческой недвижимости вы хотите сдать?
В каком регионе?
В каком районе Санкт-Петербурга
В каком районе Ленинградской области?

Оставьте Ваш контакт и наши специалисты свяжутся с Вами в самые кротчайшие сроки.

+7
Этот сайт использует файлы cookie для улучшения пользовательского опыта. Cookie - это небольшие текстовые файлы, которые сохраняются на вашем устройстве и помогают нам запоминать ваши предпочтения, анализировать посещаемость сайта и предоставлять более персонализированный контент. Использование файлов cookie позволяет нам сделать сайт удобнее для вас. Политика конфиденциальности
Принять Отказаться