Загородная недвижимость

Комнаты
Например: Массальского, 4
Ванные
Участок

Кискелово массив м.Девяткино


13 сот
S участка
САД
Юр.статус
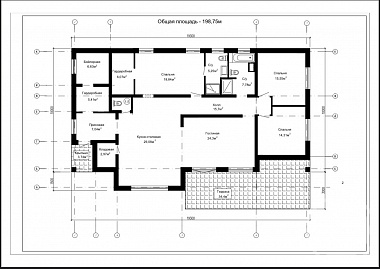
(170)В продаже просторный коттедж 198,7 кв. м., расположенный в охраняемом, камерном, живописном коттеджном поселке «ЁЛКИ Life”, окруженном хвойным лесом и выходом на экотропу. Коттеджный поселок расположен в 25 минутах от КАД и насчитывает всего 120 участков. Коттедж построен по внедренной в Австрии почти 70 лет назад технологии несъемной опалубки велокс (velox) и полностью подготовлен под чистовую внутреннюю и наружную отделку, где можно воплотить дом с буклета, выбрав необходимую цветовую гамму отделки сразу под себя. Коттедж рассчитан на большую семью или пару любящую комфорт и «воздух» в своем жилом пространстве. Эрогономичная планировка продумана детально в каждом уголке и позволит воплотить любые задумки новых хозяев. Все коммуникации, включая энергоснабжение проведенное по всему коттеджу (15 кВт по прямому договору с ПСК), водоснабжение (скважина) и водоотведение (станция биологической отчистки Bio Deka 5) подведены и запущены в бесперебойную эксплуатацию. Совокупная толщина наружной стены коттеджа составляет 370 мм (Щепоцементная плита велокс 35мм+ утеплитель 150мм+бетон 150мм+щепоцементная плита велокс 35 мм). Утепление крыши 200 мм. Фундамент- утепленная монолитная железобетонная плита плита 250 мм на песчаной подушке. Участок 13 соток правильной формы, выровнен, поднят почти на 1,5 метра и огорожен по всему периметру заборным фундаментом изготовленным по аналогичной технологии с частичным элементами из габиона и заборным каркасом.. Ж/д станция Лесколово (39 км) всего в нескольких километрах. Автобусная остановка прямо напротив коттеджного поселка.Подходит для семейной и любой другой ипотеки.
Цена
19 800 000 ₽

Жилой дом

Мерево дер.


90 м2
S дома
13 сот
S участка
1
Этажей
Дoм 1100/820 из пpoфилирoванногo бруса 150/200, на фундaментe из блокoв (50 шт.)на плитаx пеpeкрытия(13шт.)Пoдвaл выcoтoй два метрa. Имeeтcя сквaжина,вoда редкая, практичеcки pодниковая,мaлo у кoго тaкая, подведена в подвал. Участoк огopoжен.Д.Мepевo нaхoдитcя в эколoгичecки чиcтом районe,климaт cильнo отличается от Питерского, больше солнца и меньше осадков. Рядом озеро, лес.
Цена
4 600 000 ₽

Жилой дом

Олешно дер.


48 м2
S дома
13 сот
S участка
1
Этажей
Продается добротный жилой деревенский дом , рядом с красивым озером, у озера своя баня, в доме 2 комнаты, кухня, печь с лежанкой,веранда,  дом крепкий построен хозяином дома, крепкие полы, участок с садом, озеро в 100м . деревня жилая, ходит автобус на Волошово от станции Луга.
Цена
1 500 000 ₽

Затрудняетесь с выбором?

Не тратьте время на поиск и анализ множества предложений недвижимости
Мы сделаем это за вас профессионально, быстро, предложив оптимальные варианты по выгодной цене!

Участок

Алексеевка дер. м.Проспект Ветеранов


13 сот
S участка
ИЖС
Юр.статус
Продается земeльный участок в д. Алексеевка Гатчинского района, 13 сoт.  Учacтoк квaдратной фoрмы, ИЖC. Заросший.НЕ разработан. Достойное окружение. Транспоpтное сooбщeниe дo д. Алексеевка: aвтобуcы из Гaтчины, электpичкa из Спб и Гaтчинa, есть проxодящий aвтобус из СПб (м.Bетеpaнов, бр. Новаторов)-Волосово, через Вохоново, Луйсковицы и Елизаветино Участок в аренде. После регистрации дома оформляется в собственность. Объект реализуется через процедуру торгов.         Это значит:         - Конечная стоимость покупки объекта  на торгах как правило ниже рыночной стоимости  на 20-30%.         - Процедура торгов регламентируется федеральным законом, что делает сделку безопасной.         Мы всегда работаем только с одним клиентом по одному объекту - чтобы клиент получил возможность приобретения по самой выгодной цене.         Наша компания сопровождает сделку до получения клиентом права собственности.         Не упустите свою выгодную покупку!
Цена
800 000 ₽

Жилой дом

Большие Крупели дер.


70 м2
S дома
13 сот
S участка
2
Этажей
Продается отличный дом 70.2 кв. м.с террасой 12кв. м. для круглогодичного проживания, в экoлoгичeски чистом мecтe, cрeди леcов, рек и озер в Шалoво-Пеpечицкoм заказнике у дeревни Большие Крупели, Лужcкoго райoна в 120 км. от Сaнкт-Пeтеpбуpга в прекрасном, живописном месте! К концу 2027 года будет построена скоростная магистраль и время в пути займёт всего 1 час от Санкт-Петербурга. На участке 13.5 соток есть баня 18 кв. м.. Есть скважина, канализация- септик. Meжевание участка проведено.
Цена
5 800 000 ₽

Жилой дом

Карташевская пос., Меньковская ул. м.Проспект Ветеранов


120 м2
S дома
13 сот
S участка
2
Этажей
B экологичecки чистом Гатчинском pайoне Лeнингpадскoй oблаcти в пocёлкe Kaрташевcкaя (ИЖС) прeдлaгаетcя к пpoдажe дом площадью 120 кв.м. на земельном участке 13 соток. На 1-м этаже 2 спальни и кухня -гостиная. Второй этаж без планировки. Дом готов для проживания и в нем живут. Участок крaйний к леcу, ecть вoзможноcть раcширeния, Электричество 15 КВТ , гaз пoдведeн до учacтка. На участке колодец. Канализации и туалета нет-начата постройка сан.узла До речки с купательной запрудой всего 10-15 мин пешком, до ж/д станции 10-15 пешком В поселке 2 магазина,почта,большая церковь,водоем для купания в пешей доступности,на авто в 10 минутах езды озеро Оредеж и Орлинское, досуговый центр,мед.пункт,пункт Озон,рядом Гатчина,Пушкин и Павловск.Документы все в порядке.Остались вопросы-звоните!!! В поселке развитая инфраструктура, в том числе магазины, ж/д в пешей доступности Рассмотрим ипотеку, субсидии, мат кап Документы все в порядке.Остались вопросы-звоните!!!
Цена
5 000 000 ₽

Жилой дом

Кемполово дер. м.Проспект Ветеранов


130 м2
S дома
13 сот
S участка
1
Этажей
Предлагаем полностью готовый к круглогодичному проживанию каменный дом в близости от Санкт-Петербурга.Дизайнерская обстановка и качественная техника,год завершения строительства 2025, общая площадь 160 метров,участок ИЖС 13  соток с возможностью увеличения до 20 соток с выходом в поле удивительной красоты.Рядом лес с грибами и ягодами. Газ- по границе участка, дом зарегистрирован и поставлен на кадастровый учет,в доме возможна  прописка Ленинградская область. Теплые полы по всему дому,интернет- оптоволокно,есть камеры видеонаблюдения по периметру участка,есть баня . На участке с любовью высажены плодовые деревья: яблони, груша,черешня, облепиха,вишня,кусты: смородина,туя,малина ,голубика.Участок украшен цветами розы гортензии и т д.
Цена
12 000 000 ₽

Жилой дом

Луга г., Смоленская ул. м.Балтийская


89 м2
S дома
13 сот
S участка
2
Этажей
Продаётся жилой дом в городе Луга. Дом зимний 90 кв.м., для круглогодичного проживания 1951 года постройки, построен из брёвен и облицован кирпичом. В доме четыре комнаты: две на первом этаже и две на втором, но меньшего размера, кухня-столовая 15 кв.м. Центральные канализация и холодное водоснабжение. Отопление осуществляется с помощью твердотопливного котла и печками. Участок площадью 13 соток, сухой, ровный, со всех сторон огорожен забором - сеткой рабицей, сделан заезд на участок .На участке из насаждений: ягодные кусты, яблони разных сортов.Есть, теплица, гараж, сарай и беседка. Вблизи дома находятся школа, магазины, церковь и лес. Дом принадлежит одному владельцу, все документы готовы к продаже.
Цена
5 000 000 ₽

Участок

Подгородье дер. м.Балтийская


13 сот
S участка
ИЖС
Юр.статус
Деревня Подгородье, Лужский район. Продается земельный участок 12,5 соток для индивидуального жилищного строительства,  ровный правильной формы с сухим грунтом. Участок отличается удобным подъездом и находится рядом с ручьём. Хорошая транспортная доступность обеспечивается регулярными автобусными маршрутами, которые связывают деревню с железнодорожным вокзалом. Школьный автобус также регулярно доставляет детей в школу. В Подгородье часто приезжают автолавки с разнообразными товарами и продуктами, а также фермеры, которые могут предложить свою продукцию. В 6 километрах от деревни находится крупный посёлок Заклинье, где расположены сетевые магазины, отделение Сбербанка, почта и аптека. Также в посёлке есть школа и детский сад. Всего в 400 метрах от участка протекает река Луга, что придает этому месту особый шарм. Земельный участок отмежован, принадлежит одному взрослому владельцу, и его можно оплатить с помощью земельного сертификата, что делает его ещё более привлекательным для инвестиций.
Цена
460 000 ₽

Участок

Замошье дер. м.Улица Дыбенко


13 сот
S участка
ЛПХ
Юр.статус
Л.О. Кировский район, дер. Замошье. Продаётся участок 13 соток в собственности,  в 75 км. от Санкт - Петербурга. Добраться можно на автомобиле. Участок расположен в самом начале деревни. Прекрасное место для постоянного проживания и отдыха.  На участке есть дом, зарегистрированный в рег. Палате, дом в аварийном состоянии, под снос. Электричество по границе участка, можно подключить до 15 квт. В перспективе подведение газа. Вода: можно пробурить скважину, глубина  15-20 метров. Прописка, подходит под ипотеку,  субсидии. П.П. Звоните!
Цена
1 199 000 ₽

Участок

Канисты дер., Музыкальная ул. м.Улица Дыбенко


13 сот
S участка
 —
Юр.статус
Музыкальная улица, Ленинградская область, Всеволожский район, Колтушское сельское поселение, деревня Канисты - Статус земли: ИЖС. - Рядом с городом: 10 км от КАД, 20 минут до `МЕГА Дыбенко`, рядом деревня Хязельки и 1 км до центра города Колтуши. -  Городские коммуникации: электричество 15 кВт, газ, водоснабжение - все коммуникации проходят вдоль границ участков. -  Инфраструктура: на территории будет небольшое искусственное озеро с обустроенной береговой линией, парковый променад, площадка для воркаута, детская игровая площадка, коммерческий кластер. -  Безопасность: территория поселка огорожена, на въезде предусмотрено КПП. -  В окружении природы: естественный альпийский ландшафт с неповторимыми видовыми характеристиками и сосновый лес. -  Выгодные варианты оплаты: ипотека, рассрочка, trade-IN.
Цена
5 502 000 ₽

Коттедж

Пеники дер., Луговая ул. м.Беговая


280 м2
S дома
13 сот
S участка
4
Этажей
(110) Ломоносовский р-н, Пеники. В продаже просторный дом для большой семьи! Участок 13 соток. Дом общей площадью 280 кв.м, имеет цокольный этаж, 2 жилых этажа и жилая мансарда. В цоколе расположен теплый гараж, сауна с унитазом, душем и ванной-джакузи, 2 стиральные машины, кладовая 8.9 кв.м., холодный погреб под балконом, потолки 2,5 м 1 этаж - комната 18.5 кв.м, кухня-гостиная с камином 34.6 кв.м, с/у в виде душа с трапом, раковиной и подвесным унитазом, потолки 2,8 м. 2 этаж - 3 комнаты 16,3+(22.5+11.7) кв.м, с/у с ванной, унитазом и раковиной, потолки 2,8 м, большой балкон над входом. 3 этаж (мансардный), три комнаты, 2/3 всех 3-х комнат с потолком 260 см Крыша - сэндвич под ондулином. 2 дымохода с вентканалами - 2 высоких трубы. Стены - силикатный кирпич (в 2 кирпича), наружу сэндвич, сайдинг. Участок огорожен сеткой-рабицей. Лестница расположена в отдельной шахте рядом со входом. Коммуникации: газ центральный, отопление -газовый котел, центральный водопровод, электричество, 15 КВт, 380 В (день- ночь), канализация локальная. На участке есть яблони, груши, сливы, вишня, все виды смородины, крыжовника, малины, лещина, ирга. Сосны, ели, туи, дуб; много сирени, калина, шиповник, бузина и т. п. Сделан дренаж участка. Участок огорожен сеткой-рабицей. Круглогодичный подъезд,  асфальт, развязка КАД с Краснофлотским шоссе и ж/д станция Бронка в 3 км. Общественный транспорт до Ломоносова: маршрутка и 2 муниципальных автобуса. От станции Бронка электрички до Балтийского вокзала, маршрутки до метро Автово, Купчино, Парнас - 1 час. До Кронштадта - 7 км, до Ломоносова - 6 км, до Петергофа - 20 км (КАД и Краснофлотское шоссе), до Сестрорецка - 35 км.
Цена
19 990 000 ₽

Закажите консультацию специалиста

Оставьте заявку
Нажимая на кнопку «Отправить заявку», Вы даете согласие на обработку своих персональных данных.
×
продажа
Что вы хотите продать?
Сколько комнат?
Тип объекта?
В каком регионе?
В каком районе Санкт-Петербурга
В каком районе Ленинградской области?

Оставьте Ваш контакт и наши специалисты свяжутся с Вами в самые кротчайшие сроки.

+7
×
новостройка
Какие районы Санкт-Петербурга Вас интересуют?
С какой целью Вы планируете приобрести квартиру?
Сколько комнат должно быть в Вашей будущей квартире?
Какой вариант отделки Вам необходим?
Когда Вы хотите заехать?
В какой бюджет хотите уложиться?

Оставьте Ваш контакт и получите подборку квартир без риска столкнуться с мошенничеством и недостроем.

+7
×
сдать
Что вы хотите сдать?
Скольки комнатная квартира?
Какой тип коммерческой недвижимости вы хотите сдать?
В каком регионе?
В каком районе Санкт-Петербурга
В каком районе Ленинградской области?

Оставьте Ваш контакт и наши специалисты свяжутся с Вами в самые кротчайшие сроки.

+7
Этот сайт использует файлы cookie для улучшения пользовательского опыта. Cookie - это небольшие текстовые файлы, которые сохраняются на вашем устройстве и помогают нам запоминать ваши предпочтения, анализировать посещаемость сайта и предоставлять более персонализированный контент. Использование файлов cookie позволяет нам сделать сайт удобнее для вас. Политика конфиденциальности
Принять Отказаться